家是生活的容器,装修应该坚持实用主义,摒弃过多的造型装饰,营造一个简单舒适的生活空间。这期案例就是围绕实用主义展开,三十年的步梯老房改造,80㎡的空间经过改造设计,以简约黑白灰色调,构筑简净空间基调,搭配上温润木地板,让空间更加舒适。没有过渡的设计和装饰,全屋简单又大气。
房屋基础信息
项目面积:80㎡
项目地址:广东广州
项目设计:牧蓝空间设计

原始结构图
原户型比较方正,三房一厅的格局,满足了当下的生活需求。但也存在一些问题,比如房屋突出柱子较多,分布在空间各个角落,造成空间上的浪费。其次卧室与公共区域动线比较混乱,没有明确边界。最后就是卫生间,位置比较尴尬,进出卫生间要经过厨房,非常不方便。

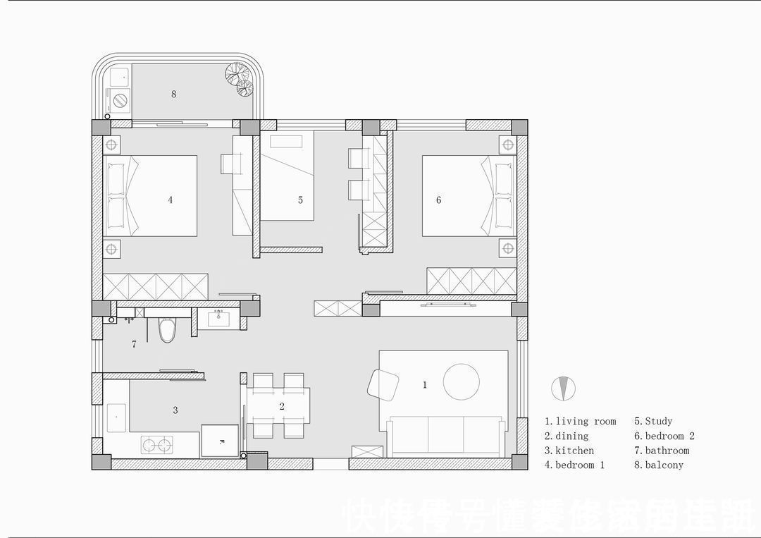
【 隔墙|80㎡实用主义装修,简约黑白灰色调,全屋简单又大气】装修平面图
装修改动还是很成功的,局部和居家动线都得到了很大的改善。首先就是厨房和卫生间,通过拆除隔墙和调整门洞方向,改变了原有格局,进出卫生间不需要经过厨房,而且还拥有分离式卫生间。其次拆除部分卧室隔墙,设计了过道作为空间缓冲作用,让动静区域边界更明显。

客厅空间
改造后的空间,硬装非常简单,墙面和顶面直接刷白处理,地面舍弃冰冷地砖,以木质地板取代,增加空间稳定。同步收边黑色不锈钢门窗和踢脚线,提升整体空间质感。

客厅电视墙以储物柜和黑色不锈钢做造型,经典黑白色搭配,简约大方又耐看。柜门统一使用白色烤漆门,同步采取按压开启方式,整体效果整洁统一。中间采用黑色不锈钢8mm薄板,平衡白色的纯净单调。

无主灯设计平衡了整体高度,让空间更具简约美。软装以少量的跳色,增加空间活泼气质。窗帘采用隐藏式设计,没有裸露的窗帘杆,视觉效果更规整美观。

餐厅空间
餐厅简单实用,餐桌的岩板与硬装黑色相呼应,搭配上原木色和深胡桃木色椅子,大气通透。飞碟吊灯将光线聚焦餐桌,突出美食的诱惑力。考虑到餐厅空间较窄,打通了与厨房的隔墙做了玻璃窗,提高了空间通透,又增加了日常生活便利。


厨房空间
长虹玻璃隔断餐厅与厨房,透光不透影,私密性还是不错的。厨房麻雀虽小,五脏俱全。合理的布局设计,收纳虽然不及大户型,但日常生活也够用了。


卫生间空间
改造后的卫生间,摆脱了之前进出卫生间,需要穿过厨房的尴尬格局。利用同色地砖弱化空间感和高低落差。卫浴空间比较窄,因此设计上也比较讲究,以无边框防爆玻璃做隔断,增加空间通透感,同步设计壁龛收纳,取代五金置物架,减少突兀感让视觉空间更开阔。
推荐阅读
- 优雅|130㎡现代简雅风,极简的无主灯设计,营造一个高级优雅的空间
- 文艺|128㎡现代轻奢,稳重配色+文艺布置,让生活充满诗意与情趣
- 改造|90㎡两居室改造,从餐厅厨房挤出一间房,真心巧妙
- 空间|45㎡小户型学区房,爆改后“小中见大”,整个家被一眼望穿
- 轻奢|轻奢风格设计,120㎡装修效果明艳四方,越看越有格调!
- 储物区|90㎡两室一厅,看完她的家,我觉得一半设计师都要失业了!
- 阳台|同样是77㎡,我家小得可怜,他家三房每个空间都超空旷,收纳惊人
- 壁柜|90㎡两卧两卫,他爸在主卧中做了个9㎡衣帽间,全家乐开了花!
- 装修|两个男孩的160㎡新家,不走寻常路的装修,简单却又大气好看
- mini|日本单身宅男9㎡小家,厕所巴掌大却有浴缸,玄关晾衣服格外整洁
