
⑵橱柜“双一字型”布置
①我认为厨房“完成宽度”在1800mm左右较适合橱柜的“地柜+吊柜”与吊柜相对的“不完全双一字型”布置方式,有较大的收纳空间,也不会影响橱柜地柜部分“功能分区”的正常操作(如示意图六);面积参考5.4㎡。

示意图六厨房带生活阳台
a.厨房“完成宽度”1800mm左右,地柜深度为600mm左右的“地柜+吊柜式”橱柜依靠管线区、排烟道所在墙体(A墙体)“一字型”布置,在与之相对的墙体(B墙体)设置深度300mm左右的吊柜,增加收纳空间;A墙体地柜与B墙体之间预留“地面宽度”在1200mm左右的“空闲区”供厨房操作使用;
b.厨房“完成长度”3000mm左右,A墙体设置管线区+橱柜“功能分区”(清洗区+备餐区+烹饪区)+排烟管道;B墙体设置与墙体等长度的吊柜;
c.可配置的使用功能种类:水槽、灶具分别靠近管线区、排烟道设置,中间预留“空闲区”作为备餐区,达成洗菜—切菜—炒菜的设置顺序,使用更加“顺手”;水槽和灶具、灶具和排烟道之间可安装吊柜或地柜增加收纳空间;燃气热水器安装在阳台,以便于“废气”排放;各“功能分区”尺寸参考见示意图六。

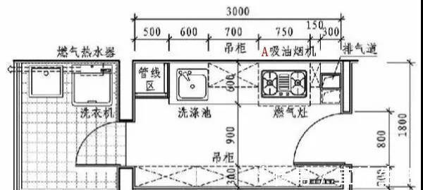
②我认为厨房“完成宽度”在2100mm左右较适合“地柜+吊柜”相对的“双一字型”布置方式(如示意图七);面积参考7.1㎡。

示意图七厨房带生活阳台
a.厨房“完成宽度”2100mm左右,地柜深度为600mm左右的“地柜+吊柜式”橱柜分别依靠管线区、排烟道所在墙体(A墙体)及与之相对墙体(B墙体)“一字型”布置,“二者”之间预留900mm左右宽度的“空闲区”供厨房操作使用;
b.厨房“完成长度”3400mm左右,A墙体管线区+橱柜“功能分区”(清洗区+备餐区+烹饪区)+排烟管道;B墙体橱柜“空闲”操作台+冰箱+橱柜“空闲”操作台;
c.可配置的使用功能种类:水槽、灶具分别靠近管线区、排烟道设置,中间预留“空闲区”作为备餐区,达成洗菜—切菜—炒菜的设置顺序,使用更加“顺手”;管线区和灶具、灶具和排烟道之间可安装吊柜增加收纳空间;燃气热水器安装在阳台,以便于排放“废气”;冰箱放置在B墙体,与A墙体橱柜所设置的清洗区、备餐区、烹饪区形成“三角形”的位置关系,使用起来更“顺手”,“躲开”房门完全开启时后方的橱柜区,避免产生磕碰情况;各“功能分区”尺寸参考见示意图七。
【 地柜|这是我见过用起来“最顺手”的厨房布局,再买房建议照着装,干货】
⑶橱柜“L型”布置
①我认为厨房“完成宽度”在1600~1800mm左右较适合橱柜的“L型”布置方式,充分利用空间,“不浪费”(如示意图八、示意图九、示意图十);面积参考4.3㎡~4.8㎡。

示意图八管线区和排烟道在同侧墙体

推荐阅读
- 家居|她的新家,温暖干净又不失简洁大方,这大概就是一个家最好的样子!
- 凹槽|厨房装推拉门早就过时了,聪明人都用这2种隔断,后悔没有早知道
- 大电视|房子住久了,才明白当初不该买这6件家具电器,费钱不好用占空间
- 地板|装修需要用到哪些材料,这里有一份装修材料清单
- 刀具|橱柜多留10公分,厨房柜子能少买好几个,后悔我家没这样装
- 起居室|6间卧室,3个阳台,这栋乡村别墅造价只需23w,喜欢的话先收藏
- 打扫|一旦木工给你橱柜加装这个东西,不用验收直接付工钱,实用又美观
- 瓷砖|工人如果在墙砖下放这个东西,你连验收都不用,直接结算工钱!
- 建房|老家建房造型不要太复杂,这样造价低工期短,施工方也比较省事
- 自流平|我家装修没铺地板,用的这种材料,邻居看完就把地板瓷砖退掉了
