导读:看了他家125㎡的房子才知道什么叫高雅,全屋没有一丝俗气,太美了
你心目中的理想家是什么模样?
或简洁大方,或奢华大气?
其实,无论简与奢,这些都事关个人审美以及装修预算。
不过在我看来,无论哪种形式,哪种风格,都万变不离其宗,那就是拥有一个令人感觉到放松舒适的氛围,只有这样,当我们在外疲于奔命挣钱养家时,回到家才能享受到莫名的心安与自在。

而今天要分享的案例就和这个有关,坐标江苏苏州,这是一套125㎡的房子,目前男主一个人住。
装修上,他家空灵雅韵,竟没有沾染一丝俗气,所以一进他家你会发现,仿佛整个世界都安静了下来,毕竟没有室外的嘈杂与喧嚣,且简洁大方的效果处处令人心动,实在是太美了,就忍不住分享出来,以期供有需要的朋友做个参考。
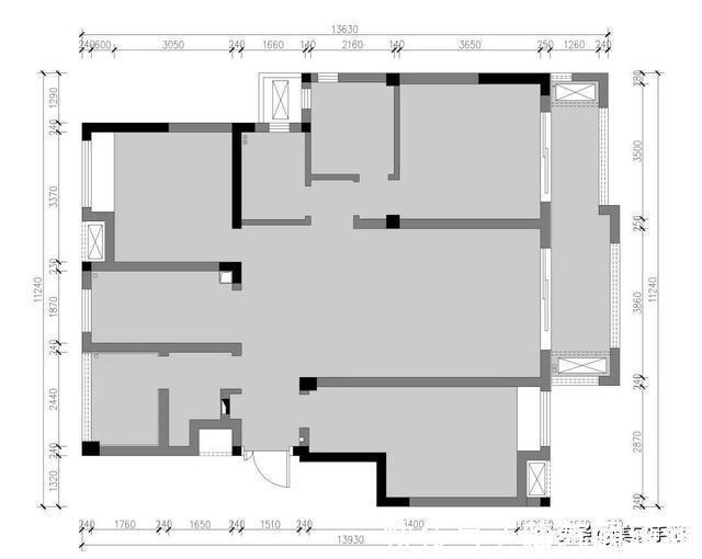
平面图

原始结构图
新房三室两厅,存在问题主要有玄关空间过于狭小,无法定制鞋柜储物;其次,进门左侧的厨房被各种零碎的墙体分隔开来,如此显得空间狭小逼仄不说,通风和采光还特别差。

平面布置图
基于此,针对上述问题优化如下:一,将进门右侧的卧室改小,然后挤出一部分空间设置鞋柜和步入式的衣帽间,分别满足两个空间不同的使用需求。二,将进门左侧厨房与之相邻的墙体砸掉,即化零为整,如此显得敞亮通透。三,客卫房门改向,以便于主卧纳入走廊过道为主卫扩容的同时,将洗漱台挪出卫浴门外布局为双分离的结构,这样无论空间利用率,还是使用效率都很高。
入户

进门右侧原本通往书房,如前所述,为了定制鞋柜,就将房门改到了客厅沙发的后面,不过受制于角度问题,鞋柜我们看不到。其它是方便进出门整理衣着的穿衣镜。左侧的话是厨房,打通与之相邻空间的墙体后,能够增强通透感的同时,让入户的采光变得更好。
厨房


化零为整后的厨房,空间变得敞亮大方,这样做起饭菜来,心情都心情都更加的愉悦。中间的话为了提高利用率,增设了中岛。总之,从右侧的嵌入冰箱和蒸烤机的家电区,再到左侧的烹饪区,动线十分流畅。


拉长视野,可以发现岛台右侧可以作为吧台用来放松休闲,加之距离餐厅不远,可以增强两个空间的互动与交流。需要补充的是,屋主把洗衣机也一并嵌入到了这里。至于地面,为了方便清洁打理,采用花色雅致的地砖,并和客餐厅处的地板加以划分。
餐厅


餐厅的装修其实不需要过多的讲究,因为跟着整体风格走就对了,此时再搭配相应的家具完事,像这里就是如此,直接依靠轻巧高颜值的餐桌椅就能提升质感,此时再加上绿植插花的点缀,空间顿时充斥着勃勃的生机与活力。
推荐阅读
- 实用|看了她的家,我终于鼓起勇气决定“去客厅化”,太实用了!晒一晒
- 不动产登记|230平的大房子,有庭院还有地下室,朋友聚会都去他家!
- 床尾|看了她家的美式风装修后,彻底爱上了,不仅温馨时尚还带有高级感
- 建筑设计|老爸为了露台买没人要的顶楼,花3个月改造后,小区邻居看了都羡慕!
- 露台|造价25万二层自建别墅,外观简约好施工,超大露台设计,看了就想拥有
- 实用|头一次见有人这样设计衣柜,老木工看了直夸聪明,美观又实用
- 装修|看了她家厨房,发现这些家居设计太实用了,庆幸自己早点看到!
- 保障性住房|晒晒刚打扫干净的新房,盘点7个血泪遗憾,大家看了别踩坑!
- 造价|看了5000套农村别墅,帮你挑出3款超赞的,图纸快收藏
- 装修|她花了7w改造55㎡loft,完工效果堪比小别墅,太好看了!
