今天来欣赏一组温馨舒适的105平简约原木风格新房装修。年轻人在新房装修时,多会选择现代简约或者北欧风格这种年轻时尚的装修风格。
有些人装修的时候会考虑客厅装修风水,如果一进门发现横梁压顶那确实一个不好的设计,在风水学来讲,客厅的横梁会给人产生一种心理压抑感。建议在装修的时候可以使用天花板或者悬挂饰品加以化解,如果面积够大,也可以以横梁为界设计成两个客厅。
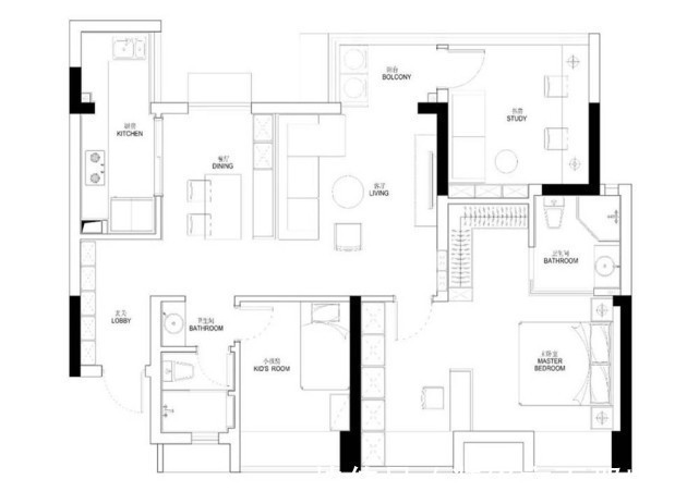
【 三居室|105平简约原木三居室,工作台前面的墙加了隔板做展示】
轻松浪漫,符合现代年轻人对简约风和轻奢格调的双重要求。

客厅沙发背后的餐厅卡座沙发,设计成隔断,好看实用。特别是对空间收纳需求很高的小户型装修,完全可以考虑卡座设计哦!温馨又有情调,收纳设计能帮我们省不少事呢。
无论家里面积大小,卧室都是一个不能忽略的场所。装修时,有些小细节稍不注意,就可能影响到每天的睡眠质量和生活状态。

主卧床头背景墙采用,高级灰的壁纸,搭配胡桃木的床,瞬间提升空间质感。
餐厅在家里也是很重要的,毕竟吃饭的时候都要去餐厅。在一个环境好的餐厅里面吃饭,整个人的心情都不一样哦。所以,在餐厅的装扮上同样要下功夫哦!

餐厅选用了木质餐桌椅,搭配色彩明亮的小吊灯,错落有致氛围轻松愉悦。开阔的空间充沛的光线,为家里带来舒适与惬意。
厨房是我们经常光顾的地方,其中的电器、管道等等也比较多,装修的时候也要多费些心思,一不小心就会留下隐患,也给日后生活增添麻烦,所以一定要考虑周全。

这是从餐厅看向厨房,动线合理空间通透,明亮而不拥挤。
书房是工作、学习和放松的地方。所以书房的设计,既要显得很宁静,也不能太乏味。一般家庭书房的空间不会很大,所以在设计书房的时候,就需要格外用心,要让书房发挥它最大的价值。

次卧做了一整面的玻璃推拉门,视野更加宽阔,双方父母偶尔会来小住几天,所以这间卧室大部分时间。

以原木色为主温馨不言而喻,软装搭配简约简单,工作台前面的墙加了隔板做展示。
推荐阅读
- 房价|日本梦回“平成二年”?东京房价破8000万日元!再也降不下来了
- |三口之家的平衡空间,温柔安静纯白,用极简风叙述空间的故事
- 卫浴|分享一个乌克兰62平公寓,明亮且充满活力,感受下紫配绿的魅力
- 购房置业|蚌埠将设官方二手房交易监管平台?官方回复称争取今年内.....
- 公证|首单!杭州二手房自主平台交易可使用公积金贷款
- 西乡塘|房产证刚加上名字就要离婚平分房产,女子吃相难看,法院:不支持
- 恒大|实探政务东3盘,最低1.9万/平?年后就要卖...
- 购房置业|每月按时缴纳2500元公积金,在国内属于什么水平?内行人说出实情
- 现代|104平用现代手法设计空间,抽身于俗世喧嚣回归至内心纯粹
- 装修风格|参观杨洋现实的豪宅,家里收拾得干净整洁,平时太讲究卫生了
