

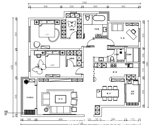
书房的格调相比其他空间更加沉静稳健,这里是男主人的办公空间,也是他难得的独处空间。全实木背景墙搭配实木书桌,大屏幕搭配舒适沙发,木材的自然与织品的柔软为主人带来极致感官体验。
在看尽繁华时,一番与灵魂深处的自我对话显得格外珍贵;一朝一夕间,高楼、车流、人群,都如过眼烟云。劳累之余亦可安排一些让人轻松的影音、游戏等娱乐,可谓是办公休闲两不误。



将卫生间的浴盆置于窗边,面朝广阔的大海,来一场酣畅淋漓的沐浴体验,是舒适、是释放。

推荐阅读
- 现代|南亭印象45.11㎡2室现代风格简约明亮舒适
- 客厅|一言难尽!住140㎡以上大平层,真实的体验是什么样的?
- 邻里|限价最高达16740元/㎡!朝阳新城“明星地块”真的来了!
- 榻榻米|9㎡的小卧室,通过改造秒变15㎡,全靠合理的布局来实现
- 优雅|90㎡简约民宿风,异域风情的装饰、清新的绿植,满屋轻松惬意
- 阳台上|140㎡新中式风格,每一面都别具风味
- 储物区|90后男主坚持把卧室抬高至半空,35㎡家储物空间翻倍,太实用
- 法拍房|7381元/㎡!濮阳东方花园二期法拍房成交!
- 床头柜|103㎡现代简约,留白+原木+绿植,让生活悠闲舒适有故事
- 购房置业|洋房均价1.87万/㎡,新站区招商奥体公园新增备案
