效果图展示

效果图展示
占地面积:24.8m*15.0m,300平方米左右
建筑高度:10.9米(含屋顶);
设计功能:
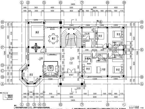
一层户型:客厅、餐厅、厨房、棋牌室、茶室、卧室(带卫生间、;衣帽间、卫生间)、卧室(带卫生间)×2、卫生间;
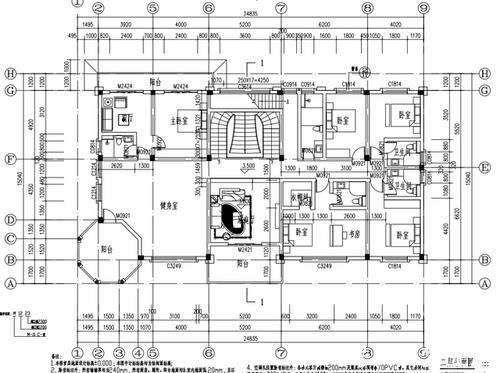
二层户型:家庭厅、健身室、主卧(带客厅、卫生间)、卧室(带卫生间、;衣帽间、卫生间)、卧室(带卫生间)×2、卫生间、阳台

户型图展示

户型图展示
有没有喜欢的款式?可以评论告诉我!我下次分享给你哦!
推荐阅读
- 主卧|越简约,越幸福!113㎡坚持全屋化繁为简,家居氛围太棒了!
- 房地产市场|降价一千多万!钦州市这个烂尾楼第五次拍卖,八百多万被人接手
- 收纳|新房装好还没入住,媳妇差三岔五去布置,太美了!迫不及待想晒晒
- 心眼|今年买房一定要多个心眼,正月十五后先搞清三件事情
- 物业|未来10年,这“五种”房产将变得最难转手,别砸手里应提前知道
- 央行|房贷利率终于降了!央行宣布:五年期LPR下调!
- 养老|白菜价,中国房价最低的五座城市,适合养老吗
- 黄金屋|新政出台锁定3类房子,五年后成“黄金屋”,聪明人早就入手了
- 小房间|参观140㎡大婚房,朋友都夸餐边柜有档次,我却更喜欢主卧的飘窗
- 五星街道|4个中风险区降级,西安现有高中风险区1+17个
