【 主卧|五开间二层自建房布局图,看了谁还在城里买房啊】现在,在农村建别墅的朋友越来越多。过去,亲戚朋友帮忙搭把手房子就能建起来,那时候房子的造型和结构基本都差不多。现在,别墅风格越来越多样化,受年龄、生活方式和审美的影响,不同年纪的人喜欢的别墅风格都不同。今天就给大家安排三款风格不一样的五开间二层自建房布局图以及效果图,赶快安排上吧!
第一套:欧式二层别墅设计图以及户型图,豪华大气
简易农村别墅二层三间的房子设计图,好看实惠,施工也简单,最适合农村!别墅外型设计比较时尚,采用欧式现代风格,外墙使用真石漆,优雅清新的米白色使人感到舒适,也提升了建筑的档次。灯光辉映,美观大气!

效果图展示

效果图展示

效果图展示
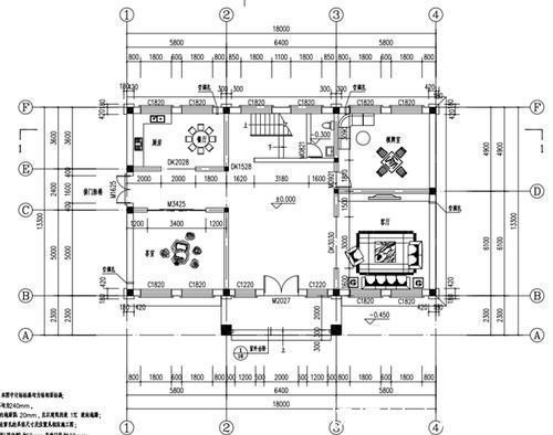
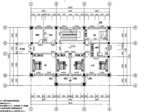
占地面积:18.0m*13.3m,200平方米左右
建筑高度:11.55米(含屋顶);
设计功能:
一层户型:客厅、餐厅、厨房、卫生间、茶室、棋牌室;
二层户型:主卧(带衣帽间、卫生间)、卧室x4、卫生间、杂物间、阳台

户型图展示

户型图展示
第二款:简欧式大户型二层别墅设计图以及户型图,清新淡雅
200平米二层别墅设计图,别墅的配色清新淡雅,浓浓的乡村气息,能够充分的体现农村富足的生活。有人说,我就想建一套这样的别墅当作我养老的地方,有我喜欢的东西、我喜欢的人,平和淡然,怡然自得。

效果图展示

效果图展示

效果图展示
占地面积:16.2m*11.7m,205平方米左右;
建筑层高:二层;
建筑高度:10.2米(含屋顶);
设计功能:
一层户型:客厅、餐厅、厨房、卫生间、主卧(带卫生间)、卧室×3、储藏间;
二层户型:客厅、卧室x4、书房、卫生间、阳台、大露台

户型图展示

户型图展示
第三款:高端豪华二层别墅设计图以及户型图,多窗户设计
高端豪华二层别墅设计图,占地300平方米,楼梯设计的无比大气,搭配不求繁多而是追求精华,给人一种低调有内涵的感觉,色彩搭配十分和谐,多窗的设计让室内光照十分充足。

效果图展示

推荐阅读
- 主卧|越简约,越幸福!113㎡坚持全屋化繁为简,家居氛围太棒了!
- 房地产市场|降价一千多万!钦州市这个烂尾楼第五次拍卖,八百多万被人接手
- 收纳|新房装好还没入住,媳妇差三岔五去布置,太美了!迫不及待想晒晒
- 心眼|今年买房一定要多个心眼,正月十五后先搞清三件事情
- 物业|未来10年,这“五种”房产将变得最难转手,别砸手里应提前知道
- 央行|房贷利率终于降了!央行宣布:五年期LPR下调!
- 养老|白菜价,中国房价最低的五座城市,适合养老吗
- 黄金屋|新政出台锁定3类房子,五年后成“黄金屋”,聪明人早就入手了
- 小房间|参观140㎡大婚房,朋友都夸餐边柜有档次,我却更喜欢主卧的飘窗
- 五星街道|4个中风险区降级,西安现有高中风险区1+17个
