真正好的装修,不是一味地套用“设计模板”,而是要根据自身需求,打造最实用的「家」。本期,甜茶为大家分享的家装案例,是一套约89㎡的三居室。屋主是一个90后女生,喜欢简约舒适的装修风格,希望屋内能有足够的收纳空间,还要保证通透敞亮。

▲装修实拍图//户型分析//原户型是个两居室,整体户型还算方正。缺点:每个房间的距离都比较近,再加上层高较低,很容易造成拥挤感。优点:双阳台设计,保证采光;卧室区的非承重墙比较多,容易调整格局。

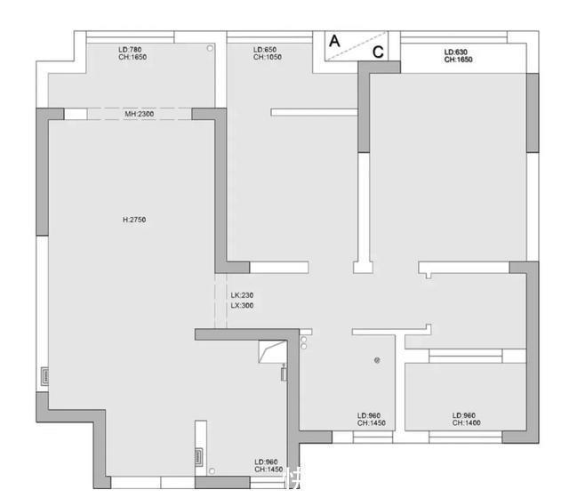
▲户型平面图//设计亮点//根据屋主的需求,结合房子的实际情况,设计师对该户型做出了如下调整:①室内不安主灯,减少层高上的压抑感;②所有的室内门都做移门设计,更节省空间;③把主卧的衣帽间和卫生间,改为榻榻米茶室,变两房为三居;④打通次卧和阳台之间的隔墙,提升空间利用率。

▲装修平面图—■玄关■—入户玄关设计比较简单,做了嵌入式的收纳柜,白色的柜体与墙面保持一致,看起来整洁大气。玄关收纳柜底部悬空,内置隐藏式灯带,用于存放常穿的鞋子;柜子的中间做开放式结构,可以摆放相框、手办等装饰品;其余柜体部分均设置了白色柜门,用于收纳鞋子和生活杂物。

▲玄关实拍图—■厨房■—厨房紧挨入户门,做了玻璃移门的设计,可增加内部采光。厨房配色以白色为主,墙面铺设了方格小砖,搭配灰白色的大理石地砖,简洁又清新。抽油机选择了当下比较流行的白色侧吸款,体积小、吸力强,而且颜值很高,放在厨房里立刻成为焦点。

老板(Robam)抽油烟机侧吸油烟机家用抽吸油烟机网红油烟机¥1999领券减100京东月销827购买

▲厨房实拍图—■客厅■—客厅与阳台之间未做隔断,只安装了薄纱窗帘,提升了公共空间的通透性。客厅内虽然没有主灯,但是设计师在天花板上设置了充足的筒灯,保证了厅内的亮度,减少照明死角。

▲客厅实拍图一字型灰色沙发靠墙摆放,搭配原木休闲椅和圆形茶几,营造舒适放松的居家氛围。电视柜的角落里,摆放了一株网红绿植,名为吊钟,素有“叶界的爱马仕”之称。它的叶片如倒钟般一串串地倒吊挂着,很讨人喜欢,放在家中别有一番韵味。

天然精选鲜切日本吊钟¥15.9拼多多月销8784购买

▲客厅实拍图—■餐厅■—餐厅空间小巧紧凑,设计师做了一体式的“餐桌 餐边柜”的组合结构,最大化空间利用率。餐边柜中间预留9个格子,做开放式处理,可以用来摆放装饰品;四周安装柜门,可存放餐具和杂物。

推荐阅读
- 高楼层|楼层不管有多少,坚持楼层“3选2不选”准没错!建筑师说出原因
- 房价|为什么当年日本要刺破房产泡沫,如果坚持“保房价”会怎么样?
- 开放式|厨房别再做“开放式”了,学她这么装!全屋颜值、实用性瞬间提升
- 她家148平米,进门就被玄关迷住,不做吊顶跟背景墙,阳台超漂亮
- 薄荷蓝|走进她家,才知什么叫美观与实用并存,全屋温暖又清爽,太舒服了
- 烤漆面|老公坚持餐厅不做柜子,原来用吊兰做隔断可以这么漂亮,学到了
- 购房置业|夫妻俩大胆改造老房,坚持把3房改为1房,过于舒适了
- 主卧室|为了20㎡小院子,老公坚持买一楼,完工进屋就被迷住了,晒晒
- 乳胶漆|看她家装修,比样板房还漂亮,电视墙特别实用,值得做参考!晒晒!
- 购房置业|为什么这个阿姨开发商给她退房后,还要大闹售房部
