将热爱融入生活,打造带有浓郁东方特色的住宅,真的好美
业主本身对东方文化非常喜欢,平时私下里也喜欢东方传统的茶道,爱好收藏。因为对生活的热爱让他也想把这份热爱融合到自己的家中,设计师在充分了解了业主的需求和生活习惯之后,把一个复式家居打造成一个结合浓郁的东方特色住宅,力求满足业主的一切喜好和对家居的设想,让其能更好的享受悠闲的生活。
房屋户型:
复室
房屋面积:
260平方米
装修预算:
50万
所在城市:
江苏南京
主要建材:
实木,理石
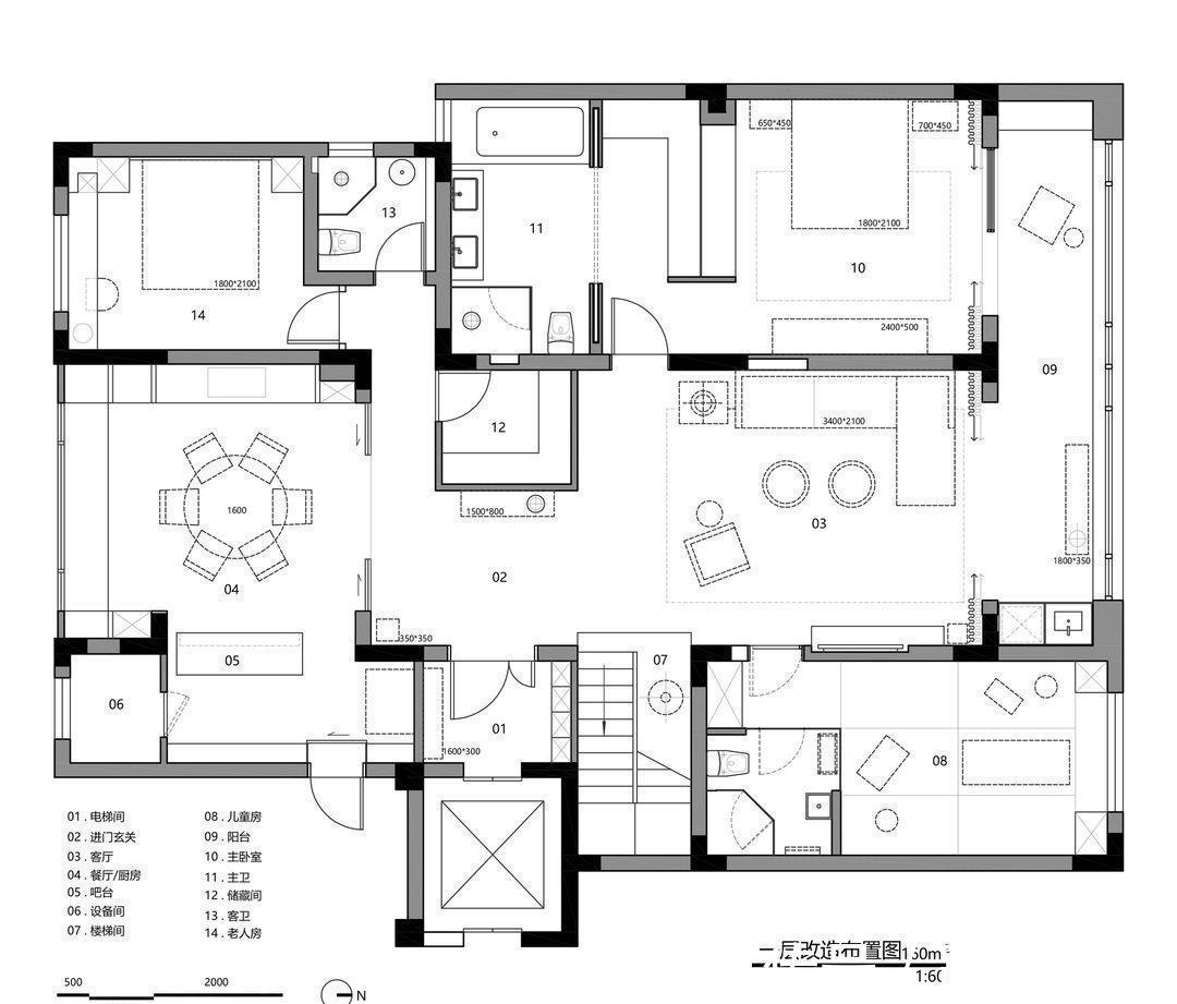
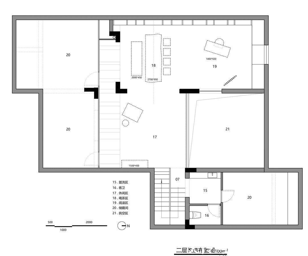
【户型图】


一层和二层的面积都比较大,重新改造之后在两层空间内都扩大了生活区,同时也增设了之前没有的休闲娱乐区,不仅能够满足家人的娱乐需求,也方便招待亲朋好友来家中聚会玩耍。
另外空间面积在重新划分的同时也进行了重新布局,力求打造一个符合全家人生活习惯的动线,方便上下楼以及使用各个空间。
【玄关】


设计重点:实木隔断引领空间动线
一进入玄关区首先是由实木隔断做分离,把玄关区做出明确的划分,然后利用木质隔断内在打造成一个收纳区,完美的解决了入户口的收纳问题,还十分的美观和大气。


进入到玄关区也能看到客厅和其他区域,紧密的联系让空间之间形成完美的搭配。而作为装饰的挂画和复古式案桌更显玄关的简练和艺术气息,还没进入到空间内部就已经被中式文化的底蕴所感染。
【客厅】

设计重点:超高挑高更显客厅通透
一层客厅原来是封闭式顶棚,在改造之后顶棚被拆除,和二层之间没有阻隔,从二层就能看到一层客厅的风景,也方便家人之间沟通。

而且超高的挑高,更让客厅变得十分宽敞通透,丝毫没有之前的压抑感,阳光可以从旁边和二层的玻璃窗照射进来,整个空间都会变得十分明亮。

而客厅主要以黑白色为主,颇有水墨画的意境和氛围。搭配着明艳色系的艺术摆件,更像是水墨画上的印章一样,点缀着空间的浪漫和艺术。

同时处处可见创意十足的艺术摆件也让客厅更加丰富灵动
。流畅的动线极简的线条,在简约的同时也保留了各自的特色,让古今在这里都变成了一体,不再有时间的分割,有的只是那内在的沉稳和韵味。
【厨房】

设计重点:大面积空间营造舒适操作区
推荐阅读
- |最高暴涨70万!宁波二手房市场即将回暖?
- 武汉市自然资源和规划局|确定了!白沙洲将新添一所高中
- 限购|哈市125家房企将列入重点监管范围,详细名单→
- 物业管理|瞄准高估值,2000亿房企将分拆物业赴港上市!物管行业遇冷,这一"新物种"能否打破寒冬?
- 银行|如果出现大规模的房贷断供现象,银行和业主将两败俱伤
- 学区房|对于开发商,一旦你不懂这5大“潜规则”,买房成本将会增加20%!
- 购房置业|造纸业在北海铁山港区将再征地1405.2亩
- 房贷|房贷利息要降?市场将现长阳?!
- 多渠道|贵阳2022年将新开建8000套保障性租赁住房
- 实木|100㎡小户型, 美式风装的很美腻
