图纸|5套乡村小别墅, 10年后最流行的款式, 每一款都很美!
城里有房乡下有别墅
才是成功人士的标配没有动辄上千万的豪宅就回乡盖一栋乡村小别墅也能满足你的别墅梦
图纸编号:gg038
开间:11.4米
进深:10.8米
占地面积:123平方米
建筑面积:249平方米
结构类型:砖混结构
主体造价:32万




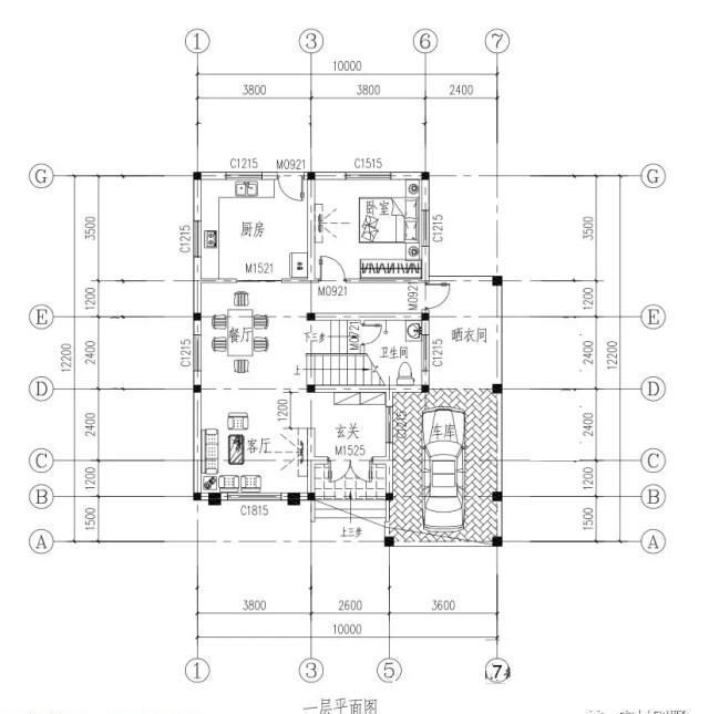
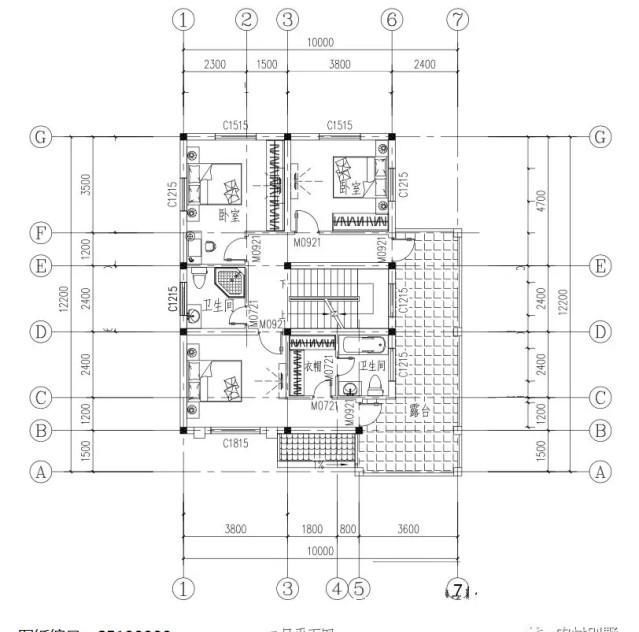
图纸编号:S104
开间:11.7米
进深:11.6米
占地面积:134.85平方米
建筑面积:207.44平方米
结构形式:砖混结构
土建造价:25万元

方方正正的两层小楼
在蓝天白云、葱葱绿树的掩映下
格外富有生活气息
大小面积适中
外观优雅漂亮


图纸编号:S107
开间:13.7米
进深:12米
占地面积:164平方米
建筑面积:251平方米
建筑层数:2层
结构类型:砖混结构
主体造价:22万左右

多玻璃的运用让大自然与内部空间融为一体质朴温润的空间环境更和谐的是英式建筑语言与现代的氛围形成有效对话成为舒享简约、豁朗的艺术美家


图纸编号:SF180908
开间:10米
进深:12.2米
占地面积:110平方米
建筑面积:168平方米
结构类型:砖混
主体造价:15-20万




图纸编号:YG340
开间:15米
进深:20米
占地面积:260平方米
建筑面积:350平方米
主体造价:62万左右

别墅素雅的配色
用朴素的材料重新定义了奢华
推荐阅读
- 碧桂园|小城市的房住不炒,遇上返乡置业
- 修建|精选10套三层户型图纸,占地面积均不足百平,尤其适合新农村修建
- 搬家公司|乡住免费图纸土建造价参考88万面宽15.5m 进深14.4m 三层新中式别墅
- 露台|推荐5款三层别墅设计图纸,最适合农村建的房子
- 造价|乡住土建造价参考81.2万,面宽13.4m×进深11.9m 三层新中式风格别墅
- 简约|又放假又有购房补贴,多地为鼓励生子接连“放大招”,有你家乡吗
- 新青年|多地发展保障性租赁住房,9地年底出新招,有你家乡吗?
- 户型|实拍10套农村3层小别墅, 想省钱就建第6套, 养老房就盖第5套
- 秘密花园|如果你在乡下老家有个院子,可以这样设计!比城里别墅还精美大气
- 农村|农村盖小院,我只服这5套中式别墅,最低20万你盖不
