年纪大了,谁不想要有一套舒适的养老房呢?不用太豪华,但必须要实用,最好是中式风,简约大气又不易过时,每天坐在家里喝喝茶,下下棋,养养花,这样的生活也太体面了吧!

这是一套毛坯房,135㎡的大平层,中式风格,半包价20万左右,是业主给自己的养老房,虽然只是效果图,但典雅又耐看,越看越喜欢,真的太想给爸妈也整一套了!

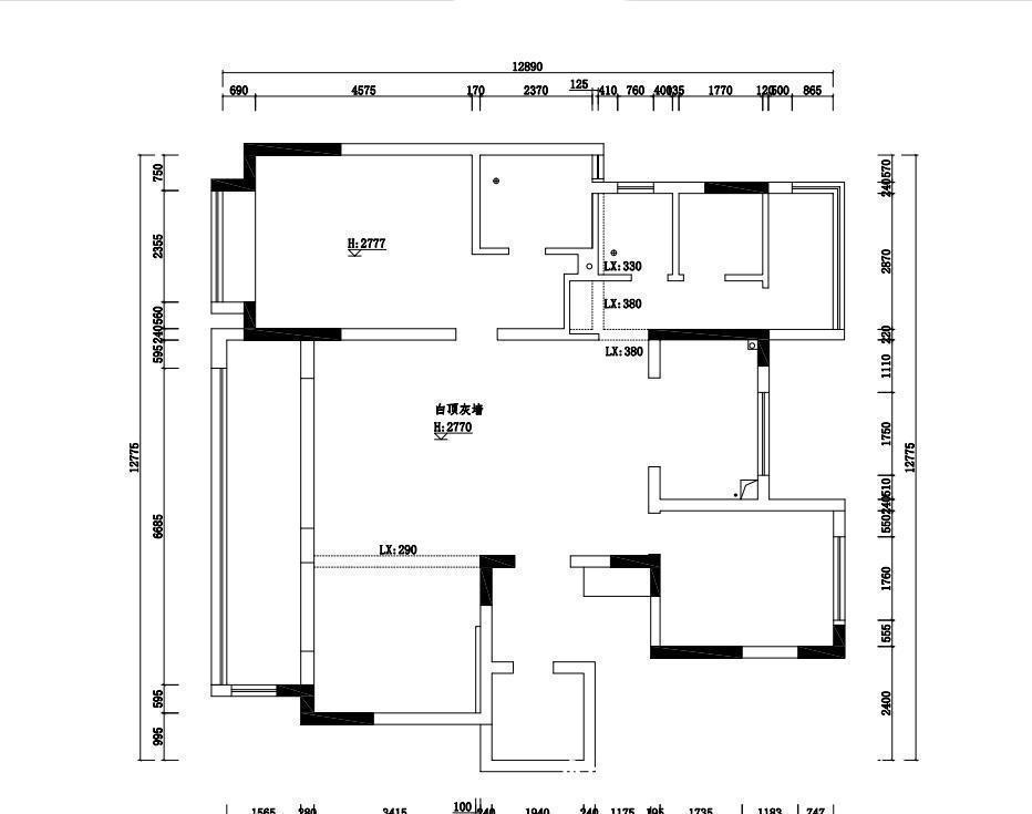
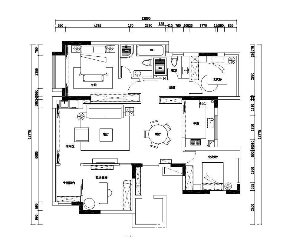
由于是一梯一户,所以借用室外空间设计了玄关,进门就是客餐厅,家里保留了3个卧室,虽然是养老房,但也给孩子们预留了房间,两个卫生间一主一客能满足需求,有些小细节我们下面一起来看看!


【打通阳台,隔出多功能房】
客厅装修前:

客厅没有买沙发,而是选择了罗汉床沙发椅,显得素雅又有品位,在上面放置一个小茶几,平时约上好友坐在上面品茶下棋,一个人的时候也可以躺在上面,享受轻松时光。外面打通阳台包进室内,客厅通透大气人人见了都会夸上几句!


对面墙上挂电视,墙面没有做任何造型,两边只通过黑胡桃木护墙板来做装饰,电视下面塞个小电视柜,既能收纳,又能达到视觉上的平衡。

原本客厅里多个开放式小空间,着实是有些浪费,设计师砌堵墙做隔断,隔出一个多功能房,不管后期是作为茶室还是书房都很实用。

阳台打通包进室内后,一边打洗衣柜,到顶的柜体储物空间大,又能避免落灰,洗衣机和烘干机嵌入其中,左边增加洗衣池,方便洗手和清洗小衣物。

另一边生活阳台同样是靠墙打柜子,做个小家政间,阳台中间空出来的区域能包进客厅作为休闲区使用,这样一来休闲和生活功能都齐了,空间可不能浪费了!

餐桌摆在入户门和厨房门的中间位置,中间的折叠式长虹玻璃门打开直接连通厨房和餐厅,用餐更方便,做饭时再关上,防止油烟窜出来,另外长虹玻璃还有透光不透视的作用。

线条简洁的中式圆桌和靠背椅组合,去繁存简,落落大方,平时一大家子人可以围绕圆桌吃个团圆饭,画面很温馨。一侧墙壁嵌入个黑胡桃木餐边柜,上面透明柜门让人一抬头就能找到想要的东西。

【拆墙增加过道,改变房间门洞方向】
推荐阅读
- 屋主|56㎡小户型老房改造,小而美的设计!
- 现代风|168㎡现代风,带着浓郁的归属感与愉悦感
- 深色|155㎡简约风,承载着三代人的生活,不花哨让家务少一半
- 混淆感|146㎡北欧经典白色三居室,诠释令人心醉的优雅
- 饱和度|173㎡轻奢新中式,古典和现代的碰撞,唯美浪漫!
- 背景墙|97㎡现代风,以时尚打造空间,以新颖突出特点
- 地板|160㎡四居室,玄关比我家卧室都大,这才是真正的低调奢华有内涵
- 棚户区改造|开盘预告|合肥又有6盘要加推,均价1.39-2.54万/㎡全都有
- 小房间|参观140㎡大婚房,朋友都夸餐边柜有档次,我却更喜欢主卧的飘窗
- 灵魂深处|全屋定制案例|儒雅新中式,展现灵魂深处的东方情怀
