院子|农村的院子太让人羡慕了,12×9米中式大院,能养鸡鸭能种菜
秀雅别致的中式合院,雕刻的木质造型尽显格调,庭院设计让绿意充满生活,浮躁的心得以安宁下来,静静感受这份缠绕在指尖的古韵。
传统的先入庭院再进居室的布局,唤醒了人们内心深处的居住传统;而舒适的套间设计,则为人们带来最具现代化的起居生活。

户型基本信息
占地尺寸:12.64m×9.29m
占地面积:126.27㎡
建筑面积:252.55㎡
建筑高度:7.27m
建筑结构:砖混结构
建筑情况:设4室 3厅 4卫 1厨 1书房 1榻榻米室 1阳台

平面布局图:
雅致中式合院,最得国人喜欢,前院虽小,但胜在温馨实用,特别是在有风的夜晚,在园中纳凉闲谈,用安静优雅渲染出整个小院的风采。
室内布局讲究和谐自然,南北通透的公共区域,风穿堂而过,拂走不美好的情绪,开启全新的一天。
一层老人卧室设计一米八大床与独立卫生间,父母的晚年生活得到保障,儿女才安心;又另设计储藏室与书房,享受当下无人干扰的安静氛围。
餐厅处设计小门一扇,通往原住宅保留的北房与东西房,仅对外立面进行美化装饰,与新建住宅保持一致。

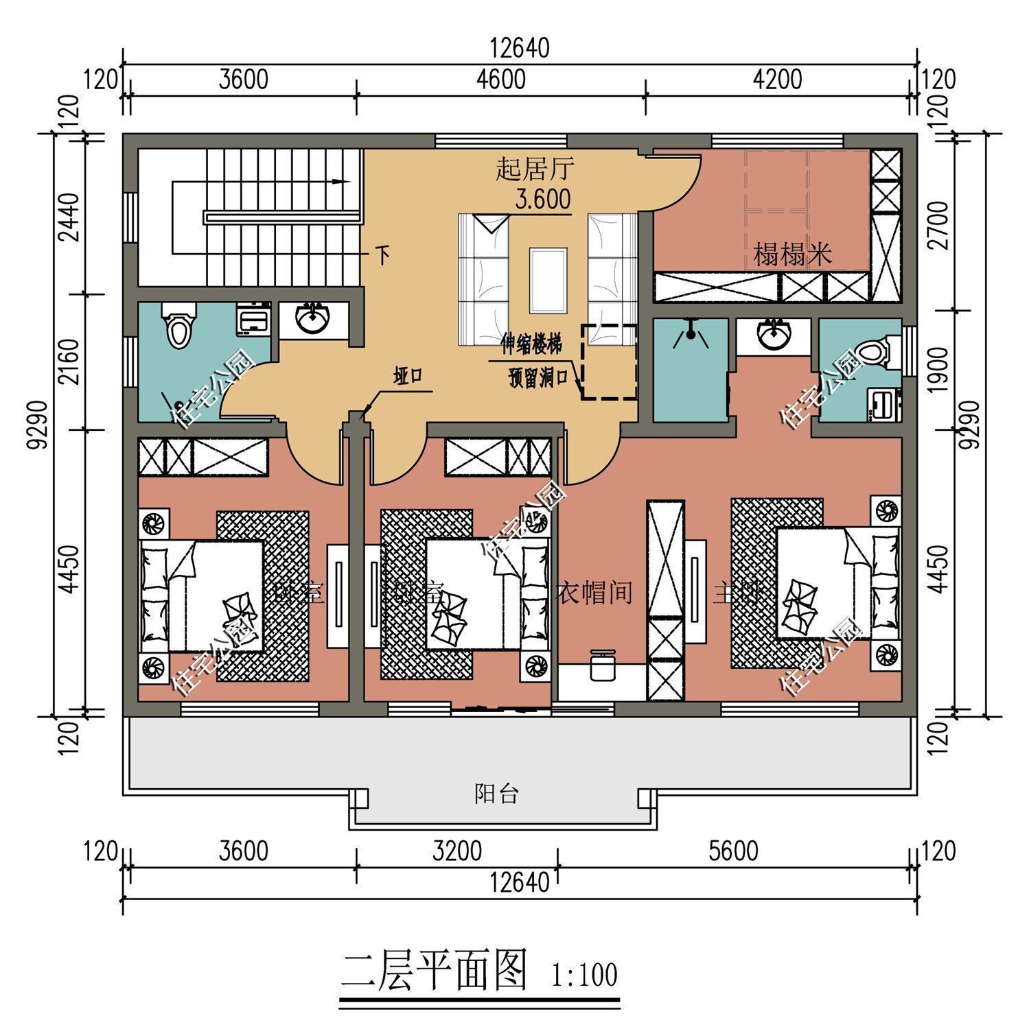
二层三间卧室都朝南,采光通风自不必多说,带给家人完美的居住舒适度,这样的住宅才是现代人追求的高品质生活。
【 院子|农村的院子太让人羡慕了,12×9米中式大院,能养鸡鸭能种菜】另外又设计榻榻米一间,作为备用房使用,若是家中来客需留宿,那么这间卧室便可派出用场。

关注本号,每天都有新户型,还有乡邻晒家,建房省钱小妙招一手掌握。
推荐阅读
- 屋主|56㎡小户型老房改造,小而美的设计!
- 春节|如果能重来,阳台一定“9不装”,并非迷信,是过来人的经验教训
- 装修|乔迁新房3月以泪洗面!当初的不理智,连犯15个极品装修坑!作孽
- 现代风|168㎡现代风,带着浓郁的归属感与愉悦感
- 深色|155㎡简约风,承载着三代人的生活,不花哨让家务少一半
- 混淆感|146㎡北欧经典白色三居室,诠释令人心醉的优雅
- 造纸|生活用纸,黄卫生纸真的好于白色卫生纸吗?来听造纸员工怎么说!
- 对象|廉租房和公租房的有什么区别?
- 饱和度|173㎡轻奢新中式,古典和现代的碰撞,唯美浪漫!
- 小钱|游点好笑!收手机的新方式,一抓一个准!这老师怕是柯南看多了?
