防水式|300平奢华中不失低调,清爽中不失稳重的现代美式风
此案设计初衷是要体现出一种奢华中不失低调,清爽中不失稳重的现代美式风格。设计中考虑了厨房与餐厅的过渡与衔接,采用镂空花格形式区分两个空间,且镂空花格又不是两个空间的联系。二楼为现代中式风格,将原有的不规则的顶面完全融入整个空间。
客厅的设计,制造宽敞的感觉是一件非常重要的事情,不管固的空间是大还是小,在室内设计中都需要注意这点。宽敞的感觉可以带来轻松的心境和欢愉的心情。

黄色的主色调与黄色的地砖垫形成了鲜明的色彩呼应,把客厅大气和时尚体现得淋漓尽致。

二楼客厅的设计简单大气上档次。沉淀心绪的旅人就可以静静窝在此处,为其保留着隐私、不打扰,但是想要诉说,始终有人可以聆听。

三人沙发加单人沙发,细品生活滋味,带来格外舒适的居住氛围中。
卧室是人们最好的休息空间,应该具有安静、温馨的特征,所以卧室装修从选材、色彩、室内灯光布局到室内物件的摆设都要精心设计。

女儿房采用一贯的粉色墙面搭配粉色软装,象牙白衣柜,干净舒适。

阁楼卧室充分利用阁楼顶面造型,突出美式天窗造型的美感。
卫生间最好要装防水式的插座,或者加上一个外壳,用来防水。地漏要装在最低点,防水施工的时候最适合的方法就是涂抹防水法,浴室防水的高度不要少于180cm。

细品生活滋味,带来格外舒适的居住氛围,天衣无缝地融入美式轻奢的家居空间之中。
安全性是儿童房设计时最需要考虑的重点之一。孩子们经常在房间里玩闹嬉戏,如果家具的形状比较尖锐,孩子们可能在玩闹中容易受伤,我相信这是很多家长都不愿意看到的。所以,我们在选购家具时应该尽量选择圆滑的形状,既美观又不会对孩子造成威胁。

儿童房象牙白榻榻米搭配木质地板,使整个空间温馨舒适。

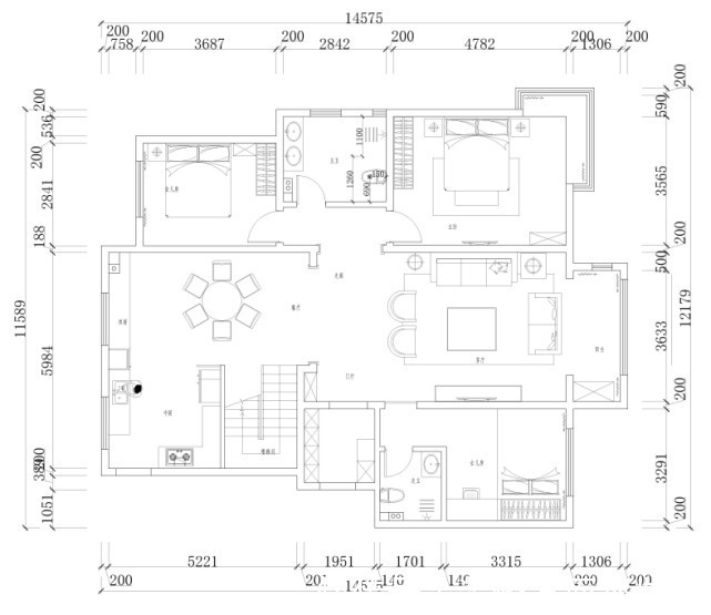
本案房子建筑300平复式,房子比较方正,使用率高。
【 防水式|300平奢华中不失低调,清爽中不失稳重的现代美式风】原始户型图,户型较为方正,在拆改较少的前提下满足客户需求。
推荐阅读
- 贷款|5月起,“2道铁令”,今后这1种买房方式再也行不通了
- 饱和度|173㎡轻奢新中式,古典和现代的碰撞,唯美浪漫!
- 小钱|游点好笑!收手机的新方式,一抓一个准!这老师怕是柯南看多了?
- 卫生间|129平现代美式三居室,打造出一个舒适又温馨的美式家
- 融创中国|融创手握1600亿现金,回笼资金超300亿元,孙宏斌有牌可打了?
- 防水|东方雨虹为何不惧地产下行?
- 厦门|2021年中国新增6座超300米摩天大楼,数量领跑全球
- 墙面|过道能''挤''出空间 5种方式帮你充分利用每一寸,档次蹭蹭上涨
- 灵魂深处|全屋定制案例|儒雅新中式,展现灵魂深处的东方情怀
- |中式庭院,这才是最让我们心动的院子
