今天的案例来自广州的张小姐,她说“极简是最理想生活状态,而亲切与舒适,正是一个家该有的模样。”她家装修色调以纯白为主,原木色为辅,呈现出生活中的暖意。不仅干净清爽,而且极简大方,让人一眼就爱上了。


业主需求:
常住人口是一家四口,有孩子的家,要有广泛的活动空间,想在哪玩就在哪玩。
室内空间都尽可能做大,减少累赘家具的摆设。
增加玄关区域设计,增加收纳,提升玄关空间利用。
使用原木材质定制收纳柜,合理收纳。
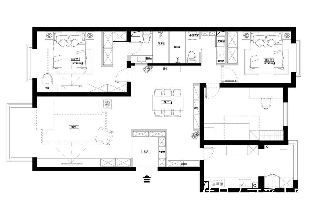
玄关

进门瞬间,可以感受到清新自然的视觉冲击,纯白+原木色干净整洁,美观大气。到顶设计的玄关柜增加收纳空间,中间悬空摆放钥匙等小件物品再合适不过了。

下方悬空处可以摆放常穿的鞋子,进出门更加快捷方便。上面是镂空窗设计,增加空间的视觉通透感。
客厅

客厅是家里主要的休闲区域,大长沙发是深灰色的布艺材质,耐脏又舒适,沙发背景墙是大白墙,加上画框装饰,丰富墙面,增加艺术气息。

电视背景墙是组合柜形式,原木材质+灰色瓷砖是经典的色调搭配,让人看电视时不会有视觉疲劳。收纳柜可作为书架使用,摆放各种书籍及装饰品,让客厅空间更具立体层次感,也更具实用性。

阳台包进客厅里,减少中间隔断后可提升室内的采光效果,让客厅区域明亮宽敞,躺在沙发上也能享受阳光的沐浴,十分惬意。
餐厅

餐厅区域空间宽敞,摆放传统原木餐桌,搭配六张同系列餐椅,在个性灯具的装点下,很有幸福温馨的意境。
厨房

厨房同样延续了简约原木风,一字形的橱柜安装,洗、切、煮合理动线分布,方便厨房操作。厨房阳台隔断拆除,增加实用空间,采光通风的效果更好。
主卧

卧室装修没有过多的装饰,简简单单的原木护墙板,旁边是嵌入式的定制衣柜,美观又实用。

卧室床软和舒适,素雅的床铺可以有更好的睡眠质量。两边床头柜对称设计,收纳小件物品极其方便。

卧室窗户比较大,躺在床上也能观赏到窗外的美景。

卫生间利用玻璃门实现干湿分离,确保卧室卫生间的干净清爽。
次卧

次卧设计的风格与主卧相差不多,父母的房间一定要有良好的采光和通风,这样每天休息也更舒服自在。
推荐阅读
- 收纳|去邻居家参观才知道,卫生间不装柜子这样设计,防潮耐脏好清洁
- 她家148平米,进门就被玄关迷住,不做吊顶跟背景墙,阳台超漂亮
- 薄荷蓝|走进她家,才知什么叫美观与实用并存,全屋温暖又清爽,太舒服了
- 收纳|打柜子不是越多越好,6个地方别随便装,多装一个都闹心
- 乳胶漆|看她家装修,比样板房还漂亮,电视墙特别实用,值得做参考!晒晒!
- 华侨城|CO-LAB丨极简主义自然酒店
- 收纳|这8个位置装修记得装柜子,收纳面积增加20㎡不是问题!
- 罐罐|听我一句劝:厨房别再摆瓶瓶罐罐,学她家这样做,美观方便还不贵
- 石材|2022年室内家装新趋势,极简风或成“冷门”?
- 收纳|床尾墙这个小地方,装修时容易忽视,到底该如何设计呢?
