大家都知道,现在国家对农村土地的管控越来越严格。新申请的宅基地往往面积都不大,基本都在100平左右,日后小户型或将成为农村主流。
其实只要设计的好,小面积也能建出大气别墅。今天就给大家推荐两款二层别墅,看看是不是你喜欢的!
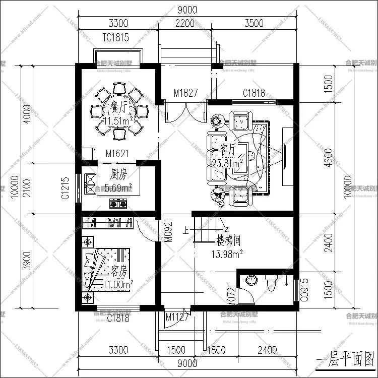
图纸编号:TC-056

开间:9米进深:10米
占地面积:90平方米
建筑面积:180平方米
建筑层数:2层
建筑结构:砖混结构
主体造价:27万元(仅供参考)


设计说明这款别墅的外观为简欧设计,一个“简”字贯穿整个建筑。房屋外立面真石漆着色,大气自然就是美。这款别墅更加符合乡村房屋风格,户型简单,易于施工。


图纸编号:TC-080

开间:10.2米进深:8.5米
占地面积:86平方米
建筑面积:173.4平方米
建筑层数:2层
建筑结构:砖混结构
主体造价:25万元


设计说明这款别墅为中式风格,造型比较方正,效果图一出,大家一定被其设计风格惊艳到。多窗户设计,不仅为整体外观加分,也保证了室内采光和居住的舒适度,在众多乡村欧式中让人眼前一亮。

【 二层|两款占地90平左右二层别墅,造价20来万,农村人人都盖得起】
推荐阅读
- 管道|为什么说:再穷也不买二层?了解这些弊端之后,就知道多糟心了!
- 修建|精选10套三层户型图纸,占地面积均不足百平,尤其适合新农村修建
- 购房置业|农村建新房就选这套四层别墅,占地100多平,8间卧室人人都有地睡
- 贵州|利落挺括,12×11米现代二层别墅,4卧2厅好格局开启全新生活
- |占地8.38X9.8米,小宅基地怎么修
- 小知识|农村建新房就选这套四层别墅,占地100多平,8间卧室人人都有地睡
- 实用|衣柜太占地方?越来越多人这样装衣柜,好看实用还省地!
- 农村|13.3×12.5米二层别墅,精致农村住房,带给你雅致的生活!
- 占地方|家里阳台不要装推拉门了,不实用又占地方,聪明人都装这种代替
- 玻璃淋浴房|卫生间不要装玻璃淋浴房了,聪明人回家这么装,省钱实用不占地!
