两栋宽9米多的农村自建别墅,南北通透,这种房子住起来舒爽。在我们江西农村建房子,就是讲究南北通透,有些地方可能有着后面不能留门的风俗,就选择侧面开门,来加强室内通风性。南北通透的户型,住起来真的很舒服,尤其是炎热的夏天,下面两栋面宽9米多的农村别墅,都是南北通透户型。
户型一:9.2×11.9米,砖混结构,占地面积113.12平方米,外观用红色小面砖、黄色真石漆、浮雕构件等装饰,屋面处用红色的釉面瓷瓦铺装。

平面图:一层南北通透,配两间卧室,主卧室内带独立卫生间,二层设有三间卧室和多功能客厅,室外配观景阳台,三层两间卧室设计,并配有单独的储物室一个,室外设休闲露台和凉亭。



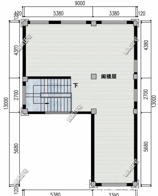
户型二:9×14.2米,带阁楼设计的别墅,简欧风格外观,外墙面用浅黄色真石漆分缝装饰,配落地窗一扇,屋面处用蓝灰色的釉面瓷瓦铺装。

平面图:一层同样前后通透,配堂屋、老人房等,室内空间宽敞采光好,二层设三间卧室,主卧室带独卫,室外北立面处设大阳台,三层两间卧室,主卧室带独卫、衣帽间和大阳台,室外配休闲露台。

【 瓷瓦|两栋宽9米多的农村自建别墅,南北通透,这种房子住起来舒爽】

如果老家面宽9米左右,也不要急着建房,选择一款合适户型之后,就能建出如以上两款户型这样漂亮的别墅。两栋宽9米多的农村自建别墅,南北通透,这种房子住起来舒爽。
推荐阅读
- 施工|面宽均为12米的两栋自建房,简单施工易,造价25万上下
- 建房子|面宽11米, 进深16.5米的农村三层别墅, 前后有花院还带车库, 完美!
- 购房置业|买房界的黄金法则:好房子横向要宽、纵向要薄,多面朝南
- 杜新枝|郭希宽与杜新枝名下6套房产,这是谣言还是有确凿的证据
- 搬家公司|乡住免费图纸土建造价参考88万面宽15.5m 进深14.4m 三层新中式别墅
- 造价|乡住土建造价参考81.2万,面宽13.4m×进深11.9m 三层新中式风格别墅
- 户型|北漂夫妻买下24㎡婚房,柱子4米宽,窗台就占户型面积一半
- 储物柜|为什么日本人的家看起来更“宽敞”?而我们的家看着就很憋屈!
- 现代风|75㎡现代风设计,别看房子小小的,空间特宽敞!
- 装修|玄关太窄怎么办?老师傅建议这样装修,收纳多还宽敞
