
儿童房以榻榻米的设计,柜桌一体,将空间利用到极致,床边便是孩子学习的地方,整个空间清新舒缓。
玄关作为房屋装修中的门面担当之一,在整体装修中相当重要。装修之初应该先确定玄关到底要承担什么功能,我们的需求无非也就是能放鞋子,坐着换鞋,能挂衣物,可以收纳小东西。从这个角度出发,玄关的设计也就不难了。

玄关处摆上一条长凳,方便业主入户后拖鞋,嵌入式墙柜,增加了家里的收纳空间。

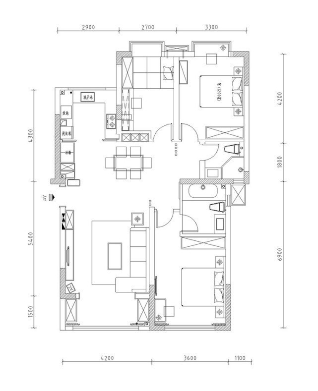
这套案例的结构为三室两厅,从户型图可以看到入户后,左侧餐厅和厨房相邻,方便家居生活,右侧即为客厅,三间卧室分布在卫生间左右两侧,空间布局
推荐阅读
- 地板|160㎡四居室,玄关比我家卧室都大,这才是真正的低调奢华有内涵
- 卫生间|129平现代美式三居室,打造出一个舒适又温馨的美式家
- 三居室|118平现代风三居室,一个简单而纯粹还原生活色彩的家
- 郑州|买房月供曝光!郑州最新平均工资8694元,撑得起房贷么?
- 石家庄|144平的面积,无人值守棋牌室,这是如何做到的?
- 简单感|现实的平衡取舍,才是生活之道!143平现代风格设计欣赏!
- 她家148平米,进门就被玄关迷住,不做吊顶跟背景墙,阳台超漂亮
- 修建|精选10套三层户型图纸,占地面积均不足百平,尤其适合新农村修建
- 南通|拍卖成功!江苏南通一处197平住宅192万成交!
- 鞋柜|我家无玄关的玄关设计超赞!左邻右舍来参观,看完都要回家照着装
