新房入住不久,6大败笔后悔莫及,鼓起勇气晒晒,大家别再犯!
新房是一个94平小四居,装的是现代简约风,整个装修花了差不多五个多月的时间,然后又通风了小半年。现在已经入住一个多月了,住进去后才慢慢发现新房装修有6个败笔,你说拆了重新搞吧,它们影响不是很大,而且花了钱自己有点舍不得。不拆吧,就是咋看咋不舒服,真的是让人心里难受。今天鼓起勇气,也给大家晒晒,希望通过我的分享,能让大家少犯点错,毕竟装好了再想改就难了!
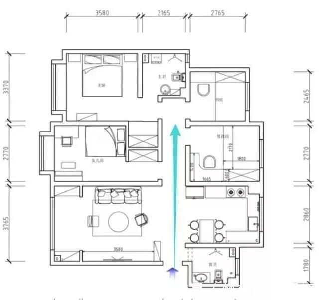
户型图

这是我家的户型图,是不是很方正,虽然面积不是很大,但是也算是典型的四室两厅,全明通透户型,从一进家门起,就是一个比较长的过道,就像我箭头标出来的这样,没有独立的玄关,也是挺遗憾的了。

所以只能是在一进门这里做了一个小的鞋柜,入住以后才发现,这个鞋柜真的是太小了,完全不够用,塞不下几双鞋子,里面就满了。这就是我家装修饿的第1个败笔,你说换个大点的鞋柜吧,又挡住开关了,这就是典型的装修前没设计好,将开关设计到别的地方,这里做一个大的通顶玄关鞋柜,还可以挂衣服,客厅的私密性还好,收纳空间也充足。所以大家在装修前,一定不要着急,多想想怎么设计好一些,方便后期入住使用。
客厅

家里整体是现代简约风格,所以客厅装的也比较简单,重装饰轻装修么,墙壁全部刷了暖色墙漆,然后没有做什么造型,简单几幅装饰画来点缀,比较清爽漂亮,灰色的布艺沙发,看起来也比较温馨舒适。
电视墙

电视墙全部贴的是这种深红色的菱形墙布,看起来还是比较耐看的,虽然简简单单的,远看还是比较大气的。而贴墙布比贴墙纸的好处在于,墙布是一个整体,贴出来没有接缝,更好看一些,而且质感也比较好。但是,第2个败笔马上就来了,那就是电视柜选择的真失误,空格子比较多,特别不耐脏,不经意间就落满一层灰,而且还不好打扫,就应该选择一个全封闭的,平常只需要打扫表面就行。
餐厅

房子整体是一个东西通透,所以餐厅和客厅看起来是一个整体,中间是一个过道隔开,地面上铺的是灰色北欧风地板,漂亮又耐看。餐厅选的是一款黑色实木餐桌,然后顶部三盏充满金属质感的小吊灯,看起来还挺小资的。
厨房

厨房的空间比较小,所以当初就做成了开放式的,这也是我家的第3大败笔,想着开放式厨房就配集成灶好一些,没想到一点都不实用,我们家做饭油烟比较大,然后开放式厨房,烟全跑客厅去了,而且冰箱上面那么一大截是空出来的,本来应该做吊柜的,现在特别容易落灰。这些问题也是在入住之后,才慢慢发现的,刚装好的时候,还蛮喜欢的,现在别提多糟心了。
主卧

主卧刷的浅粉色墙壁,然后一张双人大床,床头是那种法兰绒设计,真的很舒服。整体给人的感觉就是温馨舒适,非常不错。
推荐阅读
- 装修|乔迁新房3月以泪洗面!当初的不理智,连犯15个极品装修坑!作孽
- 大悦城|家里这两个地方别漏了贴瓷砖,许多人为了省钱,入住就后悔了
- 疯狂|1月20日广州新房网签210套,增城以43套再次蝉联榜首!势头强劲!
- 亮点|等了6个月终于能晒晒新房了,都挺满意的,客厅是最大的亮点
- 武汉|合肥楼市新房火热的原因找到了
- 购房置业|农村建新房就选这套四层别墅,占地100多平,8间卧室人人都有地睡
- 二手房|纠结!买房子是买市中心的二手房好还是买偏一点的新房好?
- 别墅|买不起别墅,买了一楼带30㎡院子的房子,入住两年多,后悔了吗?
- 房价|东莞新房价格真的降了吗?盘点2022年东莞10大在售新楼盘价位
- 明贴|房子装修一定要装这几样东西,好多人没听劝,后悔入住才察觉
