这是一套一梯一户的140㎡新房装修案例,自带入户花园,不用为玄关鞋柜而烦恼的户型,户主追求简约而不简单的质感,不需要多有个性的造型设计,只需在满足各种功能前提下,可以更好的享受居家品质生活。
那么,一起来看看他是如何装修的吧?

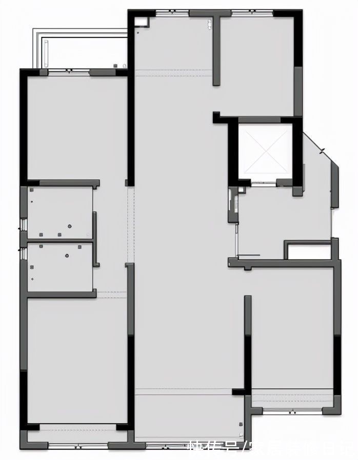
原始户型图,一个很方正得户型,格局分配已经非常的合理,只需要根据居住者的使用需求和习惯进行微调就可以了。

设计优化后的平面格局户型图,主要有两处墙体拆改。
1、借用厨房右侧多功能室的部分面积,扩大厨房面积;
2、借用与公共卫生间相邻卧室的部分面积,扩大卫生间面积。

入户花园出看向室内,客餐厅中间的走廊过道做了“平吊式吊顶”,然后镶嵌“洗墙灯(灯带、线条灯等等,哪个效果好选哪个)”,在公共卫生间门口特地做了一面隔断墙,遮挡卫生间,这样整体的空间视觉效果会更为美观,毕竟进门第一眼就把卫生间一览无遗,肯定会影响心情。

客厅
电视背景墙做了护墙板装饰,然后电视柜用“砖砌地台”设计,表面铺贴大理石,大气上档次,另外一间卧室的门开在电视背景墙所在的这面墙上,因此选择了隐形门设计,让背景墙能保持美观的完整性。
其次,沙发背景墙刷了水泥艺术漆,然后还用宽窄不一的亮面条装饰,设计感非常强的同时又能增强空间层次感,沙发边上用绿植点缀,让人给有一种粗犷中带着自然的时尚感。


餐厅
餐厅连着厨房,所以餐厅没有直接的采光光源,需要借助厨房和客厅的光,因此一个“高透光”的厨房设计显得非常重要,所以厨房的门选择“折叠门”设计,最大程度减少门扇对空间通透性的影响,而且还能隔断油烟的外溢。
ps:做了开放式设计的厨房,是不符合开通天然气的条件,因此在做开放式厨房前需要了解一下当地的政策,直接咨询物业是最快捷的方法。

【 背景墙|南京140㎡新房装修,艺术漆+弧线半吊,简单却有藏不住的高级感】厨房
做u型橱柜动线,然后餐厅和厨房之间还加了一个吧台隔断,与折叠门交替使用。

厨房边上的多功能房做了地台设计,因此在门口处直接做了两坎台阶,更有格调。

主卧
主卧的床头背景墙做了“护墙板墙裙设计”,然后镶嵌“洗墙灯”,营造温馨浪漫的氛围环境。

客房
浅灰的床头背景墙,搭配皮质软包的床头靠背,时尚又能突显小资轻奢气质,床头柜上还摆一支树枝,用绿意来点缀更显温馨。


儿童房
墙面做了墙裙设计,然后床靠角落摆放,这样的摆放方式可以整合过道空间,让活动空间更为宽敞,床头的墙壁上还做了壁龛,摆放书籍和工艺品。
推荐阅读
- 背景墙|97㎡现代风,以时尚打造空间,以新颖突出特点
- 小房间|参观140㎡大婚房,朋友都夸餐边柜有档次,我却更喜欢主卧的飘窗
- 她家148平米,进门就被玄关迷住,不做吊顶跟背景墙,阳台超漂亮
- 购房置业|造纸业在北海铁山港区将再征地1405.2亩
- x2|三层现代风格别墅 140平米,清新脱俗,是当下年轻人最喜欢的设计
- 餐厅|这套新房真有创意,客厅改主卧,电视背景墙后面设吧台!
- 乳胶漆|等买了房,就照他家这么装,全屋不吊顶,不做背景墙,越看越耐看
- 南京市住房保障和房产局|“一房一码”,南京出台存量房核验新规 今年2月1日起正式实施
- 简约风|140平现代简约风三室装修,全屋用莫兰迪色系太温馨了
- 住房公积金|南京哪里有代缴社保公积金的?
