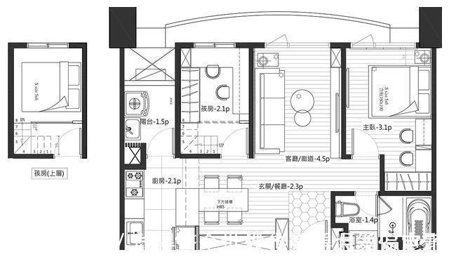
只要设计规划得当,小空间也能满足居住机能。今天和大家一起来参观的这套小户型房子,一共含阳台在内只有66平米,但一样拥有2个房间,和功能完整的餐厅厨房,该有的都没有少。基本资料/总坪数66平米/格局2房2厅1卫/居住人数2大2小

<屋主需求>*小孩房做上下分层空间规划,争取使用面积;*订制餐桌,可以确实利用空间;*希望收纳空间充足;【 桌面|参观女高管家的小户型设计,家里收拾得和人一样光鲜亮丽啊!】

室内挑高3米6,比一般楼高来得高,于是收纳空间朝上开发;小孩房的部分做了上下层规划,上层可以容纳两个小朋友的床铺,下方也有了规划书桌的位置,让孩子们有舒适念书环境。

善用浅色放大空间感,是常见设计手法,在经过屋子主人的加入些奢华元素,比如客厅的大理石电视墙面,搭配纯白壁面弧形天花板,呈现古典优雅又轻松的空间氛围,纾解小空间可能的压迫感也把屋子点缀的个更加的丰富多彩起来了。

每个拥有小空间的住宅来说都希望能在小空间创造最大利用价值,才能容纳一家四口。因此在配置上,和屋主沟通比较久,确保能尽量满足他们的生活所需的基本功能。小空间所需要的收纳,也都善用空间特性做调配,搭配浅色的空间配色让视觉得到放松。

因为室内坪数其实不大,设计了屋子主人喜欢的古典的空间布置,还运用了很多工法在这个工地里头。比如铁件、泥作、木作、石材、油漆等。一般小空间很少同时用到这么多工法,但也丰富了这个小户型的视觉面貌,费劲了小心思吧。

1.玄关设计:小当家认为空间再小,都应该有个玄关做室内外缓冲区。因此在门口连接餐厅处,做了玄关柜,可以摆放外出衣物和钥匙等小物,而且一入门也不会一眼望尽室内,少了隐私感。

玄关区的地面特别选用瓷砖,与室内空间的木地板做一个区域上的视觉区隔。

2.客厅设计:大理石电视墙让浅色系空间多些奢华感,搭配白色木百叶窗、浅绿色沙发背墙,客厅虽然面宽较窄,但是在其中却很舒服。

在空间设计之余,生活基本功能也必须兼顾,浅色大沙发占据快一半面积,不得不使用小茶几,可以搭配边桌使用,多一个桌面空间。

3.餐厨设计:规划的初期,提出希望餐桌是订制的想法。除了让桌面宽度可以符合空间需求,也能在桌面下方规划收纳。因此餐桌下方可收纳电器和用品。加上餐厅空间确实狭小,一般尺寸餐桌放不进去,订制餐桌虽然较贵,却能符合需求。

推荐阅读
- 客厅|参观向华强和陈岚的豪宅,房子层高太矮了,住着不压抑吗
- 收纳|去邻居家参观才知道,卫生间不装柜子这样设计,防潮耐脏好清洁
- 小房间|参观140㎡大婚房,朋友都夸餐边柜有档次,我却更喜欢主卧的飘窗
- 别墅|参观亲戚上海的豪宅,别墅硬是住成农村房,真是糟蹋了好房子
- 鞋柜|我家无玄关的玄关设计超赞!左邻右舍来参观,看完都要回家照着装
- 置物架柜|不靠父母付首付买房,装修直接简装,朋友来参观直夸漂亮上档次
- |参观精装楼盘样板间,三居都市轻奢范儿,玄关柜墙太惊艳了
- |参观同事172㎡观景洋房,入户花园就抵个客厅,这才是豪宅呀
- 休息站|参观日本的卫生间才知道,已经人性化到这种程度了,太先进了
- 大衣柜|晒晒同事的34㎡小家,买房时都不看好,装完参观都哑口了,真羡慕
