现在,在农村建别墅的朋友越来越多。过去,亲戚朋友帮忙搭把手房子就能建起来,那时候房子的造型和结构基本都差不多。现在,别墅风格越来越多样化,受年龄、生活方式和审美的影响,不同年纪的人喜欢的别墅风格都不同。今天就给大家安排三款风格不一样的五开间二层自建房布局图以及效果图,赶快安排上吧!第一套:欧式二层别墅设计图以及户型图,豪华大气简易农村别墅二层三间的房子设计图,好看实惠,施工也简单,最适合农村!别墅外型设计比较时尚,采用欧式现代风格,外墙使用真石漆,优雅清新的米白色使人感到舒适,也提升了建筑的档次。灯光辉映,美观大气!
效果图展示
效果图展示
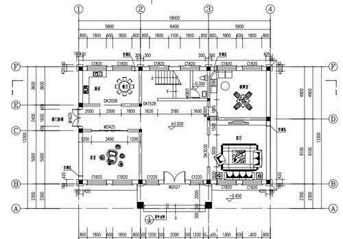
效果图展示占地面积:18.0m*13.3m,200平方米左右建筑高度:11.55米(含屋顶);设计功能:一层户型:客厅、餐厅、厨房、卫生间、茶室、棋牌室;二层户型:主卧(带衣帽间、卫生间)、卧室x4、卫生间、杂物间、阳台
户型图展示
户型图展示第二款:简欧式大户型二层别墅设计图以及户型图,清新淡雅200平米二层别墅设计图,别墅的配色清新淡雅,浓浓的乡村气息,能够充分的体现农村富足的生活。有人说,我就想建一套这样的别墅当作我养老的地方,有我喜欢的东西、我喜欢的人,平和淡然,怡然自得。
效果图展示
效果图展示
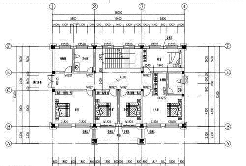
效果图展示占地面积:16.2m*11.7m,205平方米左右;建筑层高:二层;建筑高度:10.2米(含屋顶);设计功能:一层户型:客厅、餐厅、厨房、卫生间、主卧(带卫生间)、卧室×3、储藏间;二层户型:客厅、卧室x4、书房、卫生间、阳台、大露台
户型图展示
户型图展示第三款:高端豪华二层别墅设计图以及户型图,多窗户设计高端豪华二层别墅设计图,占地300平方米,楼梯设计的无比大气,搭配不求繁多而是追求精华,给人一种低调有内涵的感觉,色彩搭配十分和谐,多窗的设计让室内光照十分充足。
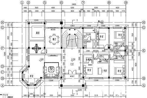
效果图展示
效果图展示
效果图展示占地面积:24.8m*15.0m,300平方米左右建筑高度:10.9米(含屋顶);设计功能:一层户型:客厅、餐厅、厨房、棋牌室、茶室、卧室(带卫生间、;衣帽间、卫生间)、卧室(带卫生间)×2、卫生间;二层户型:家庭厅、健身室、主卧(带客厅、卫生间)、卧室(带卫生间、;衣帽间、卫生间)、卧室(带卫生间)×2、卫生间、阳台
推荐阅读
- 屋主|56㎡小户型老房改造,小而美的设计!
- 小户型|发现丈夫赠人房产 妻子怒讨买房款
- 卫生间|什么才叫好户型?来看看这5个标准,你家房子符不符合?
- 修建|精选10套三层户型图纸,占地面积均不足百平,尤其适合新农村修建
- 住房公积金|什么才叫好户型?来看看这5个标准,你家房子符不符合?
- 民营企业|小户型必看扩容6招,让家里每 1㎡ 都不浪费!
- 五星街道|4个中风险区降级,西安现有高中风险区1+17个
- 智睿|老装修升级计划 篇九十五:魔都二手房全屋灯光改造,给自己一个明亮智能的家!
- 山东省|好住│金牛岭片区的刚需户型,两梯两户还配入户花园
- 公卫|回农村建房,展示一套“牛”户型,二楼稍微改动就完美了
