简约|90㎡简约风格复式,小户型一样有大空间!
今天,小编给大家介绍一套装修案例。这是一套面积为90平.米的简约休闲复.式案例,虽然两层的面积仅90平.米,但功能规划合理。半包装修花了8万,加上家具家电,总造价21万。
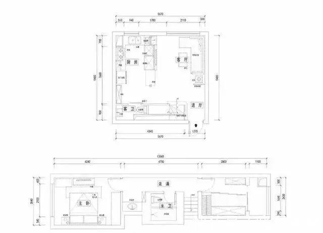
下面是户.型图
01
玄关
玄关 一点没有局促感,一楼餐厅与厨房开.放式的设计,宽敞透亮,还有楼梯、过道的空间都得到的合理的利用,储物空间充足,小复.式也可以住得很舒服惬意。
玄关处以马赛克彩绘玻璃作为隔断,色彩绚丽,又增加的空间采光与通透性。
一面木质格栅屏风,化.解入户直面客厅和窗户的问题,保护了隐私,也解决了风水问题。
02
客厅
客厅与厨房开.放式的设计,整体简约敞亮。通铺木地板,搭配清新朴素的家具,与窗外的景致一样宜人。
沙发背景墙错落的文化石装饰,搭配简约的木质隔板,摆放上装饰画,与一旁的工业风落地灯相佐,个性文艺感倍浓。
蓝色双人沙发搭配绿色单人沙发,清新朴实。
白色北欧风茶几组,错落相依,轻便实用。
木作半高隔断柜,兼具电视背景与橱柜机能,左侧延伸小吧台作为简餐区,暖木色和亮黄吧台椅提亮空间色彩。
木作黑色隔断框架,分隔客厅与开.放式厨房场域,并创造一种框景效果。
吧台两侧的餐椅似有镜相的效果。
03
厨房
开.放式的厨房设计,U型橱柜,实现在储物功能的zui大化。
从厨房空间看向走廊。
04
客厅
网红款谷仓门作为客卫门,入门处的墙面增添储物空间,或开.放或封闭的柜子,灵活以层次感。
05
楼梯
【 简约|90㎡简约风格复式,小户型一样有大空间!】设计师利用楼梯下方的空间,打造了一组嵌入式书柜,放孩子看的绘本,高度刚好合适!
入户的七彩马赛克与楼梯的色彩形成鲜明的对比,楼梯的灯光也是别具艺术感的。
黑色楼梯步搭配黑色扶手,装几盏壁灯形成夜灯效果,光与影的结合,安quan又美观。
06
衣帽间
二楼长条形户.型,长长的走廊延伸至独.立衣帽间,置顶储物柜有着超.强的收纳功能。
07
主卧
推荐阅读
- 屋主|56㎡小户型老房改造,小而美的设计!
- 现代风|168㎡现代风,带着浓郁的归属感与愉悦感
- 深色|155㎡简约风,承载着三代人的生活,不花哨让家务少一半
- 混淆感|146㎡北欧经典白色三居室,诠释令人心醉的优雅
- 饱和度|173㎡轻奢新中式,古典和现代的碰撞,唯美浪漫!
- 背景墙|97㎡现代风,以时尚打造空间,以新颖突出特点
- 地板|160㎡四居室,玄关比我家卧室都大,这才是真正的低调奢华有内涵
- 棚户区改造|开盘预告|合肥又有6盘要加推,均价1.39-2.54万/㎡全都有
- 小房间|参观140㎡大婚房,朋友都夸餐边柜有档次,我却更喜欢主卧的飘窗
- 简单感|现实的平衡取舍,才是生活之道!143平现代风格设计欣赏!
