农村|180平米左右自建房设计图,造价经济实惠,在农村太受欢迎了
说到农村建房子,现在大多数地区宅基地都受到限制,只有少部分地区可以随心所欲的建。而且现在建房子的款式还很单一,外观看上去都差不多,所以没有什么新奇的地方。今天小编推荐三款占地180平米左右自建房设计图,造价低,户型好看,室内布局也很合理,宅基地不受限制的朋友们赶快收藏啦。
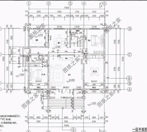
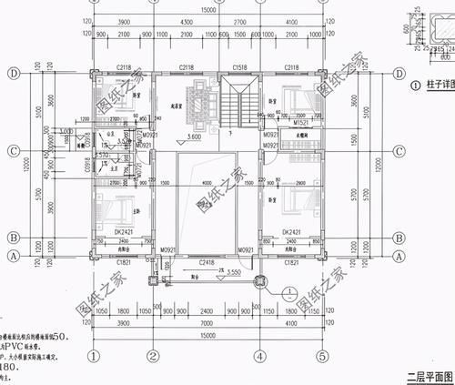
款式一:农村二层别墅设计图,欧式风格,占地180平米左右
图纸介绍:这款二层别墅占地180平米,复式客厅中空设计,欧式风格外观,棕红色的坡屋顶搭配米色的外墙,非常大气。
占地面积:15.0m*12.0m,180平方米左右;
建筑层高:二层;
建筑高度:10.26米(含屋顶);
设计功能:
一层别墅户型:客厅、厨房、餐厅、卧室x2、卫生间、娱乐室(功能自定义)、储藏间;
二层别墅户型:客厅上空、起居室、主卧(带卫生间)、卧室x4、衣帽间、卫生间、阳台x3;



二层别墅设计图
款式二:农村二层别墅设计图,占地178平米左右,造价30来万
图纸介绍:这款二层别墅占地178平米左右,简欧风格,外观经典时尚大气,内部布局设计合理,稳重大气,美观大方,搭配蓝色瓦屋顶高端上档次。
占地面积:12.6m*13.2m,178平方米;
建筑层高:二层;
建筑高度:11.248米(含屋顶);
设计功能:
一层户型:堂屋、客厅、厨房、餐厅、卧室(带卫生间)、卧室、卫生间、洗衣房;
二层户型:卧室(带卫生间)x2、卧室x4、卫生间x2、阳台;
【 农村|180平米左右自建房设计图,造价经济实惠,在农村太受欢迎了】

二层别墅设计图
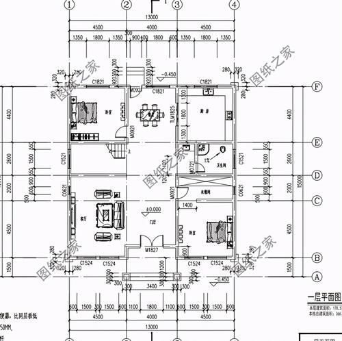
款式三:农村二层别墅设计图,占地180平米,造型美观大方
图纸介绍:这款二层别墅设计占地180平米,造型简单大方,室内布局合理,共有六间卧室,家里人多也住得下,带阳台设计。
占地面积:13.0m*15.0m,180平方米左右;
建筑层高:二层;
建筑高度:9.9米(含屋顶);
设计功能:
一层户型:客厅、餐厅、厨房、卫生间、卧室(带衣帽间)、卧室;
二层户型:起居室、卧室(带衣帽间,卫生间)、卧室(带书房)、卧室×2、阳台;



二层别墅设计图
不知道这三款别墅大家最喜欢哪一款呢?欢迎下方评论留言。
推荐阅读
- 建房子|面宽11米, 进深16.5米的农村三层别墅, 前后有花院还带车库, 完美!
- 别墅|参观亲戚上海的豪宅,别墅硬是住成农村房,真是糟蹋了好房子
- 购房置业|今年起,农村老家的老房子,统统按照“新规”处理,子女提前知晓
- 修建|精选10套三层户型图纸,占地面积均不足百平,尤其适合新农村修建
- 上海市|2022年农村人要“享福了”?实行按户补贴,跟村民们的房子有关
- 洗衣房|这三款农村四合院设计图让不少城里人羡慕,父母看了也欢喜
- 购房置业|农村建新房就选这套四层别墅,占地100多平,8间卧室人人都有地睡
- 别墅|土豪农村盖大别墅,人人羡慕,如今却成为全村人眼中的大笑料
- 李沧|农村建房不能超过几层?面积是怎么规定的?农村建房的流程及条件一览
- 露台|推荐5款三层别墅设计图纸,最适合农村建的房子
