中式合院|9套经典案例告诉你,为什么农村盖房,中式合院会如此受欢迎!( 三 )

内装鉴赏
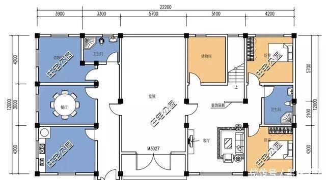
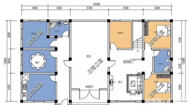
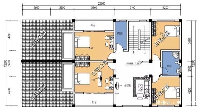
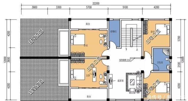
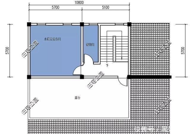
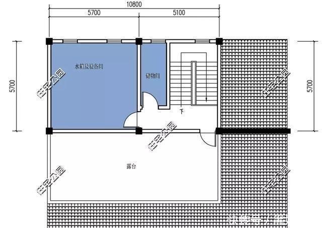
案例九占地尺寸:22.5m×12.5m建筑面积:526㎡
平面布局图:


湖南朱先生一直有一个新家梦。与乡亲们大多爱欧式洋楼不同,朱先生一开始就想盖一栋中式小院,享受徐步闲庭雨卿卿的诗情画意。为了这个梦想,朱先生耗费了大半年的时间,总花费103万建起这栋中式小宅。
沿袭传统中式的白墙灰瓦基调,再加上考究的层次设计、精致的窗花格栅、漏窗小景,使这栋新房极富意蕴。
装修鉴赏晒家丨湖南朱先生自建新中式美墅,这才是农村别墅应该的样子,心动不?
相信大家看完上面这9套实建案例,一定被中式建筑的魅力所折服,若能在村里建一栋这样的中式小院,别提有多完美了。
推荐阅读
- 饱和度|173㎡轻奢新中式,古典和现代的碰撞,唯美浪漫!
- 万科|首付745万的房没了还要赔500万!买二手房签合同时注意这8个细节
- 棚户区改造|开盘预告|合肥又有6盘要加推,均价1.39-2.54万/㎡全都有
- 建房子|面宽11米, 进深16.5米的农村三层别墅, 前后有花院还带车库, 完美!
- 卫生间|什么才叫好户型?来看看这5个标准,你家房子符不符合?
- 修建|精选10套三层户型图纸,占地面积均不足百平,尤其适合新农村修建
- 住房公积金|什么才叫好户型?来看看这5个标准,你家房子符不符合?
- 地产|宜和宜美与金科服务强强联合,创造“定制精装房”新赛道!
- 洗衣房|这三款农村四合院设计图让不少城里人羡慕,父母看了也欢喜
- 宁波|珠海商业不足后遗症:商业综合体扎堆,243万人需要多少商业体?
