嵌入式|嵌入式冰箱与玄关柜的无界组合,开放式厨房实现空间的通透和敞亮
- 前言
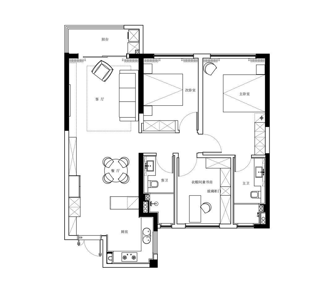
- 户型图

平面布置图
- 玄关

进门处的悬挑换鞋凳,定制抽屉可以收纳出入门时零碎的小物品,下方增设大理石地台,既增加了空间的层次感,又可以摆放常用的拖鞋等。
- 客厅

原精装房千篇一律的“回”字型吊顶拆除,增加无主灯设计,以及墙面的预埋线性灯和角落里艺术落地灯丰富了空间的灯光氛围。

来自北欧表情的刺绣款单人沙发,充满了法式贵族精致复古的情调。独处其中,为生活按下暂停键,开启一程思想的远航。

电视背景用纹理质感更加丰富的艺术涂料取代乳胶漆,底部大理石地台一直延伸至餐厅,强化了空间的整体感,材质元素和层次分布更加多元。

装饰元素的选择克制而挑剔,精致体面的意式轻奢沙发、个性艺术的脚架鼓灯、品味雅致的装饰挂画,没有过多元素的堆叠,通过简单的调和与对话,营造出空间静雅丰盈的质感。
【 嵌入式|嵌入式冰箱与玄关柜的无界组合,开放式厨房实现空间的通透和敞亮】

厨房和餐厅之间添设了一个简约餐吧台,它既是吧台用以提升生活情调,也是厨房操作台面的延伸。
- 卧室

主卧套间面积较大,素雅简洁又静谧有序。在这里享受平静自在的日常,舒适而安稳,仿佛身体的感知也变得沉稳柔软起来。

卧室简约无主灯的设计,灯带营造氛围感,床头不对称阅读灯既是对空间光源的补充,也起到非常好的装饰陈设作用。自然的光线透过纱幔落在物品上,由强到弱层层渐变,呈现出简约质朴的基调,没有多余的修饰和奢侈的点缀,一切都回归到一种自然轻松的状态。

从主卧看向主卫,原开发商的卫生间门正对主卧床,因为不考虑格局的大调整大改动,所以原开发商的主卫门拆除,更换新的卫生间门,与墙面一起进行艺术涂料的涂刷,将卫生间门进行了隐藏设计。
- 书房
推荐阅读
- 现代风|168㎡现代风,带着浓郁的归属感与愉悦感
- 施工者|不管家多大,装修时做好这12处细节,美观与舒适并存,幸福感提升
- 杜新枝|郭希宽与杜新枝名下6套房产,这是谣言还是有确凿的证据
- 薄荷蓝|走进她家,才知什么叫美观与实用并存,全屋温暖又清爽,太舒服了
- 房屋|房产过户”与“房产更名”你了解过吗早晚会用到
- 地产|宜和宜美与金科服务强强联合,创造“定制精装房”新赛道!
- 购房置业|户均资产达317.9万,房贷占了155万,央行出手户籍与房产脱钩
- 广州市|“2亿的房奴”与“2亿的租房人”,谁活得潇洒,内行人说出了实话
- 青岛市|父母与子女共同购买房屋,房屋所有权归谁?
- 购房置业|买房与不买房,未来5年的差距大吗?专家给出了最终答案
