卧室|110平高层住宅,莫兰迪色为空间注入灵魂,这才是婚房该有的样子
110平高层住宅,莫兰迪色调为空间注入灵魂,这才是婚房该有的样子
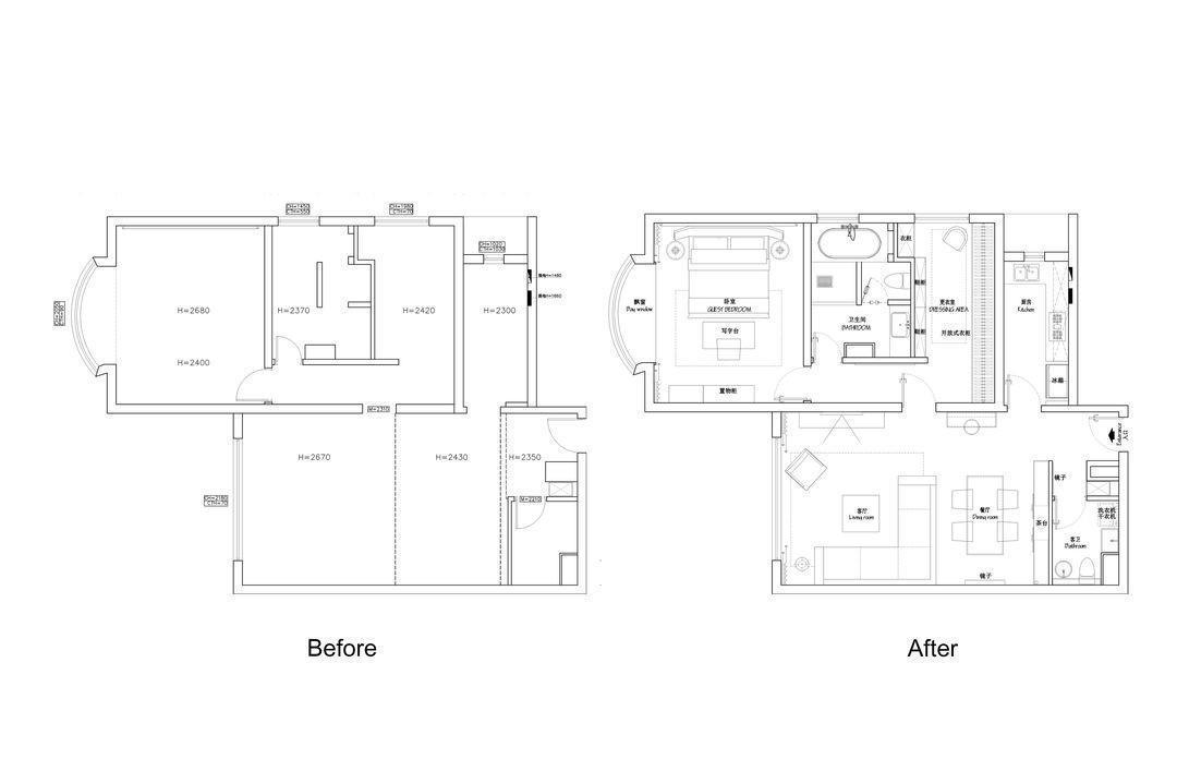
今天和大家分享的是一对年轻夫妻的婚房,两个人准备在年底的时候结婚,这个房子使用面积有110平方米,位于上海外滩附近,打开窗户就可以看到美丽的外滩江景。这个房子所处的位置和环境可以说是很多年轻人梦寐以求的地方,很多年轻人理想的中的住宅了。
房屋户型:
两室
房屋面积
:110平方米
装修预算:
50万
所在城市
:上海
设计师:
李文伟
主要建材:
铁件、石材、人造石、系统柜、木作、油漆、玻璃、仿清水模漆

这个房屋是两个人的婚房,在装修的时候选择了比较活泼靓丽的莫兰迪色调,为整个空间注入了灵魂,站在窗边就可以看到美丽的外滩江景,和喜欢的人一起生活在一起,这才是婚房该有的样子。
【餐厅】
设计亮点:开放式餐边柜
餐厅的侧面依靠墙壁设计了一个开放式的三面柜,用来摆放业主两个人的照片和一些小摆件,餐边柜的中间摆放了一个绿植,让整个餐厅都变得更有生机。
餐厅的另一面选择安装了一个落地镜,让本来不太宽敞的餐厅延伸出了双倍的效果,同时也提亮了餐厅的光线。

舒适的座椅搭配大理石的桌面,加上屋顶可爱的泡泡型吊灯,打造了一个浪漫又舒适的用餐空间。
【客厅】
设计亮点:莫兰迪色系
客厅主要以米白色为主,同时加入了一些活泼亮丽的莫兰迪色系,打造成了一个温馨又浪漫的婚房。

客厅和落地窗上室外的光线更好地照射进室内,整个房屋的采光和通风都很好,站在窗边就可以看到美丽的外滩江景,视野十分开阔。
清新的米白色搭配上温柔的淡粉色窗帘和活泼的草绿色抱枕,让整个空间都富有生机和活力。
客厅的屋顶选择了铁艺的扇形吊顶,丰富了屋顶的视觉空间,让整个客厅变得更加有设计感。
靠着沙发墙壁摆放着两个人的婚纱照,让整个卧室也多了一些浪漫的气息,相信两个人可以在这里拥有一个非常幸福的婚后生活。
【卧室】
设计亮点:床尾梳妆和工作区
进入卧室第一眼看到的就是舒适的飘窗,坐在窗边,享受着温暖的阳光,看着美丽的外滩江景,真是十分惬意。
推荐阅读
- 地板|160㎡四居室,玄关比我家卧室都大,这才是真正的低调奢华有内涵
- 床头柜|95后姑娘的“穷装”卧室火了,环保又精致,软装的力量真强大
- 卫生间|129平现代美式三居室,打造出一个舒适又温馨的美式家
- 三居室|118平现代风三居室,一个简单而纯粹还原生活色彩的家
- 郑州|买房月供曝光!郑州最新平均工资8694元,撑得起房贷么?
- 石家庄|144平的面积,无人值守棋牌室,这是如何做到的?
- 简单感|现实的平衡取舍,才是生活之道!143平现代风格设计欣赏!
- 她家148平米,进门就被玄关迷住,不做吊顶跟背景墙,阳台超漂亮
- 修建|精选10套三层户型图纸,占地面积均不足百平,尤其适合新农村修建
- 南通|拍卖成功!江苏南通一处197平住宅192万成交!
