四层别墅|两栋开间尺寸接近的四层别墅,第二栋造型真的很美!
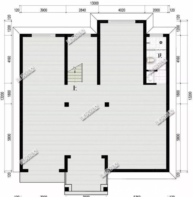
两栋开间尺寸接近的四层别墅,第二栋造型真的很美。我们每个人都将建房子和买房子当成是自己人生中的大事件,所以都是比较的谨慎,一点也不会马虎,尤其是现在农村建房子管的这么严,这次建房很有可能就是唯一的一次了,更需要好好的规划一下。第一栋四层别墅:建房尺寸是13×13.2米,带架空层的户型,墙面主要用面砖和真石漆装饰,屋面盖以红色的琉璃瓦。
室内布局说明:架空层主要是用来做车库和储物间;一层设计有一室两厅一厨三卫,主卧带独卫,另外休闲娱乐室还配有独卫,复式客厅;二层设计有三室一厅三卫,每间卧室里面都搭配了独卫,室外生活空间多;三层配有三间卧室,室外是观景露台。
【 四层别墅|两栋开间尺寸接近的四层别墅,第二栋造型真的很美!】


第二栋四层别墅:建房尺寸是13×11.6米,墙面主要用真石漆涂料装饰,屋面盖以红色的琉璃瓦,这款户型很大的一个特点就是室外阳台比较多,所以外观造型上看起来非常的美观。
室内布局说明:首层配有一室两厅一厨一卫,入户就有一个小堂屋,满足很多地方建房要有堂屋的风俗,客厅是挑空的;二层配有三室一厅三卫,室外设以生活阳台;三层配有四间卧室,其中主卧带独卫和活动厅;顶层设计有三间卧室备用,室外是休闲露台。



两栋别墅的外观都是非常靓丽的,不管是建在哪里的农村,肯定都是很难超越的存在,在老家建一栋这样的房子,未来的几十年,上百年都不用操心了。
推荐阅读
- 施工|面宽均为12米的两栋自建房,简单施工易,造价25万上下
- 建房子|面宽11米, 进深16.5米的农村三层别墅, 前后有花院还带车库, 完美!
- 别墅|参观亲戚上海的豪宅,别墅硬是住成农村房,真是糟蹋了好房子
- 购房置业|农村建新房就选这套四层别墅,占地100多平,8间卧室人人都有地睡
- 别墅|土豪农村盖大别墅,人人羡慕,如今却成为全村人眼中的大笑料
- 别墅|买不起别墅,买了一楼带30㎡院子的房子,入住两年多,后悔了吗?
- 贵州|利落挺括,12×11米现代二层别墅,4卧2厅好格局开启全新生活
- 北碚|重庆北碚高端别墅群,数量众多依山而建,满目疮痍好比世界末日
- x2|三层现代风格别墅 140平米,清新脱俗,是当下年轻人最喜欢的设计
- 搬家公司|乡住免费图纸土建造价参考88万面宽15.5m 进深14.4m 三层新中式别墅
