小户型|看到她家34㎡的小窝,我家130㎡瞬间就不香了,小户型住出了豪宅范
对于一个20多岁的女生来说什么才是最大安全感?有人说,才识,也有人说赚钱能力,或者拥有一个靠谱的家庭。当然,这都没有错,然而在一份统计调查中显示,多数人的共识是,拥有一套属于自己的房子,它可以不用大,但在关键时刻,能够为你遮风挡雨。
确实,靠山山会倒,靠人人会跑,很多时候自己只要才是最靠谱的。像今天要分享的案例就和这个有关。坐标陕西渭南,这是一套建面只有34㎡的小窝,屋主是一名年轻时尚的90后妹子。买下这套房,就是为了给自己一个家。
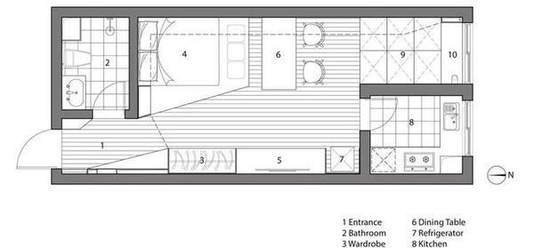
看到这,或许很多人想,这么小的面积,住起来一定老憋屈了,但是在合理的设计下,女主直接舍弃沙发和茶几,没想到却因此而意外走红,被超多人羡慕。无它,小户型居然住了豪宅范,看到这,我家130㎡的房子瞬间就不香了,不信我们一起来看看吧。平面图
原始结构图女主并没有提供,但能够想象的是,空间狭小昏暗,以及功能布局不合理等等。基于此,设计师力求温馨美观的前提下,要尽可能地保证强大的储物空间,所以为提高空间利用率,玄关走廊做了一个斜切的改动,然后就是功能上的取舍,具体我们来看实景吧。入户
推门而入是玄关,硬装整体上,用干净利索的生态板裹住,包括吊顶,以及右侧的背景墙等等,如此营造了一个温馨舒适的氛围。其它是左侧的半高鞋柜,尽可能做窄,好处在于,满足基本收纳的前提下,不影响通行。至于鞋柜台面,可以放些诸如钥匙类的临时小物件,而上半部分,用装饰画遮掩电表箱,效果会美观大方一些。再有就是通往卫生间的玻璃门,之所以选用这种透光不透形的款式,就在于它能够在保证隐私的前提下,不过度影响采光。
换一个角度,对面是进门右侧的挂钩区,回到家,衣帽包包都能随手一挂。同时还有方便进出门整理衣着形象,和仪容仪表的穿衣镜。加上底部一体化设计的,斜切换鞋凳,不仅功能强大,而且细节考虑特别周到。
入户玄关点缀的装饰画,还有插花瓶,营造了一个类似端景般的迷人效果。客餐厅&卧室
原有的户型,只有客餐厅这么一个18㎡大小的公共区,且没有独立卧室,如果按照常规设计,分割成3个独立的空间,那么势必会造成各个功能区,显得拥挤昏暗又压抑,所以这种一体化的设计,会显得敞亮通透不少。再说,女主一个人住,隐私什么的,真的不用太过纠结。

再说一下整体基调,配色上,这里以白色背景墙和木色柜体为主,好处在于,前者可以提亮空间的同时,放大视觉空间;后者的话,可以营造一个温馨舒适的氛围。两相结合,一进屋令人极度放松与解压。装修上,为提高空间利用率,女主不仅沿着右上角的墙角,定制了榻榻米地台床作为卧室,还在顶面设置了一组L型的转角吊柜来满足收纳需求。
推荐阅读
- 屋主|56㎡小户型老房改造,小而美的设计!
- 小钱|游点好笑!收手机的新方式,一抓一个准!这老师怕是柯南看多了?
- 公示|一处体育中心项目、一处小型口袋公园!市北两项目规划公示,配套升级
- 碧桂园|小城市的房住不炒,遇上返乡置业
- 小户型|发现丈夫赠人房产 妻子怒讨买房款
- 小房间|参观140㎡大婚房,朋友都夸餐边柜有档次,我却更喜欢主卧的飘窗
- 卫生间|什么才叫好户型?来看看这5个标准,你家房子符不符合?
- 修建|精选10套三层户型图纸,占地面积均不足百平,尤其适合新农村修建
- 楼层|对于买房选楼层,一旦你忽视这5件小事,就只能买到“垃圾楼层”
- |看到对门挂这个,赶紧让他拆了,不然财运就要走下坡路了
