别墅|自己动手装别墅 篇二:1万元打造家庭iMAX电影院
作者:零zXr0
之前讲过了如何搭建游泳池和自己动手1万元装厨房,这次则是家庭影音室的施工。
事先声明:我并不是硬核音频Hi-Fi发烧友,也不是电影狂热爱好者,更不是专业影音从业者,只是恰巧有场地,有兴趣,也有时间研究了一下,给自己搞了一套Hi-End IMAX影院。
就像大多数法拉利车主不一定喜欢驾驶很可能是车盲,哈里王子只是恰好出生在皇室其实完全不懂贵族礼仪一样,别对我的专业性要求太高,我只是和大家分享我在此过程中学习和实践得到的知识和见解。
零、影院的场地条件&设计设计费:0元,自己设计。
0.1 电影院该多大做家庭电影院,目的是在家体验电影院的感觉,不是在卧室安个投影就叫影院的,我们直接对标公共电影院。
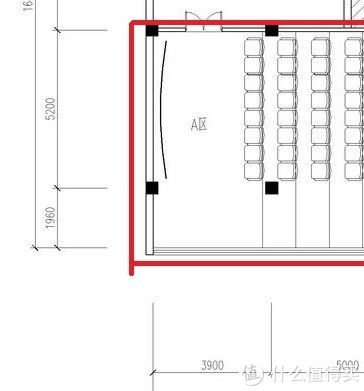
这是一个本地电影院小厅图纸。
一个7160*13900=99.5平米的电影放映厅,它放了8列10排座椅共80个座椅。
这是另一个电影院,它的影厅是7500*15000,有112.5平米,放了11列8排共88个座椅。
我们在家里当然不需要8排座,所以一个7500*7500左右的空间就可以了

0.2 我的场地条件:这是一个10.35米 x5.29米=55平方米的地下室厅
施工前的现场
0.3 设计图纸解释:
红线是音频线路,蓝线是投影光线,黄框是设备间,白框是墙体,前方白条是投影屏幕,后面白方块是座椅。
我自己画的设计图,凑合看吧,我自己能看明白就行。
一、家庭电影院前期施工花费:5700元,电路改造200元,购买瓷砖3000元,水泥沙子500元,铺贴工费2000元。
前期施工主要是水电改造、铺地砖。
1.1 电路改造 花费200元影音室不涉及水,电路改造是我自己开槽、埋管、清运垃圾的,人工费0,材料花费共计200元,购买的是津成电线、日丰穿线管、正泰底盒。
在上一篇文章中讲过一些水电改造,不另外讲了。
我的地下室总装机容量有10KW,够用,所以我只是增加几个点位,没有选择全改。
这是我回填后的线槽:
1.2 铺地砖 花费5500元关于瓷砖选购,我会专门写一期,本期不详细介绍。
基本上来说,瓷砖购买有三种场景:
1、商场或者装饰城:红星美凯龙/居然之家之类的一般价格较高,是装修公司带客户过来赚返点的地方,店铺会扛价,即便客户自己过来价格也很高。
2、陶瓷卫浴品牌店:大品牌会定一个比较高的价格,因为有品牌溢价。
3、陶瓷城:一般价格最便宜,大型经销商自己有库房。
我是选择第4种,直接来到瓷砖的生产工厂,这是一家与我家土建总包公司长期合作的瓷砖厂家,它家的出货价格是这样的:
800*800:12元/片1500*750:40元/片1800*900:75元/片
但需要自己派车去瓷砖工厂装车,自己卸车,自己搬运。
我选择的是1500*750的这款瓷砖:
效果图
推荐阅读
- 建房子|面宽11米, 进深16.5米的农村三层别墅, 前后有花院还带车库, 完美!
- 别墅|参观亲戚上海的豪宅,别墅硬是住成农村房,真是糟蹋了好房子
- |龙吟师傅教你在卧室找到自己的桃花位
- 爆炸事故|找熟人装修害死我了,20条教训只能自己扛着,后悔呀
- 验房|自然人代开核定个税0.5%,为什么自己去当地代开时却是税率40%?
- 购房置业|农村建新房就选这套四层别墅,占地100多平,8间卧室人人都有地睡
- 别墅|土豪农村盖大别墅,人人羡慕,如今却成为全村人眼中的大笑料
- 别墅|买不起别墅,买了一楼带30㎡院子的房子,入住两年多,后悔了吗?
- 智睿|老装修升级计划 篇九十五:魔都二手房全屋灯光改造,给自己一个明亮智能的家!
- 贵州|利落挺括,12×11米现代二层别墅,4卧2厅好格局开启全新生活
