别墅|艺工坊丨十分实用的别墅中式设计方案
别墅中式设计体现了浓郁的古典风情,因此很多别墅业主十分钟情于别墅中式设计,但很多业主因为找不到适合自身的别墅设计方案而苦恼,下面就给大家介绍一个两层中式别墅设计方案。
这栋建筑的最佳朝向是朝南,院门朝东。根据不同地形情况,可对建筑朝向和入口位置进行适度调整,但不建议面北而建。
设计特点



这是一个典型的围合式设计,主楼与副楼通过连廊相连,中间是个景观庭院。休闲、嬉戏均可在其内,是个极富情趣的活动空间。正符合现代人绿色、自然的生活理念,将院外的景色引入院内。
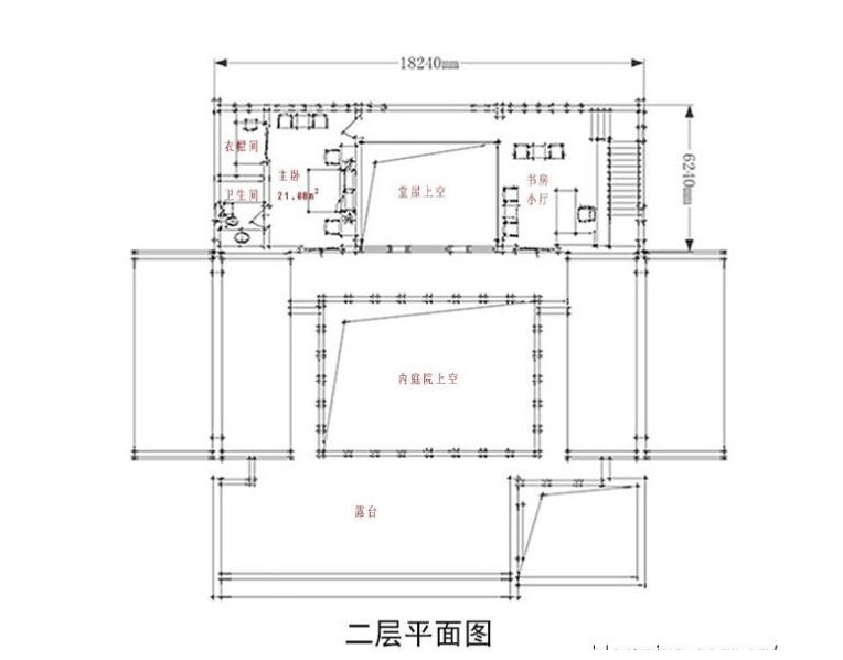
二楼同理设计,连廊环绕,景观设计与建筑设计一体。充分利用主楼与副楼之间的高差,在副楼顶部设计观景露台。不管在任何季节,都是休闲、嬉戏的好去处。并且本身就是一道风景,观景亦是景。





平面布置


完全按照现代人的居住方式进行内部布局设计,人性化的处理各个交通的关键节点。厨房与餐厅连接,靠近主入口布置,流线方便快捷。堂屋、视听室、大餐厅一体,空间宽敞大气,层内有公共卫生间,每个卧室有独立卫生间。
外观特点【 别墅|艺工坊丨十分实用的别墅中式设计方案】建筑外观以白墙青瓦为主色调,强调极简风格,但建筑体量变化、开窗方向、开窗大小、护杆的形式等细节设计上,却不厌其烦地讲究,我们想用对建筑功能本质的改变带来美感,而不仅仅是表皮的装饰。
推荐阅读
- 建房子|面宽11米, 进深16.5米的农村三层别墅, 前后有花院还带车库, 完美!
- 别墅|参观亲戚上海的豪宅,别墅硬是住成农村房,真是糟蹋了好房子
- 购房置业|农村建新房就选这套四层别墅,占地100多平,8间卧室人人都有地睡
- 别墅|土豪农村盖大别墅,人人羡慕,如今却成为全村人眼中的大笑料
- 别墅|买不起别墅,买了一楼带30㎡院子的房子,入住两年多,后悔了吗?
- 贵州|利落挺括,12×11米现代二层别墅,4卧2厅好格局开启全新生活
- 北碚|重庆北碚高端别墅群,数量众多依山而建,满目疮痍好比世界末日
- x2|三层现代风格别墅 140平米,清新脱俗,是当下年轻人最喜欢的设计
- 搬家公司|乡住免费图纸土建造价参考88万面宽15.5m 进深14.4m 三层新中式别墅
- 露台|推荐5款三层别墅设计图纸,最适合农村建的房子
