饰品|210㎡联排小别墅,现代大方的布置,配色令人舒适
这是一套210平米的现代风格联排别墅装修案例,整体空间以现代简约而舒适的风格搭配,在大方优雅的空间里加入令人舒适的布艺质感家具与摆饰,并在细节加入精致的软装摆饰品。而在空间的配色方面,也是以轻松自然的搭配为主,营造出令人放松自我的空间氛围气质。
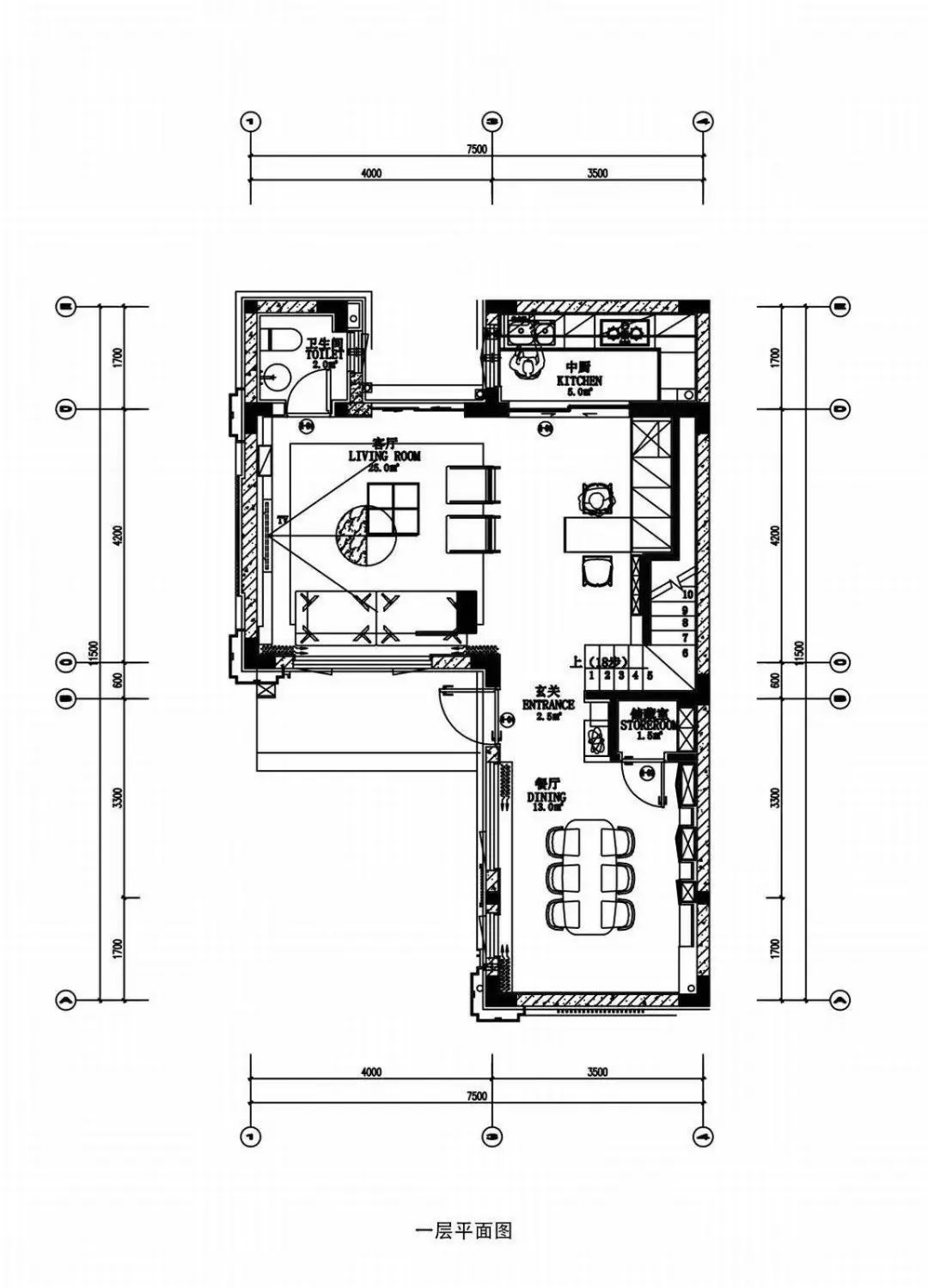
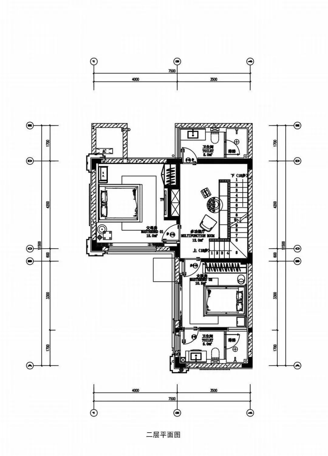
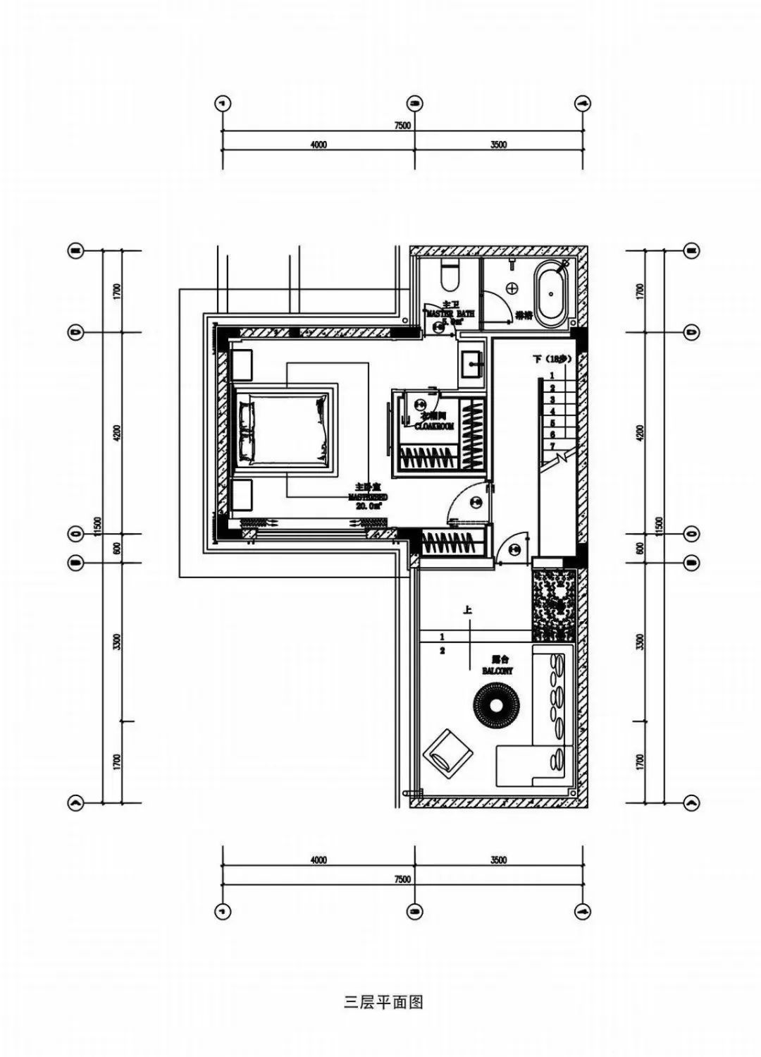
平面布置图


▲一、二、三楼的平面图,点击图片可以放大看。
客厅
▲客厅现代大方的空间,天花采取无主灯的设计,在天花吊顶上加入筒灯,给人以极简大方的空间感。电视墙以大理石质感的背景墙,加入开放的书架与地台,整个质感也舒适时尚。
▲灰色布艺沙发靠在床边,摆上黄色、灰色与黑白格纹的抱枕,也让空间显得简约舒适而大气。

▲实木方形+石材圆形的茶几组合,茶几台面上摆着优雅的艺术摆饰品,也让空间显得更加华丽端庄而档次。
餐厅
▲餐厅布置石材台面的餐桌,搭配上浅灰色的布艺餐椅,餐桌后方墙面做了一面封闭+开放结合的收纳与展示架,布置书籍与装饰品,也让用餐空间更加优雅端庄。
▲餐厅背景墙上挂着一幅黄色+黑白图案的装饰画,餐桌上布置优雅端庄的果盘、餐具与花瓶,在花瓶上的大插枝呼应下,显得更加清新而活力。

▲雅白的餐桌上布置灰色的桌旗,灰白配的餐具布置,在仪式感满满的餐厅氛围布置下,带来的是一种简约优雅的生活氛围。
厨房
▲厨房以西厨式的操作台设计,结合中岛台的设计,也让餐厨生活有着更丰富的体验。
▲中岛台布置铁艺架的黑色皮吧椅,墙面开放式的收纳架,布置各式各样的酒瓶酒杯,带来的是一个充满小资优雅格调的情趣空间,在这闲聚、品酒与聊天,生活悠然自在。
休闲区
▲二楼的过道布置以休闲功能为主,墙面以黑色长城板为装饰,定制上一排皮质坐垫的卡座,布置小茶几与沙发,让空间功能休闲而不失高级与优雅气质。
▲小书桌也可以充当梳妆台,布置精致的摆饰品,让休闲区的功能更加灵活有趣。
主卧
推荐阅读
- 屋主|56㎡小户型老房改造,小而美的设计!
- 现代风|168㎡现代风,带着浓郁的归属感与愉悦感
- 深色|155㎡简约风,承载着三代人的生活,不花哨让家务少一半
- 混淆感|146㎡北欧经典白色三居室,诠释令人心醉的优雅
- 饱和度|173㎡轻奢新中式,古典和现代的碰撞,唯美浪漫!
- 背景墙|97㎡现代风,以时尚打造空间,以新颖突出特点
- 疯狂|1月20日广州新房网签210套,增城以43套再次蝉联榜首!势头强劲!
- 地板|160㎡四居室,玄关比我家卧室都大,这才是真正的低调奢华有内涵
- 棚户区改造|开盘预告|合肥又有6盘要加推,均价1.39-2.54万/㎡全都有
- 小房间|参观140㎡大婚房,朋友都夸餐边柜有档次,我却更喜欢主卧的飘窗
