空间|原木+白色,营造出一个干净纯洁的空间,一个温馨的家!
原木+白色,营造出一个干净纯洁的空间,一个温馨的家关于北欧风,向来有很多色系的设计,有高冷的,也有清新的,而我最喜欢的是温润的原木与留白的搭配,干净纯洁,极简又温馨;

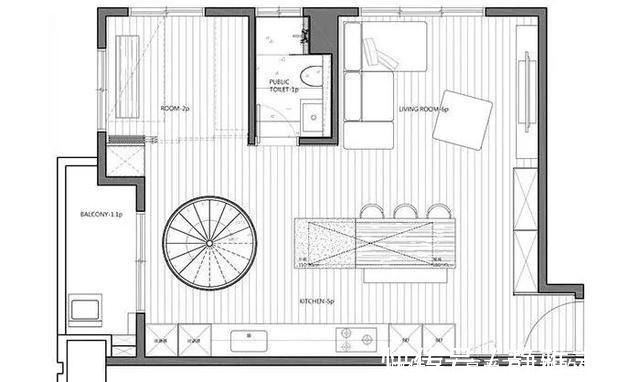
这套loft设计便是采用了原木与白色的特点,并且将他们运用到了极致;玄关处就能感受到干净的白色,一进门,纯净简洁的气息就扑面而来;没有做太多隔断,以厨房的橱柜做了一个稍微的视线遮挡比较自然;
延续一进门的感觉知道餐厅,一字型的橱柜将料理机等各种厨房小电器收纳在其中,很整洁干净,白色也给人一种温馨的感觉;
开放式的厨房,开放式的餐厅,餐桌与厨房的水吧台结合,这样既能增加了操作台面又能增加厨房和餐厅的沟通交流,有一个很好的流动性;
原木色的餐桌与白色橱柜搭配在一起,原木散发着它原木的自然和温润,白色表现着它自带的干净平和;
Loft的客厅和厨餐厅挨着是比较常见的一种设计,这样可以让整体的光线和通风都更佳;沙发在餐厅旁,与餐厅中间隔了一个小过道,米灰色的布艺沙发,看上去有点懒洋洋的,这也给家带来了温馨的氛围;
客厅主要以优雅舒适为主,电视背景的设计采用了灰色纹理的雕刻大理石,光滑的质感在光线下显得很大气;极简风格的木质搭配以及造型独特的音响,让这个客厅充满了趣味性;

Loft的楼梯设计很重要,如果设计不当不仅占用空间而且不美观;旋转楼梯给整个空间增加了柔美感,楼梯以白色和木色为基础,和明朗;





楼梯延伸到二楼,二楼以玻璃作为扶手,不遮挡视线不阻拦光线,整个家都在阳光下;
二楼的公共区域做了个简单的小客厅,也连带着收纳功能,平常就是家长和孩子的亲子娱乐空间;


推荐阅读
- 混淆感|146㎡北欧经典白色三居室,诠释令人心醉的优雅
- 造纸|生活用纸,黄卫生纸真的好于白色卫生纸吗?来听造纸员工怎么说!
- 美好生活|欧哲门窗副总经理周志军:「拓」不忘初心同心同德,成为美好生活空间首选品牌
- 银行|请注意!今日起各地房贷利率普遍下降5个基点 业内预期:部分地区房贷利率或仍有下调空间
- 背景墙|97㎡现代风,以时尚打造空间,以新颖突出特点
- 购房置业|上海女子拍下对楼住户家无敌露台,超大空间网友酸了:买房送操场
- 墙面|过道能''挤''出空间 5种方式帮你充分利用每一寸,档次蹭蹭上涨
- 全屋|次卧空间小,老婆灵机一动不装“床”,孩子一眼就喜欢上了晒晒
- 轻奢风|什么样的生活空间,才算得上是美好现代轻奢风,大道至简
- 购房置业|三四线城市的住房真的值得购买吗?不能一概而论,还是有升值空间
