颜值在线|她家74㎡三居,不仅颜值在线,还实现了九大功能区,令人佩服!
导语:同样是七十多平米的户型,她家居然可以做到大三居,而且「颜值超能打」,还有九大功能区,听着就心动。快来一起看看,她是如何做到的吧!本期,甜茶为大家分享的是一套老房改造案例,室内面积约74㎡,还带了一个20㎡的院子。屋主是一对90后夫妇,非常热爱生活,所以设计师进行在户型改造时,他们也将自己的一些好的想法融入到了「家」里。
▲装修实拍图//户型分析//缺点:①原始比例不佳,进深过长,开间过短,导致一些房间采光较差;②原卫生间的面积很小,不易做干湿分区。优点:①得房率高,室内空间比较宽敞;②两间卧室与院子相连,采光不错。
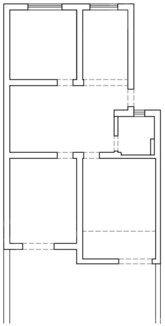
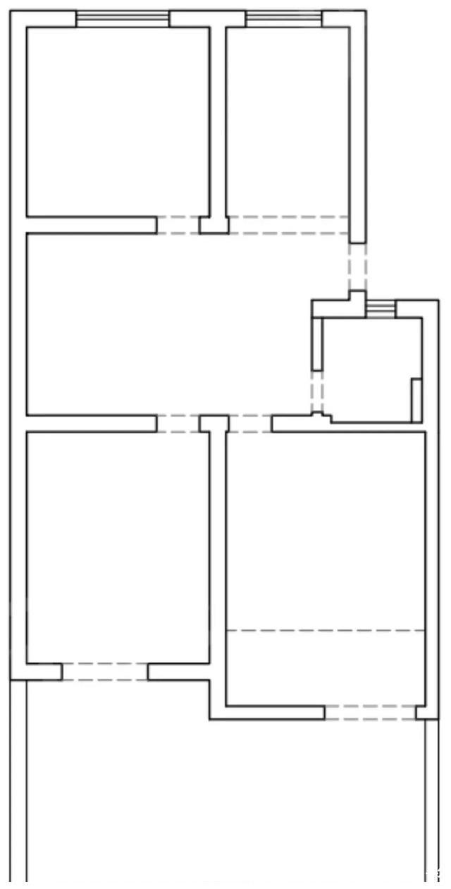
▲原始户型图//设计亮点//①移动卫生间隔墙,并做移门设计,提高其使用面积;②厨房做三联动玻璃门,将光线引入客厅,增加室内采光;③拆除主卧与院子之间的隔墙,将一部分院子面积纳入卧室做工作区,并设置玻璃推拉门,整体感更加通透。
||玄关设计简洁,功能丰富玄关作为整个房子的「第一印象」,在家装设计中起着至关重要的作用。在本案例中,玄关的设计既简洁又功能丰富,嵌入式鞋柜、换鞋凳、挂衣区和穿衣镜一应俱全。而且,每一项都不会占用太多空间,有效减少拥挤感。
▲玄关实拍图||一体式客餐厅,简单实用考虑到客厅和餐厅的面积都非常小,所以设计师将两个空间合二为一,可以节省使用空间。餐桌的两侧分别摆放了沙发和餐椅,正对面则是电视机,平时屋主可以在这里用餐、看电视,非常方便。
▲客餐厅实拍图客餐厅的沙发和桌椅都是靠墙摆放的,房间内留出了一半的留白空间,看起来非常宽敞。后期如果屋主有需求,也可以对这个区域进行重新规划。
▲客餐厅实拍图电视柜选择了“一字型”悬浮式设计,简洁大气。白色的柜体,与屋内主色调保持一致,整体感更强。
▲客餐厅实拍图||U型厨房设计,动线流畅合理厨房采用了U型的格局,使用空间非常宽敞,4个人同时下厨都不会感觉拥挤。为了提升收纳空间,设计师在U型橱柜的基础上,还加了一排白色的吊柜,可存储更多杂物。
▲厨房实拍图厨房和客餐厅之间,做了极窄框的三联动玻璃推拉门,能够最大程度地将自然光引入客餐厅。为了避免推拉门的滑轨落灰,屋主选择了吊轨的设计,可降低日常清洁的难度。
▲厨房实拍图||主卧增加工作区,方便居家办公考虑搭配屋主二人平时有居家办公的需求,于是设计师借用一部分院子的空间,在主卧内增加了一个办公区。纯白色长书桌的设计,可供二人同时使用。
▲主卧实拍图书桌是由嵌入式书柜延伸出来的,开放的柜体结构,可以减轻家具的体量感。卧室的窗帘做了两层的设计,屋主可以根据需求,将布帘与柔纱随意切换。
推荐阅读
- 花花草草|10款高颜值阳台,你该看看!
- 她家148平米,进门就被玄关迷住,不做吊顶跟背景墙,阳台超漂亮
- 薄荷蓝|走进她家,才知什么叫美观与实用并存,全屋温暖又清爽,太舒服了
- 乳胶漆|看她家装修,比样板房还漂亮,电视墙特别实用,值得做参考!晒晒!
- 罐罐|听我一句劝:厨房别再摆瓶瓶罐罐,学她家这样做,美观方便还不贵
- 纸袋|她家房子不大,但全屋“隐形”收纳确实惊艳,真是美观与实用兼具
- 户型|通过后期户型改造可以大大地提高生活品质,看了她家方案,学习了
- 功能区|装修完发现,有些网红设计,并不是虚有其表,实用性和颜值都在线
- 飘窗|学她家装修,电视墙很大气,过道打柜子太实用了,全屋都很喜欢
- 白色系|她家玄关太好看了,一进门就被美到,喜欢这样务实不花哨的装修!
