烤秋刀鱼|100平北欧风二居室,简洁大方且空间更为整体,美观性也不逊色
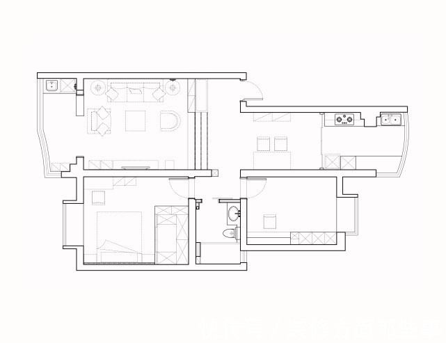
整个户型是二室二厅一厨一卫一阳台的设计。??1.建筑设计上是落地窗户,但是窗户并不宽,整体采光北侧会比较差一些。在设计上我们需要多考虑光线的因素。??2.封闭式的厨房采光差,收纳空间少。??3.玄关比较窄,如果鞋柜做整面墙会显得更加局促。??4.卫生间干湿不分离相对一卫的户型来说高峰时期有些不方便。??5.整个家缺少收纳大件杂物的空间。??6.次卧作为儿童房是带阳台的,孩子睡得一般会比较早,要穿过儿童房去阳台整理衣物等会打扰孩子休息,使用不方便。??7.次卧空间布局非常有限制。希望同时放下学习桌、衣柜、儿童床总是得不到功能方面的满足与平衡。??1.客餐厅和主卧方正。??2.卫生间面积比较大,有可改造空间。??3.整屋屋内承重柱仅一根,结构柱与承重墙主要分布于外墙区域,户型的可塑性还是比较高。
客厅是全家活动、娱乐、休闲、团聚、就餐等活动场所,又是接待客人、对外联系交往的社交活动空间。在满足起居室多功能需要的同时,应注意整个起居室的协调统一;各个功能区域的局部美化装饰,应注意服从整体的视觉美感。
??
??
简洁大方且空间更为整体,美观性也不逊色,还扩大客厅空间的整体视觉感,比原本的空间视觉上大了一倍;墙面的利用,节省空间的同时还可以让收纳空间大几倍,采用按弹门的设计,显得更为简洁干净,不会压抑复杂。
卧室是人们最好的休息空间,应该具有安静、温馨的特征,所以卧室装修从选材、色彩、室内灯光布局到室内物件的摆设都要精心设计。
??
【 烤秋刀鱼|100平北欧风二居室,简洁大方且空间更为整体,美观性也不逊色】??
空间文字描述:卧室的私人空间成为屋主两人审美的安放之处。背景墙选用了清新的浅灰色,搭配原木材质的床头以及穿衣镜,颜色跳跃又不会觉得突兀。
餐厅的设计要注重其实用功能和美化功能,整个空间的主色调应以明朗轻快的颜色为主,特别是代表食品的橙色或黄色,这些色调有刺激人的食欲之功效。同时可以利用灯光和一些小饰物进行调节,以产生不同的情调。
??
??
餐厅考虑到无烟煮食,利用靠近卫生间排水便捷,特意在餐厅后方设置西厨区,这部分可以增加小水槽/烤箱,方便料理与饮品的制作,增加生活趣味,也同时满足女主人的要求
厨房设计很重要,想要做饭不累就要厨房的设计合理,其实小编是不建议大家买整体厨房的橱柜。因为每个人的身高不一样,我们工作的台面高度也不一样,所以动线很重要!
??
??
空间文字描:日本林内燃气灶,日式燃气灶设计三眼灶带一个迷你小烤箱,烤秋刀鱼、鸡翅、吐司应该都可以解决,蹲下来会看到有一块散热的区域。??划重点:日式燃气灶尺寸一般是60宽,使用的锅具不能买太大,会影响操作感受。。
??
??
符合屋主的述求,在本身不大的空间内拥有极其通透的视觉感官,空间内的互动性更为强烈。也方便照看小孩,避免小孩跑到大人的视线死角产生危险。整体风格选择了最为柔和的原木色为基调,使得整体空间都给人一种暖洋洋的感受,让人忘却许多的烦恼。
推荐阅读
- 房价|100万存款无房产和100万房子无存款相比,谁更幸福?
- 插头|老公花了100块钱把家里插座装成这样的,再也不用拔插头了,真是太机智了
- 购房置业|农村建新房就选这套四层别墅,占地100多平,8间卧室人人都有地睡
- 二哥|二哥价值600万的房子在母亲名下,老三:给我100万,不然别想过户
- 现代|100平现代简约风三居室,软硬装的设计都很漂亮!
- 小知识|农村建新房就选这套四层别墅,占地100多平,8间卧室人人都有地睡
- 实木|100㎡小户型, 美式风装的很美腻
- 购房者|五年后,100万的房子还能值多少钱?房产行家分析结果让人清醒
- 月供|月供降了!贷100万每月少还30块
- 租赁|从20000+到10000+ 长白二手房价格跳水 导致销量大涨?
