双入户门|一层新中式别墅,双入户门,房间均能采光,屋檐外挑,简单大气
这块基地面积将近500平米。卢先生跟我们强调的是想要一个一层住宅,他不喜欢爬上爬下的感觉。这么大的基地面积,也让设计师有足够的设计空间,来满足业主内心的那匹野马--醉心驰骋,何需登高。
尺寸面宽22.5米进深21.2米
建筑面积252.0㎡
项目概况
【 双入户门|一层新中式别墅,双入户门,房间均能采光,屋檐外挑,简单大气】
△总平面示意图
基地情况:
东:邻家住宅
西:邻家住宅
南:村内道路
北:村内道路
项目简介:
这块基地面积将近500平米。卢先生跟我们强调的是想要一个一层住宅,他不喜欢爬上爬下的感觉。这么大的基地面积,也让设计师有足够的设计空间,来满足业主内心的那匹野马--醉心驰骋,何需登高。
平面布局
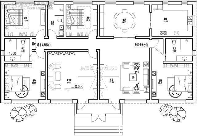
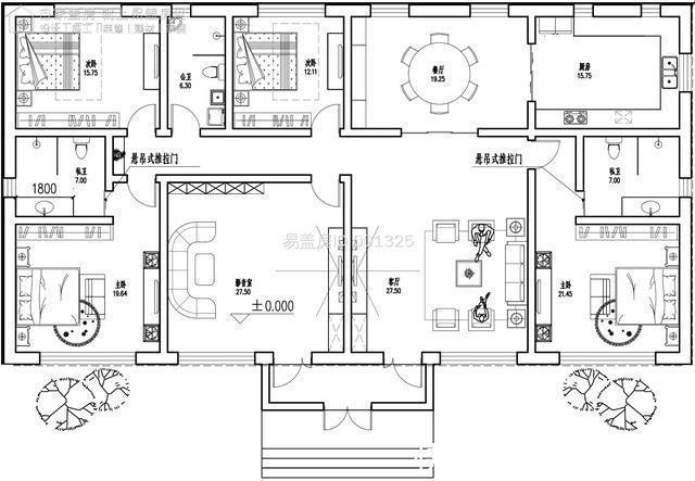
户型概况:
1层/4室2厅3卫1厨1影音室1门廊
△一层平面图
双入户门,能独立入户且相互贯通,打开不同的户门便是代表了不同的心情,与家相处的体验也变得细腻丰富起来。一条走廊解决所有交通问题,精简通达。所有房间均能采光,南北门窗洞口贯通,气流顺畅。
造型设计
△南侧效果图
△西南侧效果图
为了凸显新中式的简单大气,屋檐采用富有层次感的外挑。配色采用黄色真石漆与红棕色线条的搭配,加以文化石勒脚点缀。屋顶采用四坡五脊的形式,与宝蓝色瓦当结合,一气呵成。
△东南侧效果图
△西北侧效果图
没有挺拔外露的形象,功能的丰富,院落的惬意,都融入在日常的使用体验里。轻松愉悦的田园式回家体验,雅奢内敛的立面处理,将注意力集中在使用者的生活情调表达上。
△庭院效果图一
△庭院侧效果图二
日光洒射,影壁相对,营造出一处静谧的身心归处,酌一杯暖茶,感受阳光,茶香,听风,闻雨,以雅客的姿态,观园林之意境,寻文人之精神,体会诗意生活之美好。
推荐阅读
- 中间商|出租房屋可以不用中介,打造自助门店,同样收租金
- 灰尘|家中阳台不要装推拉门了,装这种更实用个性,不得不感叹太聪明了
- 美好生活|欧哲门窗副总经理周志军:「拓」不忘初心同心同德,成为美好生活空间首选品牌
- 大门|房子大门万万不能朝这地方开,师傅看了摇头,怪不得我家越住越穷
- 成都|双限当道的2022年,成都还有这些豪宅新面孔
- 她家148平米,进门就被玄关迷住,不做吊顶跟背景墙,阳台超漂亮
- |看到对门挂这个,赶紧让他拆了,不然财运就要走下坡路了
- 厦门|2021年中国新增6座超300米摩天大楼,数量领跑全球
- 瓷砖|远嫁十年回娘家,走到家门口房子已经旧貌换新颜了,都快不认识了
- 家庭成员|卫生间进门洗漱台,中间马桶,里面淋浴,怎么装?有哪些设计方案?
