回农村给父母盖养老房,三兄弟各选了一套图纸,大家看看哪套好?
回家给父母盖养老房,本来是好事,但却因为图纸的事吵得不可开交。来自四川的李先生,兄弟三人都在城里站稳了跟脚,本来想把父母也接到城里来享福,但父母明显对城里的生活并不适应,虽然嘴上不说,但这种明显的不自在兄弟几个都看在眼里。于是三兄弟便决定齐心协力,回老家给父母盖一栋养老房。本来一切都商量得很好,最后却因为图纸的事情吵了起来,三兄弟各选了一套图纸,大家帮忙看看,哪套图纸更好呢?
第1套:半开放式车库+大露台+舒适庭院,10×14米中式小院,主体预算50万
占地尺寸(不含庭院):14.3m*10.1m
占地面积(不含庭院):121㎡
建筑面积(不含庭院):285㎡
总 高 度:11.2m
建筑情况:共设5室 2厅 5卫 1厨 1茶室 2前室 1书房 1储物间 2露台 2连廊 1车库 1庭院
老大选择的是这一套中式户型图纸,外观采用经典的黛瓦白墙设计,搭配上一个舒适小院,是很多人心目中最理想的家的模样。宅院整体呈递进式,庭院三面围合,三层飞檐而出的翘脚,仿佛是展翅的大雁,给人一种俊秀的洒脱感。
入户处布置一个精美的影壁,颇具中国传统建筑之美。利用连廊连接庭院与室内,显得相当有情调。双露台的设计,层层递进,不但造型感十足,而且方便了晾晒衣物和乘凉观景,非常实用。


第2套:旋转楼梯+挑空客厅+多套间,12×13米三层欧式别墅,主体预算50万
占地尺寸:12m×13.2m
占地面积:147㎡
建筑面积:407㎡
建筑高度:13.4m
建筑情况:8卧 9卫 1客厅 1棋牌室 1茶室 1起居室
老二选择的是一套精致优雅的欧式户型,外观没有过多繁杂的设计,素雅的真石漆,搭配上通透的落地窗,显得大气美观。
室内布局也非常好,挑空客厅搭配旋转楼梯,妥妥的豪宅既视感。共设立8个卧室,且都是套间设计,逢年过节时兄弟几个一起回家也方便,不用担心居住问题。至于厨房,则是选择了外置独立餐厨设计,这样最大程度地避免了油烟对室内的影响。


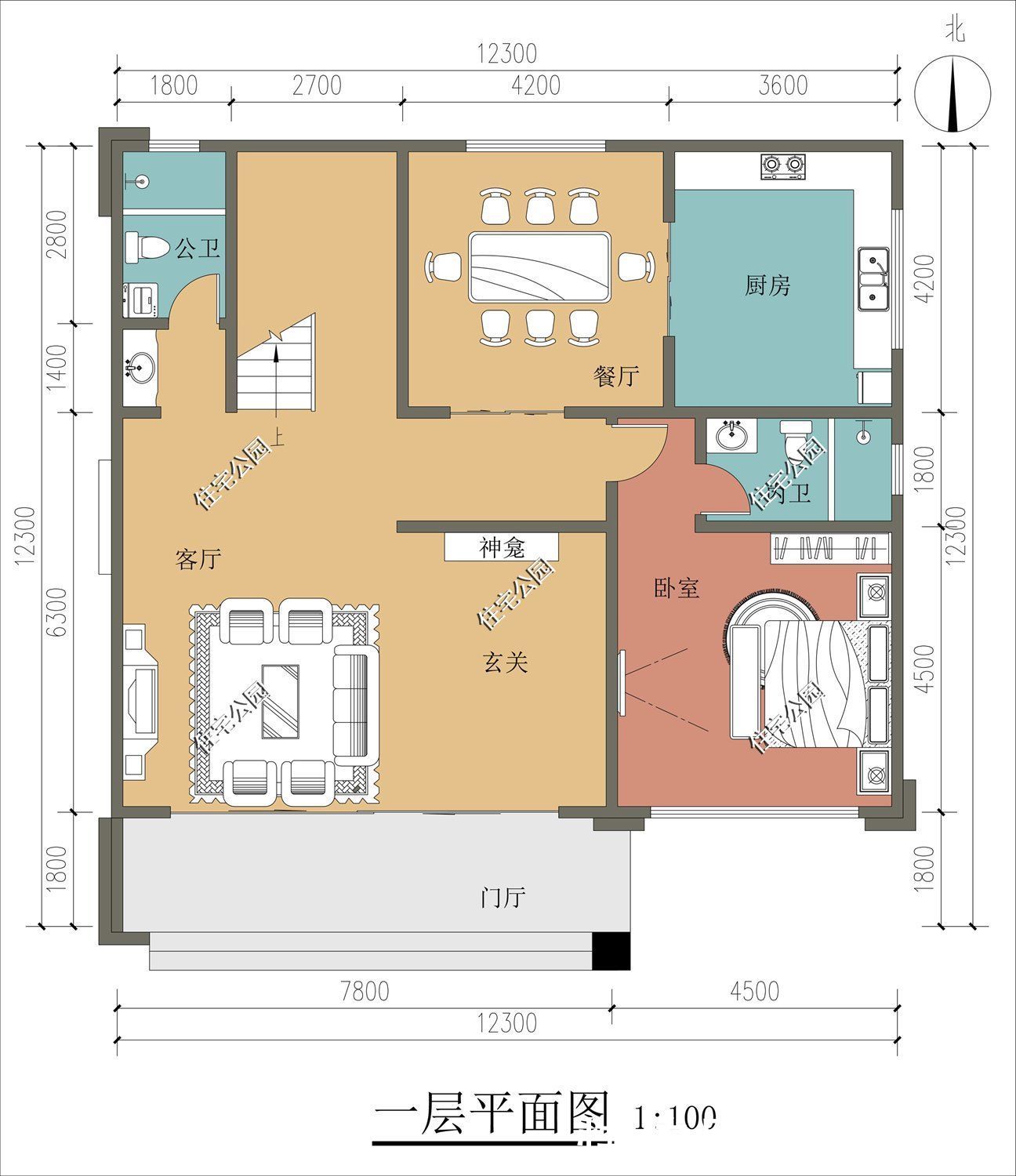
第3套:通透落地窗+舒适大阳台+神龛位,12×12米潮流现代别墅,主体预算50万
这套图纸便是老三选择的,他认为现在农村建房,也要紧跟时尚潮流。棱角分明的建筑线条配上通透质感的玻璃元素,恰到好处的个性展示,不但显得时尚大气,而且在农村辨识度很高。
室内布局也非常好,一个宽敞的大客厅,招待客人非常方便。设立一个神龛位,这是房子的灵魂。南侧设立一个卧室,方便父母起居。卫生间设立成干湿分离设计,使用体验更好。二层三层都设立了L型阳台,乘凉观景更加方便。


【回农村给父母盖养老房,三兄弟各选了一套图纸,大家看看哪套好?】
推荐阅读
- 房价|房地产要变回支柱产业,你知道吗?
- |最高暴涨70万!宁波二手房市场即将回暖?
- 安置|上城区紫阳街道加速回迁安置 焕新美好家园
- |“最惨购房者”相关话题登热搜榜首,到底是怎么一回事?
- 中海珑悦府|中海珑悦府好不好?置业顾问从项目现场发回新组图
- 融创中国|融创手握1600亿现金,回笼资金超300亿元,孙宏斌有牌可打了?
- 建房子|面宽11米, 进深16.5米的农村三层别墅, 前后有花院还带车库, 完美!
- 别墅|参观亲戚上海的豪宅,别墅硬是住成农村房,真是糟蹋了好房子
- 购房置业|今年起,农村老家的老房子,统统按照“新规”处理,子女提前知晓
- 修建|精选10套三层户型图纸,占地面积均不足百平,尤其适合新农村修建
