布置|122㎡现代时尚,心灵手巧的女主,在家布置工作台,做起针线活( 二 )
▲衣帽间以开放的挂衣架设计,衣物挂上去、下方也是可以直接放鞋子,整体设计时尚优雅而方便。

▲从衣物、衣帽架到假人与针线,无不体现出女主人对时尚的生活态度与执着敬业。
卧室
▲卧室床头墙是香槟色的硬包背景墙,布置米白色的皮艺床,与摆设床单,地上铺设暖灰色六边形几何图案的地毯,床上也加入一席橙色床单,灰色+橙色拼色的窗帘,整体空间也是显得更加活力高级而时尚大气。
▲圆柱形的床头柜,布置精致的台灯、相框,在灰色硬包背景墙基础下,搭配白色皮艺床,整个空间也显得更加现代精致而高档。
▲精致的细节布置,也让生活细节更加高级有仪式感。
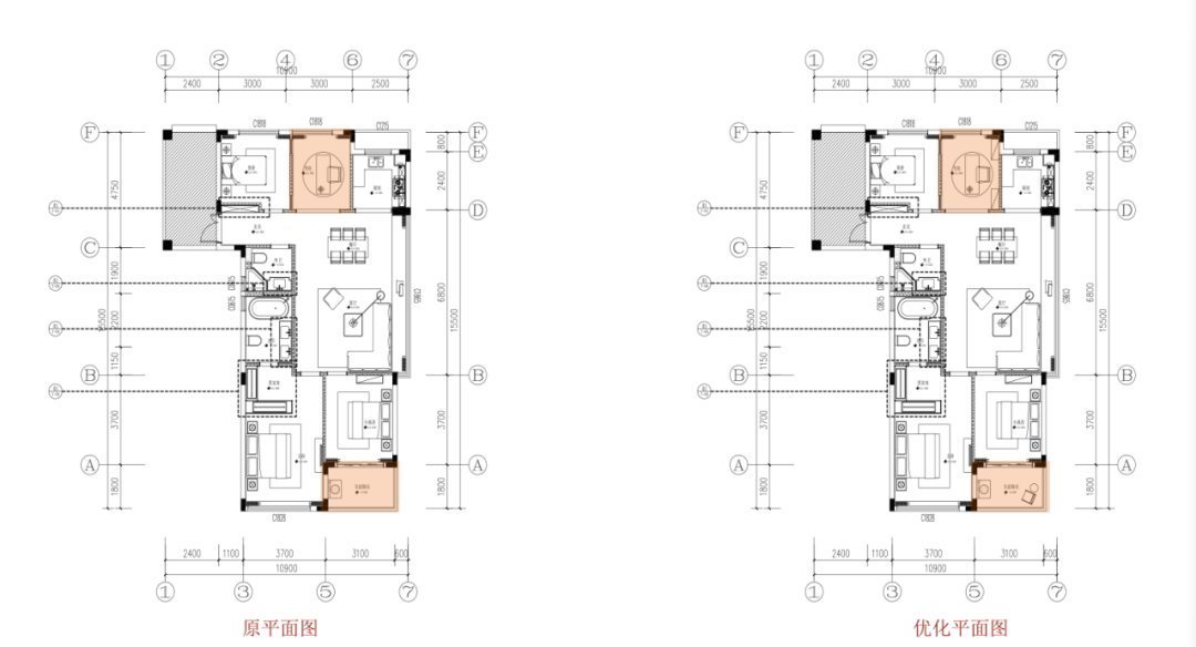
平面布置图
设计:鲲誉设计 ,点评:设计馆
推荐阅读
- 屋主|56㎡小户型老房改造,小而美的设计!
- 现代风|168㎡现代风,带着浓郁的归属感与愉悦感
- 深色|155㎡简约风,承载着三代人的生活,不花哨让家务少一半
- 混淆感|146㎡北欧经典白色三居室,诠释令人心醉的优雅
- 饱和度|173㎡轻奢新中式,古典和现代的碰撞,唯美浪漫!
- 背景墙|97㎡现代风,以时尚打造空间,以新颖突出特点
- 地板|160㎡四居室,玄关比我家卧室都大,这才是真正的低调奢华有内涵
- 棚户区改造|开盘预告|合肥又有6盘要加推,均价1.39-2.54万/㎡全都有
- 小房间|参观140㎡大婚房,朋友都夸餐边柜有档次,我却更喜欢主卧的飘窗
- |73㎡复古风两居室,年轻夫妻的高品质生活
