墨绿色|七旬老夫妻的老房改造,观念前卫让人称赞,和儿子的想法不谋而合
七旬老夫妻的老房改造,观念前卫让人称赞,和儿子的想法不谋而合今天房屋的业主是一对已经年过七旬的老夫妻,两个人已经一起走过了很多年的风风雨雨,几十年的相处让两个人有着极大的默契,一个对视就能够看出对方想要表达的意思,从相识微笑当中就可以看出他们之间的故事和回忆。本来业主的儿子是打算给父母买一套新房子,不过父母已经习惯了这里的生活方式,所以决定重新改造老房子,装修的过程中我们也看出了这对老夫妻前卫的观念,竟然和儿子的想法不谋而合,整个装修过程也十分的顺利。房屋户型:两室房屋面积:60平方米装修预算:20到30万元所在城市:成都设计师:何雨晴主要材料:实木皮、灰玻、明镜、黑板漆、超耐磨木地板、人造石、仿清水模砂浆、磁铁板、茶玻、输出壁贴等
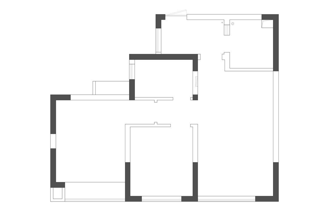
【原始户型图】这个房屋是一个老房子已经居住了很长时间,房屋的使用面积也不是很大,房屋也存在着一些小问题,比如进门的生活阳台面积比较狭小,客厅和餐厅的面积也不是很合理,房间整体的采光也受到了一些影响。
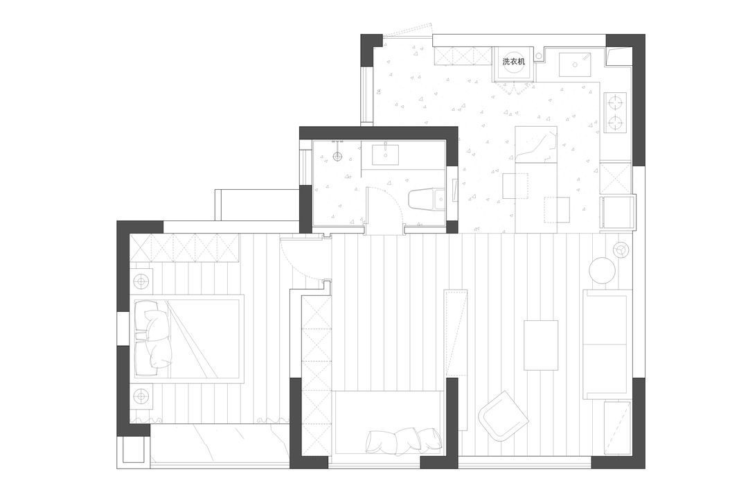
【改造户型图】针对房屋存在的问题和老夫妻的生活习惯,对房屋进行了一些调整和改动,将厨房设计成开放式的区域,去除不必要的空间隔断,让整个空间变得更加开阔,让室内采光变得更好。

【客厅】设计亮点:墨绿色沙发客厅选择了女主人喜欢的墨绿色沙发,平时就可以坐在窗边晒着太阳读书和休息,家里的小猫已经陪着两个人很多年了,家里自然也是为小猫准备了宽敞的活动空间。


设计亮点:怀旧老物件房屋的装饰和家具选择了很多怀旧有着纪念意义的老物件,比如客厅的茶几就是用之前的老箱子翻新之后做成的小柜子,这个柜子也是之前老房子里面使用过的柜子,有着很大的纪念意义。

设计亮点:矮柜设计客厅的电视柜选择了矮柜的设计,既满足了日常的使用需求,也不会阻挡光线,让整个房屋的视线变得更好。

【餐厅】设计亮点:实木餐桌餐厅和客厅之间也没有明显的隔断,实木的桌椅看着就很有品味,因为拍照的原因室内的光线看着似乎有一点昏暗,平时拉开窗帘室内的光线就会变得很好。
【卧室】设计亮点:隐形房门卧室的房门是和客厅墙壁同一个颜色的设计,从外部看上去就是一个隐形的设计。
卧室选择了顶天立地的大衣柜,可以满足业主平时的储物需求。
推荐阅读
- 屋主|56㎡小户型老房改造,小而美的设计!
- 有限公司|青客租房申请破产清算:连续巨额亏损,元老级管理层出走
- 小钱|游点好笑!收手机的新方式,一抓一个准!这老师怕是柯南看多了?
- 购房置业|经济学家:老百姓60%的钱花在房子上很危险!网友:说得很对
- 旧城改造|5万亿旧改来了,20年以上的老房子再度吃香?这两类人有福了!
- 购房置业|今年起,农村老家的老房子,统统按照“新规”处理,子女提前知晓
- 榻榻米|当初装修太愚蠢接连惨中12个装修坑,老婆天天给我甩脸子气人
- 烤漆面|老公坚持餐厅不做柜子,原来用吊兰做隔断可以这么漂亮,学到了
- 全屋|次卧空间小,老婆灵机一动不装“床”,孩子一眼就喜欢上了晒晒
- 插头|老公花了100块钱把家里插座装成这样的,再也不用拔插头了,真是太机智了
