学校|滨海新区规划频繁,住宅、学校和道路一个都不少!
滨海新区最近出现在人们的视野中,是越来越频繁。虽然,天津第一次土地集中出让中,滨海新区出让的地不是最多,但也算是佼佼者。而后,频繁的规划和政策的发出,让人们更相信滨城即将与我们“见面”。这不,百房资讯小编发现,近两天滨海新区有住宅项目发出规划,不仅如此,学校和道路规划也在持续更新之中,看看滨海新区又有哪些变化吧!源和湾项目建筑设计方案该项目位于滨海新区核心区海河南路南侧、海波路东侧。据了解,该项目之前就已经规划过,但由于一些原因,本次属于调整规划。
变更说明:1、高层住宅楼座入口处增加绿化2、完善出地库风井图例3、楼座高度调整4、完善楼座镂空表示方法这个项目共有6期规划,但本次规划属于第四期。总用地面积本次申报指标为12007.56㎡,容积率≤1.8,建筑密度≤22%,绿地率≥35%,绿地面积37981㎡,预计入住276户,达到773人。
从规划上看,第四期预计有8栋楼的建设,主要以11层和18层小高层的产品为主。而第四期紧邻的一期和二期项目,楼层也都是小高层,甚至比本次规划的楼层都要低,从而应该不会影响阳光的照射情况。
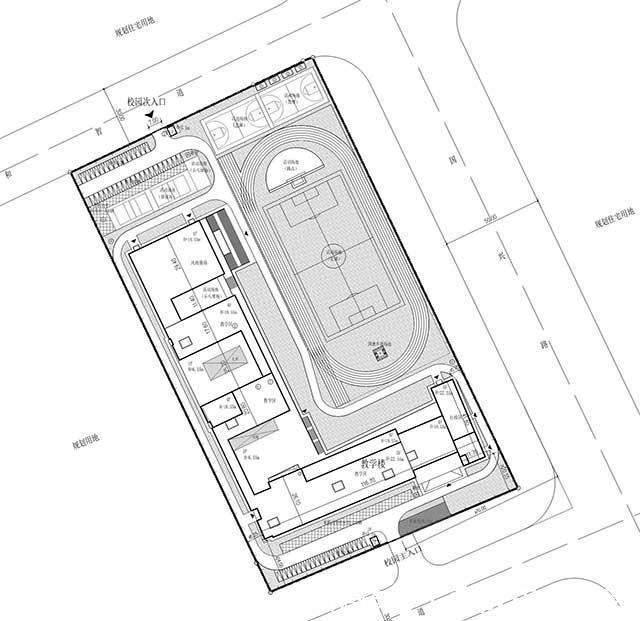
项目的配建上有便利店、早点铺和菜市场等规划,相信小区的基本生活需求可以满足,而且还有托老所的建设,该建设设置在一期中的30号楼的旁。除了住宅规划外,学校的规划也成为很多区域的重点。滨海新区新塘组团起步区04-43(小学)地块就开启了规划,该项目位于滨海新区国兴路以西,和羽道以北。
新塘组团起步区04-43(小学)地块该项目占地面积为31077平方米,地上建面24861.6平方米,总建筑面积24861.6平方米。其中包含教学楼、门卫1、门卫2。
而从规划上看,教学楼又分为三个区域,其中两个教学区4楼到顶,有一个教学区高至5楼,预设48个班级,2160名学生会在此上学。除此之外,还有一个5楼的行政区规划。不仅如此,该小学的户外活动地方也很丰富,有篮球场、排球场和乒乓球场地,并且有一个风雨操场、跳高场地和足球场地,相信学者们的娱乐生活也会很快乐。当然,什么都有规划,道路规划必须先行,毕竟道路好了,才有“人气”。
最近,津石高速公路(海滨大道—荣乌高速)也发出了规划公告。该道路规划是《国家公路网规划》(2013年—2030年)津石高速公路(G0211)的重要组成部分,线路全长36.5公里,项目投资约76.12亿元,是天津市重大基础设施投资项目,更是深入推进京津冀协同发展和天津港建设世界一流港口重点基础设施项目,建成后对加强天津滨海新区与雄安新区交通联系,实现京津冀交通一体化,促进京津冀协同发展,落实天津市“双城双港”总体发展战略等均具有重要意义。而津石高速公路(海滨大道—荣乌高速段)工程(滨海二段)起于滨海新区独流减河南堤,跨越独流减河后沿独流减河北堤向西接至滨海新区—西青区区界处。路线全长17.487404公里。道路采用双向四车道高速公路标准,设计行车速度100公里/小时,桥梁设计荷载标准为公路—Ⅰ级,其他技术指标按照《公路工程技术标准》(JTGB01-2014)执行。道路一旦修好通车,未来的规划会更好,还是很期待的!
推荐阅读
- 学校|既想有地铁,也想有学校!这样的楼盘,绍兴还有多少?
- 商地|上海浦东新区、嘉定区13.3亿成交2宗商地
- 南部新区|居住1581亩+商业350亩!宜宾这一片,会是城市开发、卖地新方向?
- 天府新区|暖气片里面的脏东西怎么清理?不妨试试这几种办法
- 学校|共27个班 城阳夏庄街道源头九年一贯制学校主体封顶
- 天府新区|继承的房子必须五年后再卖吗
- 商贷|兰州新区逾543亩地挂牌出让 起始价约8.3亿元
- 董事长|壹石通最新公告:子公司拟参与竞拍合肥市高新区部分土地使用权
- 天府新区|100w存银行和100w买房五年后谁更有价值?
- |陕西宝鸡市高新区,未来房价趋势会怎样?
