衣帽间|愈归|轻奢淡雅的家,让设计回归生活

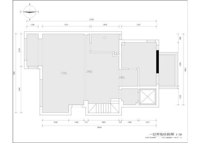
一层原始结构图。房屋整体格局较好,南北通透,私家电梯入户,承重结构也少,方便改造。
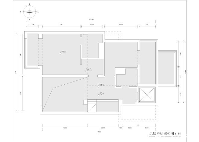
二层原始结构图。有大挑空空间,需要隔层或做其他设计处理。
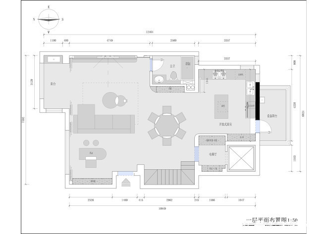
一层空间改动 1、入户玄关处进行了扩大化处理,电梯厅空间安排了两排玄关柜,设计出换鞋凳的区域; 2、开放式厨房设计,近14平的超大面积,岛台、阳台、多种厨房电器,都能完美融下; 3、隐藏式卫生间设计,以隐形门的方式藏于客厅中; 4、多处圆角转弯设计,更添设计魅力; 5、超大客餐厅空间,兼容茶室空间,会客区域更大,品味更高;
二层空间改动 1、主卧大套间设计,放入U型衣帽间,和大梳妆台; 2、新增卫生间空间,吸收了赠送的空间,采用了双洗手台设计; 3、书房空间和露台打通,超大书房区域; 4、独立储物间,兼衣帽间功能,收纳能力大增;
跃层的客厅空间往往很大,在大的空间里,我们将其整体融入进轻奢简雅的气质中。不同层次的灰色、白色和谐相融,构建空间高雅大气的当代调性。
大理石、格栅、金属线条、皮料、轨道等元素在空间中碰撞,共同营造出一副精致的画面。设计上,我们抛却掉华丽的装饰技巧,用简单的直线线条,不断在墙体、屋顶、地面处重复出现,用朴实无华的线条,去装饰丰满温暖的烟火气息。
错落有序的艺术品,错落有序的摆放在客厅中。Kaws,Ponychair,容纳在平静的美学中,丰富空间的精神人文内涵。
沙发后面摆放的是一组极具个性的茶桌。与友同饮,品茶论文。低饱和度的色彩搭配,让这一传统的中国茶文化元素,和谐地融入进了现代轻奢的氛围中。
电视背景墙的设计,低调又透露着华丽。大面积的岩板造型,配合着错落有致的格栅,光影丛中,若影若现。这种以咖啡色调打底,细节处再缀以光影,营造出现代轻奢简雅的氛围。
细节上,定制的组合式茶几,将装饰与功能,表现的恰到好处。
Kaws安静地坐落在楼梯边,让角落处也增添了一抹风景。
精挑细选的装饰,展示着屋主低调又简雅的品味。
圆弧形的木饰面设计,让餐边柜和电视背景墙和谐共处。隐形门的设计,让公卫玩起了“躲猫猫”的游戏。
隐形门打开,公卫才会显现出来。
阳台的一角,屋主可以慵懒地享受着阳光,品上一盏香茗。
推荐阅读
- 饱和度|173㎡轻奢新中式,古典和现代的碰撞,唯美浪漫!
- 轻奢风|什么样的生活空间,才算得上是美好现代轻奢风,大道至简
- 衣帽间|180㎡大平层装成北欧风,不光过道打了整体柜子,独立水吧给力
- 衣帽间|退休阿姨晒出自己的新家装修全屋大面积护墙板造型,温馨有个性
- |参观精装楼盘样板间,三居都市轻奢范儿,玄关柜墙太惊艳了
- 华丽|129㎡现代轻奢,自然舒适的中性色,华丽精致的档次
- 时尚|297㎡时尚美宅,华丽优雅的简美轻奢风,晒晒现场照
- 衣帽间如何装修?设计师推荐5大黄金布局|小小屋装修网| u型
- 视觉效果|轻奢装修色彩如何搭配?四项基本原则带你了解清楚。
- 电视背景墙|170㎡现代轻奢,质感升级,简而不减!
