
文章图片

文章图片

文章图片

文章图片
//纯新盘动态//
近日
泉州两大纯新盘传来新动态
晋江紫帽板块
菁华·右文府
工程规划许可获批
发布施工监理招标公告
项目毛坯限价12997元/㎡
晋江西园板块
天著·云溪
发布勘察设计招标公告
项目毛坯限价13927元/㎡
菁华右文府
>土拍回顾:2019年11月20日 , 新佳园以总价4.01亿竞得紫帽片区2019-26号地块 , 土地面积45573㎡ , 毛坯限价12997元/㎡ 。
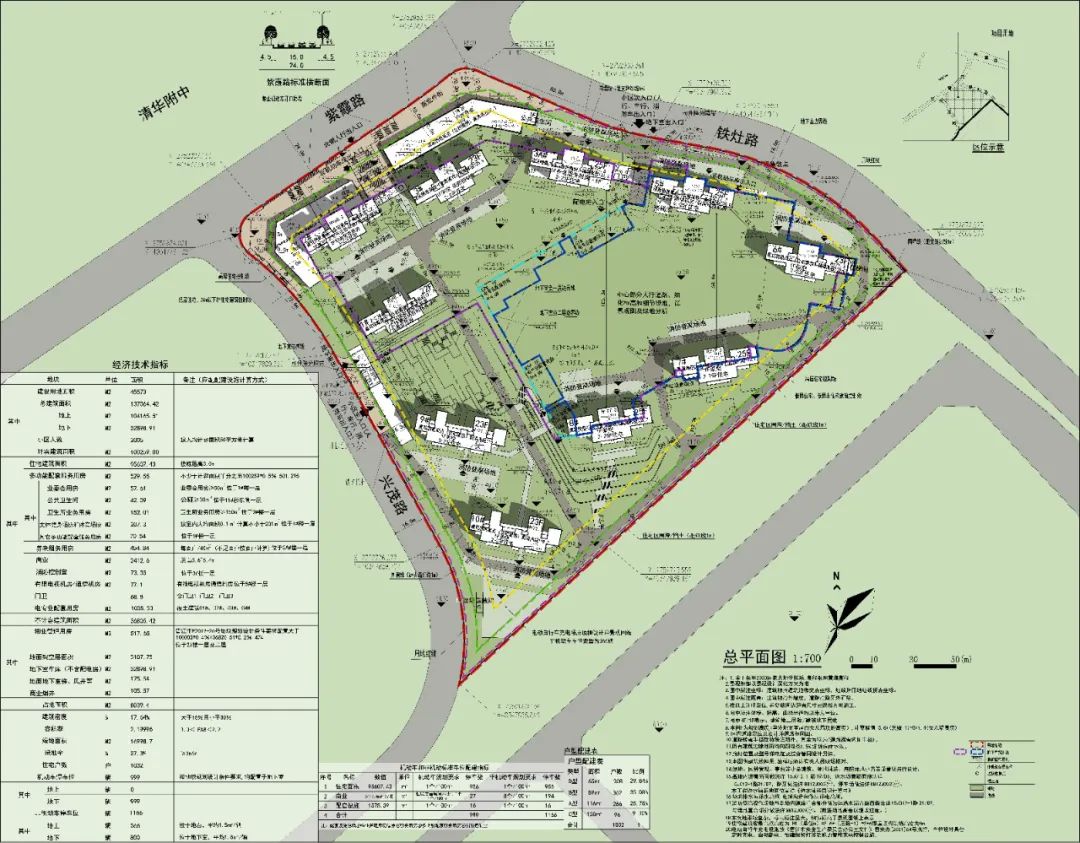
据晋江自然资源局发布信息显示 , 菁华右文府建设工程规划许可已获批 。 项目总建面137064.42㎡ , 规划10栋22-25F的高层 , 总户数1032户 , 户型规划建面约65-120㎡ 。
项目近期也已于泉州公共资源交易信息网发布《菁华·右文府施工监理招标公告》 。 据悉 , 菁华·右文府有望于近期正式公开 , 届时将会有更多相关信息释放 , 值得期待 。
前期释放效果图 , 仅供参考
项目大致区位图
菁华·右文府位于晋江市紫帽镇星霞东路旁 , 周边多维立体路网环伺 , 可快速直抵泉晋双市区 , 区位优势显著 。 项目与晋江学校(清华附中合作校)仅一路之隔 , 据悉 , 晋江学校由清华附中和晋江市合作创建 , 占地约430亩 , 总投资16.9亿元 , 可容纳7000名学生 。 其中 , 小学部、初中部均已投用 , 高中部则将于今年秋季“亮相” 。
【厦门|最高限价13927元/㎡!泉州两大纯新盘将入市!总建超40万方!】
学校效果图
天著云溪
>土拍回顾:2021年12月14日 , 晋江兆瑞建设有限公司竞得位于晋江西园街道烧厝社区、砌田社区P2021-7号地块 , 毛坯销售限价13927元/㎡ 。
近日 , 泉州市公共资源交易网发布《天著·云溪勘察设计》 。 根据招标公告 , 项目用地面积约90109平方米 , 总用地面积约90109平方米 , 用地性质为商住用地 , 总建筑面积约266557.82平方米 , 地上建筑面积约201959.82平方米 , 地下建筑面积约64598平方米 。
主要建设内容包括:建筑、结构、绿色建筑、室内装饰、公共配套、基坑、边坡、园林景观、电气、智能化、给排水、暖通、消防、人防、电梯、空调、有线网络、通讯网络、管道燃气、室外配套等 。 投资总额289400万元 , 其中工程费用限额90800万元 。
项目周边道路通达 , 出行便利 , 与城市中心生活圈相连 。 旁边为晋江国际会展中心 , 周边教育配套完善 。
此外 , 该片区还有一个项目尚未入市 。 2021年12月9日 , 晋江兆瑞建设有限公司竞得位于晋江西园街道砌田社区P2021-6号地块 , 毛坯销售限价13409元/㎡ 。
推荐阅读
- 厦门|厦门岛内房价与安溪
- 厦门|湖南,长沙。陈女士的新房花了210万,喜迁新居,没想到,楼上把卫生间改建在他们的卧室和客厅上方
- 厦门|谣言害死人!关于2022年二手房升值的5大谣言,谁信谁吃亏!
- 厦门|男子430万买门面,签合同却是330万,销售:我会说服你认栽
- 厦门|失望!贵阳中产改善买别墅:这个城市,几乎没有配得上我的别墅!
- 中签率|想不通!厦门一套房子加价近20万成交,原因是什么?
- 厦门|2022年6月13日厦门夜宵新闻
- 厦门|松山湖,要小心了!
- 厦门|厦门有钱太多了,厦门房价居高不下,厦门楼市分析第26期
- 厦门|选房没经验也别慌,记住这4点标准,帮你选择满意的房子
