这套100平米的二居室在经历了七大姑八大姨的讨论后,最终选择了北欧风装修,这个案例有些特殊,但是我们也加入了很多自己的想法,让这套装修案例看起来可是有不少特色呢。
身为设计师的他,平时接触的就是黑白色的设计稿。在他的眼里,灰白即彩,不论是工作生活还是房屋设计,只有最单纯的色彩才能体现设计的原味。卧室装修主要讲究一个和谐性。一个美观又温馨的客厅,首先还是离不开设计。因为合理的设计能将每个犄角旮旯都充分利用上,而且也只有合理的设计才能打造出更合适的造型。
卧室的配色是以浅色系为主,背景墙以蓝白色作为一个调色,给卧室以活力餐厅是我们用餐的场所,餐厅装修设计将会影响到我们的食欲,因此需要精心设计,打造出浪漫、温馨的环境,这样可以让人胃口大增。如果你的餐厅靠近另一个居住空间。这时让两个空间用同样的颜色做主色调,再选择一些不同的,但接近主色调的小装饰点缀。
餐厅的桌面和洗手台的操作台面连为一体,丰富了和家人的互动,也节约了更多的空间
设计是线条,是美感,是造物,理解用户的需求,然后使整个房子变得好住、易住、令人向往……
餐厅在背景墙设计这块安置了整面的储物柜,起到储物和装饰性作用厨房装修最重要的两点,一是视觉上干净清爽;二是要有舒适方便的操作中心。橱柜要考虑到科学性和舒适性。对于现代家庭来说,厨房不仅是烹饪的地方,更是家人交流的空间,休闲的舞台,必要的装饰用品还是可以出现的,装饰画和装饰物都可以摆放。
屋主是一名设计师,独自打拼多年的他已经事业有成。自己赚钱自己买房,给自己在城市安一个家
他希望自己居住的一方天地里,既拥有现代简约的清新自然,同时还要干净舒适方便打理,满足他小小的洁癖要求。
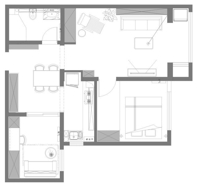
该案例原始结构户型图
推荐阅读
- 大平层|100平大平层户型营造出一种成熟端庄的现代时尚空间感
- 别墅|100万的别墅,自己不住,拿来养鸡、种菜,业主是怎么想的?
- 板材|掉进定制家具的100个坑,我总结出了4条救命指南
- 购房置业|打工攒了100万,亲戚朋友劝我买房,我把他拉黑了
- 楼市|如果现在花100万买房,10年之后还值多少?内行人说出答案
- 木地板|100平大平层户型营造出一种成熟端庄的现代时尚空间感
- 新房|女子花100多万买新房,进门却被楼板的四个洞惊呆了!
- 卫生间|84平北欧风二居室,邻居笑称这个是效果图
- 开始推理吧|100个角色,1000张图纸,20000平米场景,20万字,构建起11号公寓的推理世界
- 均值|中指院:前5月TOP100房企门槛值60.6亿,同比下降57.9%
