今年年初终于买了属于我俩的新房,实际居住面积123平三居室,我认识的一个朋友们建议我俩采用现在非常流行的简约风格。听了他的建议,不出四个月,房子就打造好了,下面给大家晒晒这款简约风装修案例!要求现代简约,舒适感强,设计要有创新,空间利用合理。户型特点是南北通透,要有足够的储物空间。
客厅:沙发背景墙采用的是银灰的颜色,而沙发采用的是水泥色的皮质沙发,茶几是深棕偏黑的木制茶几,简约现代。卧室是休息区,在装修里面属于家庭当中安静的角落,所以该部分装修主要塑造一种静谧的氛围。一张床靠墙而放,再配上衣柜和窗帘就很完美了。
卧室整体采用了灰色格调,浅灰色的窗帘,木灰色的床单和背景墙,深棕色的床头柜,彼此相互呼应。餐厅在装修的时候可以选择一些装饰来丰富整个空间,一些屏风和小挂饰都是很好的选择,但是注意餐厅的地面不要使用地毯进行装饰,以免食物掉落后难以清理。
地砖采用的是灰色的大理石地砖,与棕色储物柜和餐桌形成呼应,和电视机背景墙、吊顶形成反差,但大都简约,没有复杂的花纹图案,体现了现代简约的风格。
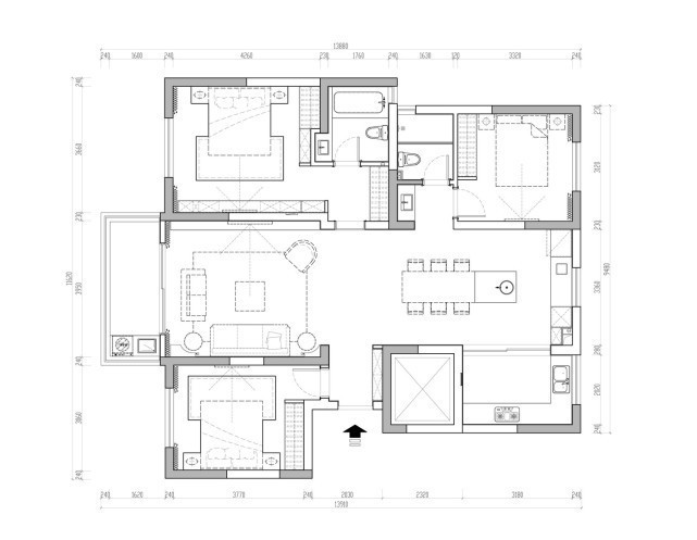
平面布置图,三房两厅两卫。
原始平面图,123平,现代简约风格。
推荐阅读
- 米色系|105平现代三居室,色调明亮但不耀眼,整体简洁但又特别
- 杭州|89平房子加个车位380万,准备交定金签约,房东突然变卦加价20万
- 三居室|108平现代风三居室,洁舒适,为空间添了一份的清新
- 三居室|131平中式风三居室,以简单呈现细腻,朴实打造优雅
- 衣帽间|86平混搭风三居室,绿色点缀在空间的每个地方
- 装修|129平混搭风四居室,让这个家以最优的姿态得以展现
- 两代人|北京一豪宅区车位被拍卖,起价176万一个,小区房价36万一平方米
- 购房置业|男友别有用心,婚前买153平四居室,我该如何维护自己的权益?
- 情侣|5平米出租屋,2平米“推笼”:看了这些,除了心酸,还能怎么办?
- 三居|90平个性三居装修,这样的隐形门设计,还是头一次见!
