业主想和父母一起居住,能让老人的晚年生活增加一个安详、舒适的空间。整体装饰都是以现代简约为主,老人们喜欢简单素雅的装饰效果,设计师在布局上,添加了一些复古小玩意儿,给老人们的自然舒适的环境。吊顶也是融合了一点小美式的线条,给整个空间增加了层次感。
古典风格--客厅设计卧室作为休息使用的房间来说,最好是方方正正的,不规则的不大好,多角形的也不好。一是利用率不高容易浪费空间,二是容易产生压迫感,容易让神经变得紧张。
古典风格--卧室2设计
古典风格--卧室设计。吊顶也是融合了一点小美式的线条,卫生间的装饰设计应采用明朗洁净的色调,给人明亮宽敞洁净的感觉。照明设计上应选择柔和明亮的灯光,既不刺眼,又可看清室内各种设施。同时注意卫生间设施棱角不应太突出,以免伤人;地面洁亮而不打滑,以免跌倒。
古典风格--卫生间设计用餐环境的好坏决定着食欲,也决定着用餐情绪,所以餐厅如果是一个独立的空间,那就要求空气流畅环境整洁。饰品虽然有情调,但是太多会分散注意力。软装饰或者清新、优雅的布艺制品是不错的选择。如果厨房与餐厅相连,一个小吧台也很实用哦。
古典风格--餐厅设计一个宽敞明亮的厨房会给人带来好心情。有多种办法来提高厨房的空间感:比如墙壁和柜面选用大面积舒适的浅色调,做大量好用的柜子和架子,使厨房物件色调搭配尽量和谐,点缀绿色植物,开凿大窗或者安装灯具来提升厨房的整体亮度。
古典风格--厨房设计,给整个空间增加了层次感。
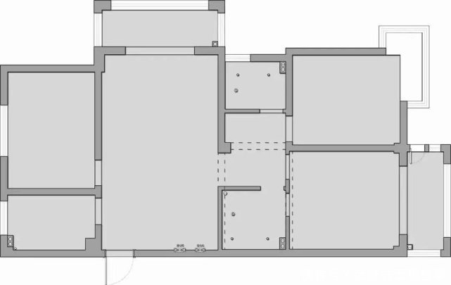
北平天下--古典风格--户型图。吊顶也是融合了一点小美式的线条,
推荐阅读
- 武清|躺平的房企正在慢慢爬起,2022年 6月很可能就是那个重要分界点
- 购房置业|夫妻两人花60万买房,竟然买到5400平!究竟是错买还是错卖?
- 豪宅|男子60万买了一套5460平的豪宅,销售:我这是笔误!
- 太原|5月太原都市圈新房价格约10999.33元/平方米 环比下降了330元
- 别墅|照着“抄作业”有多爽?占地仅94平的二层别墅只花了16万
- 石崇|临沂河东某楼盘下月交房,每户赠送25平米小菜园
- 会展|小庭院也能这样精致,40平现代极简,年轻人的不二之选。
- 现金流|弘阳地产平稳穿越周期,客户满意率创新高
- 青山|白云青山单元规划公示,规划建筑总量280万平方米,人口6000人
- 恒盛地产|我酸了,美国占地18713平方英尺的别墅竟只要135万
