卧室|133平日式风,方寸之间,自见真我
将传统文化融入现代装修中,无疑是对日式风设计最好的诠释。业主将日式风元素在客厅、卧室上等细节上大量体现,让空间充满现代自然的气质。这套133平米房子进行二次改造,对三居室的空间做减法,去除不必要的摆设,留出更多的空间,使得整个居住更舒心。希望简简单单,不需要复杂的造型,设计中运用自然色彩的白色、木色营造沉静的氛围。造型简洁的线条,门窗大多简洁透光,家具低矮且不多,给人以宽敞明亮的感觉。
原始自然的白色乳胶漆墙面与顶面配以木色的实木地板。自然流畅。
整体空间以简洁为主题,没有吊灯,没有复杂的背景墙。崇尚简单的自然***。卧室是我们休息的地方,所以小编建议最好不要放太多的电器,这样会产生辐射影响着我们的身体,所以小编是不建议大家在卧室放电视的,有一台空调和其他小型家电就可以了!卧室的插座和空调孔一定要提前留好,以备我们需要。
简单的卧室,一床一塌,方寸之间,自见真我。
温柔淡雅的颜色,清新的家具,带来轻松和蔼的卧室。卫生间的面积一般不是很大,然而在进行装修的时候,卫生间却是非常麻烦的一个空间,不仅需要做好防水、防潮,还要做好电路等方面的设计,这些都关系到安全问题,丝毫不能马虎。除了这些基本的装修要求,卫生间应尽量选择淡雅清新的色彩,例如白色、蓝色等。
温馨,自热的,原木的洗漱空间。在装修厨房时,我们在颜色方面,使用材料方面,美观搭配方面都要和谐。不管所用的材料多么高级,视觉和谐才让人看着最舒服。我们也可以选择厨房设备一条龙的配套来做,这样在选择方面就不会有那么多问题了。
木质感觉的统一,带来的是和谐和美满。
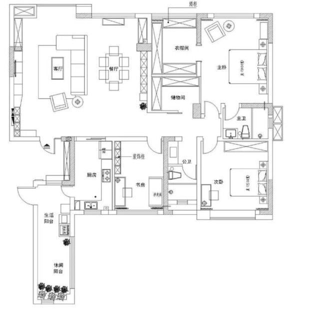
户型图
推荐阅读
- 中岛|255平美式风设计,开放式中岛厨房太漂亮了
- 玄关|126平美式+轻奢装修三居室,玄关柜子墙体现出超强收纳力
- 成都|照着“抄作业”有多爽?占地仅94平的二层别墅只花了16万
- 大连|商品房实际建设成本不到1400一平,售价5万多一平
- 国企|大连九里保利城一期前期物业定标 住宅物业费为3元/月/平米
- 青岛市|大连沙区白山路一房产项目拟招商 总建面近5千平米
- 柳州|北京市昌平区通报新增风险点位,涉及超市、公共卫生间
- 公摊|山西女子120平方新房收房变79平,看到楼道网友惊呆:比客厅还宽
- 北欧|136平的北欧三居室,加入孔雀绿、复古木色轻奢范的色彩!
- 卧室|河南男子和妻子在家躺平,卧室凌乱被褥都快包浆,床头还摆着尿盆
