今天分享的案例是80㎡两居室装修,在有限的空间中规划出多种实用的功能,值得小户型借鉴。亮点:小空间大设计,阳台设计榻榻米,2.5㎡的卫生间实现四分离。
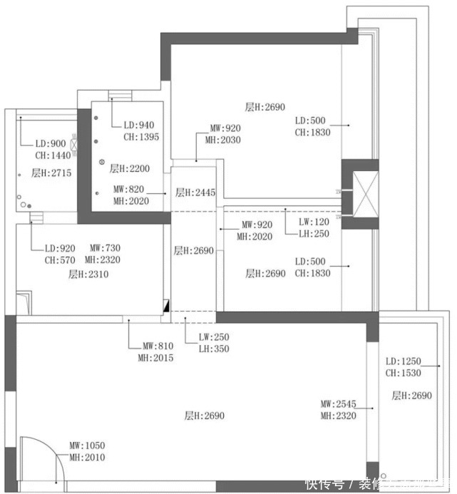
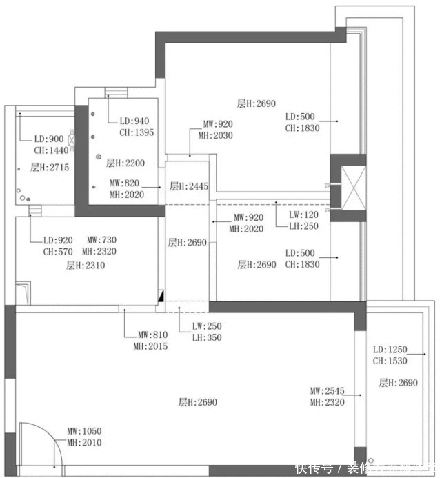
户型图
新房面积80㎡左右,两室两厅,但空间设计不大合理,没有亲子区域,也无法满足父母偶尔来小住的需要。
根据业主的需求,设计师做了如下布局:1、在进门处设玄关区,满足入户收纳需求;2、拆除厨房与餐厅隔墙,客餐厨一体化设计;3、阳台设计榻榻米,满足不同的功能需求;4、卫生间四分离设计,功能齐全,使用方便。玄关
在入户门对面设计一组入墙式储物柜,既满足玄关的收纳需求,又起到缓冲的作用,增加客餐厅空间的私密性。餐厅
厨房墙体内推,规划出小的餐厅区域。在原厨房位置摆放冰箱及餐边柜,一平米空间也不浪费。
木质餐桌温润大气,鲜花和吊灯点缀,营造良好的用餐氛围。靠背餐椅和长凳搭配,既合理利用空间,又避免设计过于单调。厨房
厨房面积不大,但功能齐全。小方砖搭配木色的橱柜,干净整洁,有种小清新的感觉。客厅
客厅大面积留白,简约而不简单,木质元素的茶几、沙发、电视柜、地板清新雅致,小空间简单实用。
电视墙没有设计多余的造型,简单明了。阳台纳入客厅中,整体抬高设计榻榻米,这是空间的一大亮点。
榻榻米不仅可以增加储物功能,也可以充当休闲区、亲子活动区,还可以满足父母过来小住的需求。次卧室
次卧是未来的儿童房,同样采用榻榻米一体化布局,最大限度提高空间的收纳能力,实用性极强。主卧室
主卧延续了客餐厅的基调,大白墙+原木风家具,营造良好宁静的睡眠氛围。
飘窗保证充足的采光和良好的视野,简单的梳妆台是专为女主人准备的。卫生间
卫生间面积仅有2.5㎡,设计师采用四分离结构。玻璃门隔断,里面是马桶区和淋浴区。
玻璃门外面是台盆和洗衣机区,功能齐全,使用非常方便。
推荐阅读
- 装修|145㎡超赞的美式装修,看完有种立马想进去住的冲动
- 兰州|如果楼市全面放开限购,三四线楼市会大面积沦陷
- 装饰画|120㎡北欧风三居室,客厅电视墙连接吧台,时尚又创意十足!
- 实景|149㎡现代风格实景 不过时的黑白灰
- 墙面|76㎡小户型花7万改造,宽敞明亮,还带衣帽间!
- 贷款额度|四川西昌:购首套住房可补贴300元/平米,买地下车位补贴5000元/个
- 钟落潭四镇|29天网签6474套,竟是年内新高!!白云南沙又放烟雾弹?
- 富力地产|选购住房的时候这四点因素也应考虑
- 四位一体|华润置地深耕大本营,分别与龙岗城投、深铁集团达成战略合作
- 西安|房价公示:3盘399套房,洋房1.46万/㎡起可入手!
