
文章图片
【冯仑|她60㎡小家,堪称“改造范本”,虽改动不大,但思路很值得学习】
文章图片

文章图片

文章图片

文章图片

文章图片

文章图片

文章图片

小户型住宅 , 在当下似乎已经成为了主流户型 。 尤其是在年轻人群体中 , 他们更乐意让小户型成为自己人生中的第一套住宅 。 当然 , 原因很简单 , 一是价格便宜 , 二是居住成员比较少 , 不像常规家庭会对空间的功能性要求比较高 。
而如何合理地设计小户型 , 相信也是很多屋主最关心的 。 不同于大户型 , 小户型除了要更加注重空间利用率之外 , 居住的舒适性也是要考虑到的 。 本期带来的这套案例 , 就堪称是小户型“改造范本” , 虽说空间结构改动并不大 , 但思路却很值得我们来学习 。
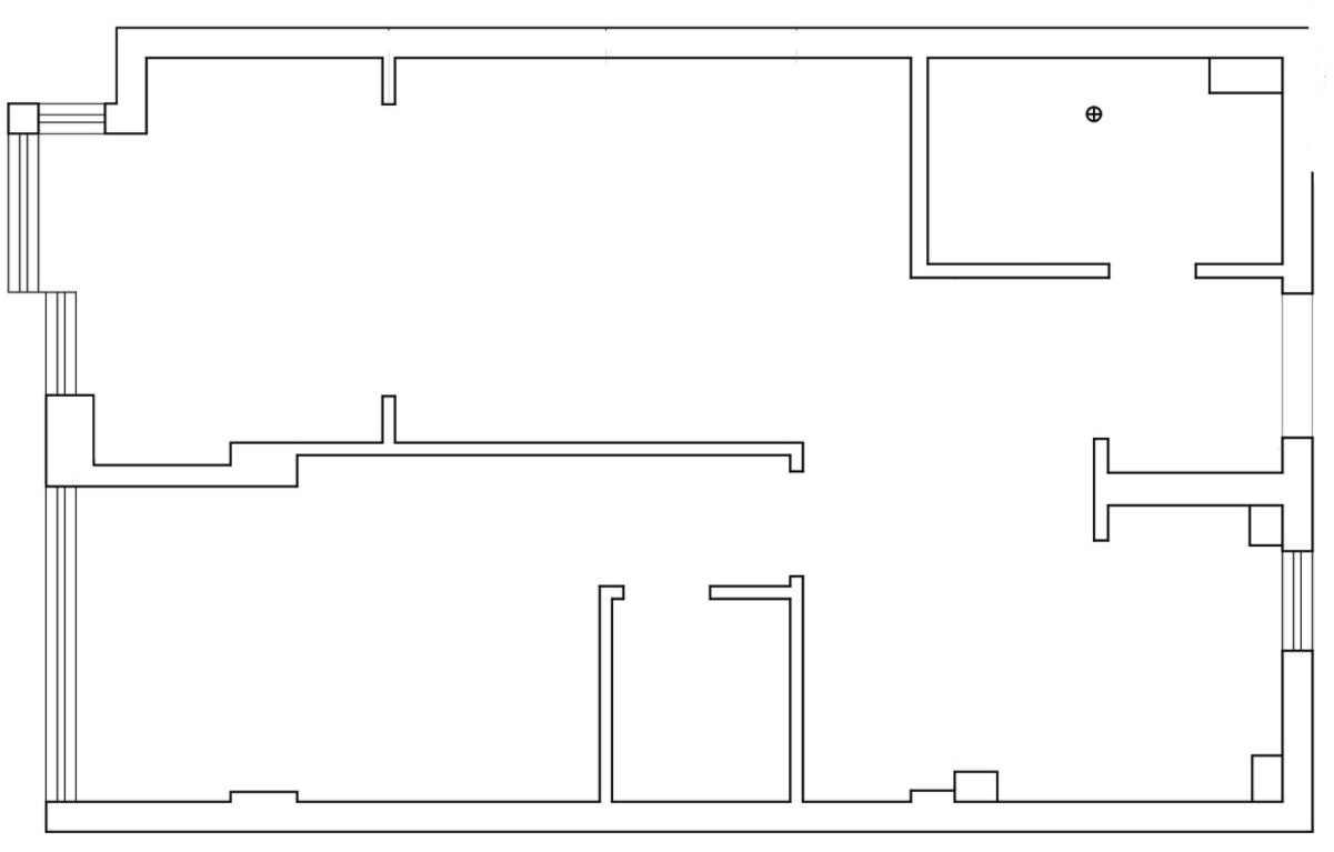
平面结构图
本案坐标北京 , 面积60㎡ , 一室一厅的格局 , 屋主是两位年轻人 。 喜欢简洁、时尚、舒适的居住环境 , 且接受能力比较高 。 同时 , 需要一个备用的功能间 。
从原户型结构来看 , 虽说整体十分方正、工整 , 但空间面积分配却不太合理 。 比如阳台面积过大、餐厅区域不明确、以及动线体验比较一般等等 。 再加上屋主需要两居室的功能性 , 所以在改造时 , 也进行了逆向思维式的布局 。
平面方案图
结合屋主的需求 , 以及现有的空间情况 , 布局改造如下 。
1、卫生间增加洗衣机 , 释放出南阳台的面积 。
2、南阳台纳入室内 , 并将原客厅作为主卧室来使用 。
3、拆掉衣帽间 , 并将原主卧一分为二 , 分别延伸出客厅、功能间区域 。
4、厨房采用开放式设计 , 并利用餐桌隔断 , 让空间呈现出一体化的结构 。
玄关
玄关基本上保留了原有的空间结构 , 不过将冰箱设计在厨房墙体的延伸段之后 , 却也起到了拓展玄关区面积的作用 , 从而让入户更有视觉延伸性 。
鞋柜设计在了入户门旁边的内陷墙体处 , 通体到顶的柜体结构 , 并将中间及底部镂空 , 最大化提高了柜体的储物能力 , 并在视觉上降低了厚重感 。 同时 , 还方便了鞋子以及装饰品的收纳 , 让入户更有仪式感 。
入户第一视角 , 当空间对调之后 , 主卧门洞处采用了45度的墙体来设计 。 这样一来 , 既在视觉上起到了动线指引的作用 , 也避开了主卧门与入户门正对的尴尬 。 而侧面的一面全身镜配置 , 也算是完善了玄关区的功能性 , 后期只需要再增加一个移动的换鞋凳就行了 。
餐厅
虽说重组后的空间 , 还是没有一个完整的餐厅区 , 但当主卧改成客厅之后 , 却也让空间实现了一体化的结构 。 这样一来 , 无论是生活动线 , 还是空间感表现 , 都得到了很大的优化 。
推荐阅读
- 盛邦集团底价摘兴宁38亩旧改地 需配建6150㎡安置房|土拍快报 | 盛邦
- 购房置业|百万买房赠送的花园面积缩水,女子沙盘上大闹,开发商愿意退房她慌了
- 别墅|“你家有大别墅,却不买婚房”倒贴钱嫁给凤凰男后,她知道被骗了
- 空间|64 ㎡小户型显大!就是要榨干每一寸可利用空间!
- 深圳市|深圳西丽宝能城法拍,155㎡五室10套指导价预热上拍
- 万科|房价直击 | 海口观澜湖两盘共278套住宅备案,最低1.7万/㎡!
- 龙岗区|拆除约10.64万㎡!龙岗横岗六约北片区龙塘片区城市更新单元规划
- 主基调|70㎡小户型的潜力,给我看懵了!
- 客厅|户型改造丨砸掉两面墙打造LDK一体,170㎡动静分离三居室
- 东莞|6.92亿元成交!佛山土拍市场回暖,奇槎一宅地拍出17983元/㎡
