
锅具、刀具被整齐地摆放好,一切都十分美好。多彩的杯具挂在墙面上,在白色的空间里增添亮点。
浅色调和木色相搭配,轻松地创造出舒适的居住氛围。北欧风注重光的运用设计,厨房里开设窗户和天窗,窗明几净。
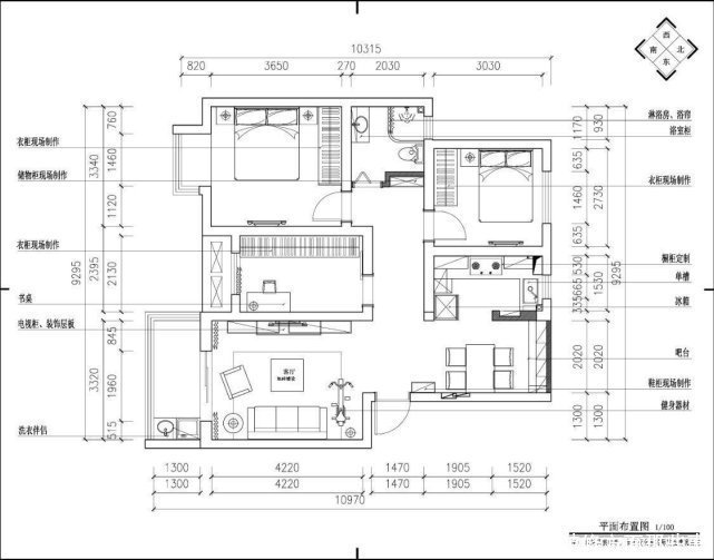
打造舒适的视觉效果。干湿分离的设计,在居家生活中,可以避免很多问题的发生
推荐阅读
- 雅致|138平居然有现代时尚、雅致东方、法式优雅,真是太漂亮了
- 拘束感|124㎡平港式风三口之家,开放式布局没有传统客厅的“拘束感”
- 阳台|不要买这种凸阳台房子,开发商送多少平方,都不要买!
- 临沂|临沂楼市,下滑1.7%,横盘一年,受疫情影响,楼市慢慢回归平静
- 成交量|大湾区九城新房成交平稳攀升!连续两周破八千套
- 佛山|公摊40平米,业主怀疑不符合规范,开发商回应:不知道符不符合
- 主卧房|91平工业风三居室,让人难以察觉主卧房入口门隐藏其中
- 公摊面积|储藏室公摊比例72%,15.66平米只有4.31平米,业主: 比我房子都贵
- 土地|深圳光明去年土地整备完成率265.3% 今年入库不低于1平方公里
- 薄荷可以放在卧室吗
