
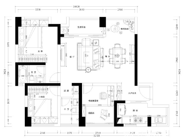
厨房的空间较小,所以使用L型的设计,一边为灶台和油烟机,另一边为水槽和其他厨房用品。
推荐阅读
- 卷帘|布帘、卷帘、百叶帘,你家的窗帘,准备怎么选?
- 华建定制易菲特|家居帮帮忙:窗户漏风漏水,温馨港湾照不进现实?
- 知识产权|国家知识产权局商标局商标业务 淄博受理窗口迁址公告
- 米家|新房交房后,客厅窗帘电机怎么选?小米米家给你答案
- 房屋装修时窗帘软装的正确选择技巧
- 选购布艺窗帘要注意什么
- 改造|家家户户都有的飘窗 你了解多少?
- 许传明|济南楼市新政落地首日实探!买房的明显多了,朋友圈喊涨的没大涨
- lpr|多地因城施策暖风劲吹,降息重磅落地!中信证券:多方合力,全年坚定布局地产
- 临迁费|黄埔新政落地?已有村收到通知:先安置后拆迁
