这是一个简单的纯净世界,它简洁大方,灵动非凡,非常适合业主低调典雅的气质。我们在简洁的设计手法与高雅华贵的品质之间游刃有余地游走,创造了一个平衡大气的经典空间。整体的设计风格自然简约,同时又照顾到各个细节。注重现代功能设计让这里给人感觉开阔、流畅,各种陈设的挑选和运用,让居住的室内空间更显主人的文化底蕴深厚。
玄关设计得好,会给整个装修设计增添色彩。而且还可以给到来客眼前一亮的感觉,让客人感觉到家的温馨舒适。通往主卧室的走廊过道,墙面铺贴灰色系壁纸,搭配做旧款的装饰画,很有工业风的粗犷感觉,蓝色的谷仓门和吊顶相互呼应,整体感更强。
入户玄关走廊过后就是连在一起的客餐厅,餐桌椅摆放在沙发的背后,顶部蓝色的跌级吊顶和灰色的墙地面,营造出一个格调感满满的空间。
电视背景墙用水泥漆来装饰,墙面没有加其他的装饰品,复古范的电视柜和绿植、摆设结合起来,就让人感觉非常时尚了。卧室里不要放过多的电器,特别是电视、笔记本,辐射和电源等都会影响睡眠。大部分的人都喜欢躺在床上看书或看电视,这种行为非常不可取,它也会对我们的健康造成影响。
卧室里不要放过多的电器,特别是电视、笔记本,辐射和电源等都会影响睡眠。大部分的人都喜欢躺在床上看书或看电视,这种行为非常不可取,它也会对我们的健康造成影响。
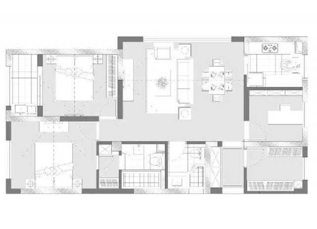
房屋总面积108平米,考虑到生活需求,业主将108平米的房子装修成三居室。业主钟爱现代风格,所以房子整个装修风格都是采用的现代。
推荐阅读
- 落地窗|97平北欧风三居室,客厅整面落地窗将光线引入室内,大气通透
- 装修设计|淘宝上一平20的装修设计,赚了多少冤大头的钱
- |加拿大木材价格可能会保持相对较高的水平
- 恒大地产|哈尔滨住建局组织召开处置恒大地产项目逾期交付烂尾风险工作会议
- 销售面积|1-4月山西省商品房销售面积527.3万平方米 下降26.3%
- |183平四合院,平凡生活里的烟火与文雅!
- 天府新区|6月1日起施行!贵州解除省直住房公积金流动性风险三级响应
- 中协|本周二手房录得量小幅上涨,市场行情或趋于平稳
- 高起点|和平区2022年12宗拟出让地块亮相 和平湾独占7宗
- 常州|6万+/m2!风向突变!常州最新学区房价格曝光!
